750 000 Р 9 760 $ или 8 390

Информация об помещении

1
Этаж

Состояние и оснащение

Количество этажей
5
Развернуть
Агент
+7 (981) 280-12-88
Начать чат с агентом

Помещение свободного назначения в Санкт-Петербург просп. Обуховской ...

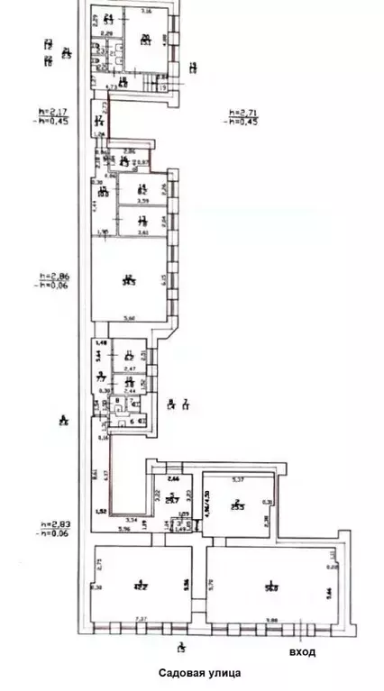
Арт.От метро 450 метров.Витринные окна.Два входа с фасада.В долгосрочную аренду.На пересечении пр. Обуховской Обороны и пр. Елизарова.Помещение свободного назначения, общей площадью 208 м.кв.Два отдельных входа с фасада и отдельный вход со двора.Открытая планировка.Высота потолка 3.91 метра.ХВС, ГВС, 15 КВТ (возможно увеличение), кондиционирование. Высокий автомобильный и пешеходный трафик. Есть возможность разделить помещение на две части, на условиях субаренды.Рассмотрим любые Ваши предложения.+комиссионные агентству 50 Предлагаем ПРЕМИАЛЬНОЕ обслуживание для требовательных клиентов.Оперативно организуем просмотр, предоставим полную информацию по объекту.20 лет работы с требовательными клиентами подготовили нас к решению ВАШИХ сложных задач.Будем рады знакомству Ул. Рубинштейна, д.8.

Читать полностью
    Позвонить Написать
    750 000 Р9 760 $ или 8 390
    Агент
    +7 (981) 280-12-88
    Начать чат с агентом
    Похожие предложения
    Помещение свободного назначения в Санкт-Петербург Садовая ул., 46 (306 ... - Фото 1
    Помещение свободного назначения в Санкт-Петербург Садовая ул., 46 (306 ... - Фото 2
    Арт.Предлагается в аренду помещение под ресторан, банк, магазин одежды, общей площадью 306 м2 в двух шагах от Сенной площади.Витринные окна расположены на Т-образном перекрестке, где большой автомобильный и пешеходный трафик аккумулируются с трафиком...
    • 1/3 эт.
    750 000 Р
    Агент
    +7 (981) Показать номер
    Посмотреть контакты
    Помещение свободного назначения в Санкт-Петербург Садовая ул., 46 (305 ... - Фото 1
    Помещение свободного назначения в Санкт-Петербург Садовая ул., 46 (305 ... - Фото 2
    340986Сдается в аренду уникальное коммерческое помещение в сердце города по адресу: ул. Садовая, 46.Площадь помещения: общая 305 мЭлектричество: 35 кВт, возможно увеличениеВытяжка: естьПотолки: h=2,8 м.Отдельные входы: 1 с улицы и 1 со двора, обеспечивающие...
    • 1/3 эт.
    749 000 Р
    Агент
    +7 (981) Показать номер
    Посмотреть контакты
    Помещение свободного назначения в Санкт-Петербург наб. Канала ... - Фото 1
    Помещение свободного назначения в Санкт-Петербург наб. Канала ... - Фото 2
    Исторический центр Санкт-Петербурга, в шаге от ст. метро Невский проспект , Гостиный двор .1-й этаж. Площадь 152м2. Все коммуникации. Есть свечка-вытяжка 40кВт. Потолки 2,75м. 2 входа (с фасада и со двора). Витрины. Удобная планировка. УСН.Отличное...
    • 1/3 эт.
    750 000 Р
    Агент
    +7 (981) Показать номер
    Посмотреть контакты
    Помещение свободного назначения в Санкт-Петербург ул. Рентгена, 25 ... - Фото 1
    Помещение свободного назначения в Санкт-Петербург ул. Рентгена, 25 ... - Фото 2
    ID: 832162На длительный период СДАЕТСЯ Коммерческое помещение свободного назначения 330мПомещение с большими витринными окнами, сделан хороший ремонт.Три отдельных входа. Этаж: 1Потолки 3.9мМощность 40 кВтОтличный вариант для:Отделения банка, Ресторанного...
    • 1/7 эт.
    759 000 Р
    Агент
    +7 (911) Показать номер
    Посмотреть контакты
    ПОКАЗ В УДОБНЫЙ ДЕНЬ И ЧАС. Агентам платим вознаграждение за клиента. Нежилое отдельно стоящее здание, расположено в районе с развитой инфраструктурой, рядом расположены остановки общественного транспорта и станции метро.Налоговая: 18. Лифты: Нет. Вентиляция:...
    • 2/2 эт.
    750 000 Р
    Агент
    +7 (933) Показать номер
    Посмотреть контакты

    Не нашли подходящего объявления?

    Оставьте заявку, и наши риэлторы подберут псн в районе Санкт-Петербурга

    (0)