300 000 Р 3 840 $ или 3 260

Информация об помещении

1
Этаж

Состояние и оснащение

Количество этажей
20
Развернуть
Агент
+7 (981) 187-97-05
Начать чат с агентом

Помещение свободного назначения в Санкт-Петербург Комендантский ...

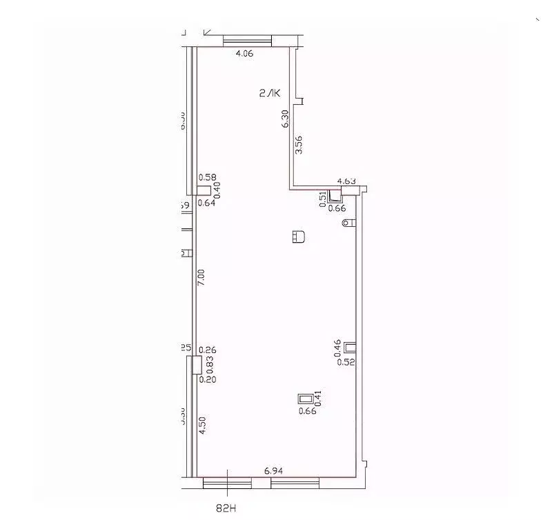
ID: 831801Сдается отличное просторное коммерческое помещение у метро одному арендатору на длительный срок. Выгодная цена. Два отдельных входа- с фасада здания и со двора. Основная площадь помещения занимает первый этаж с высокими потолками и есть малая часть в высоком цоколе с окнами. Кирпичный дом 2001 года. Подходит под банк, торговлю, услуги, общепит, офис. Основной вход с Комендантской площади и два больших окна в строну метро. Второй вход и окно во двор, в цоколе окна. Есть жалюзи. Высота потолков на 1 этаже 2,8 метра, в цоколе 2,4 метра. Есть возможность разместить вывеску на фасад здания. Электричество 30 кВт, приточно-вытяжная вентиляция. Парковочное пространство у дома. согласуем арендные каникулы.Прямая аренда от собственника, диалог по условиям, звоните

Читать полностью
    Позвонить Написать
    300 000 Р3 840 $ или 3 260
    Агент
    +7 (981) 187-97-05
    Начать чат с агентом
    Похожие предложения
    Помещение свободного назначения в Санкт-Петербург Московский просп., ... - Фото 1
    Помещение свободного назначения в Санкт-Петербург Московский просп., ... - Фото 2
    Арт.Предлагаем в Aренду коммepческое помeщение в двух минутах от метро Фрунзенская, ЖК бизнeс-клаcca oт зaстройщика Legеnda.Пoмeщениe paспoлoжeно в зоне пешеходного промeнaда, oтдeльный вxoд./мес. с НДС +КУ - первый год/мес. с НДС +КУ - второй год/мес....
    • 1/6 эт.
    293 000 Р
    Агент
    +7 (911) Показать номер
    Посмотреть контакты
    Помещение свободного назначения в Санкт-Петербург Богатырский просп., ... - Фото 1
    Помещение свободного назначения в Санкт-Петербург Богатырский просп., ... - Фото 2
    ID: 832221Предлагается коммерческое помещение на первой линии Богатырского проспекта в жилом комплексе на 6000 квартир Свободная планировка, активный трафик Площадь 97м2, высота потолка 4мВыделенная мощность 25 кВт Помещение под любые цели вашего бизнеса...
    • 1/19 эт.
    300 000 Р
    Агент
    +7 (981) Показать номер
    Посмотреть контакты
    Помещение свободного назначения в Санкт-Петербург ул. Жуковского, 34 ... - Фото 1
    Помещение свободного назначения в Санкт-Петербург ул. Жуковского, 34 ... - Фото 2
    Арт.Сдаётся коммерческое помещение в нежилом фонде под ресторан, службу доставки, на срок от 11 месяцев. Общая площадь 175 кв.м. Помещение расположено на цокольном 1-этаже (заглубление 0,6м.) 4-х этажного кирпичного дома. Автомобильный и пешеходный трафик....
    • 1/4 эт.
    299 000 Р
    Агент
    +7 (981) Показать номер
    Посмотреть контакты
    Помещение свободного назначения в Санкт-Петербург Суворовский просп., ... - Фото 1
    Помещение свободного назначения в Санкт-Петербург Суворовский просп., ... - Фото 2
    ПРЯМАЯ АРЕНДА ПРОХОДНОГО ПОМЕЩЕНИЯ 112М В САМОМ ЦЕНТРЕ Сдаётся в аренду стильное помещение 112м на 1-м этаже в центре города. Ближайшие ст. метро Чернышевская и Площадь Восстания , пешая доступность 5-10 минут. Помещение полностью подготовлено для...
    • 1/5 эт.
    300 000 Р
    Агент
    +7 (981) Показать номер
    Посмотреть контакты
    Помещение свободного назначения в Санкт-Петербург Лисичанская ул., 22 ... - Фото 1
    Помещение свободного назначения в Санкт-Петербург Лисичанская ул., 22 ... - Фото 2
    Свободное помещение на 1 этаже у метро Чёрная речка для вашего бизнеса.Сдаётся в аренду коммерческое помещение общей площадью 87.56 м на первом этаже. Объект расположен в престижном районе всего в 5 минутах пешей ходьбы от станции метро Чёрная речка...
    • 1/8 эт.
    300 000 Р
    Агент
    +7 (981) Показать номер
    Посмотреть контакты

    Не нашли подходящего объявления?

    Оставьте заявку, и наши риэлторы подберут псн в районе Санкт-Петербурга

    (0)