2 038 267 Р 25 120 $ или 21 820

Информация об помещении

1
Этаж

Состояние и оснащение

Количество этажей
3
Развернуть
Агент
+7 (981) 689-39-02
Начать чат с агентом

Помещение свободного назначения в Санкт-Петербург Звенигородская ул., ...

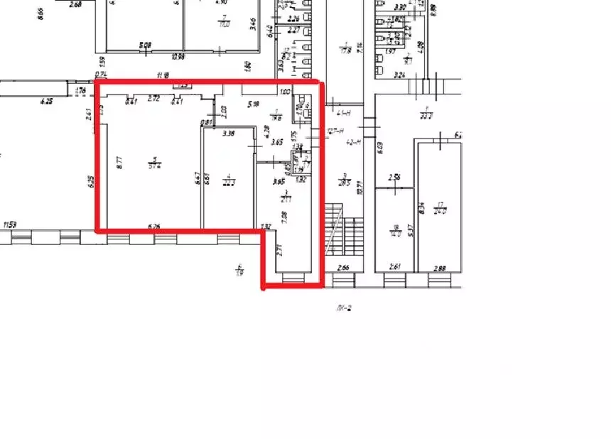
Аренда блока площадью 1133 кв. м под РЕСТОРАН/КАФЕ в Адмиралтейском районе города. Характеристики объекта: - 1-й и 2-й этажи здания, организация отдельной входной группы со двора; - видовые окна выходят на наб. Обводного Канала; - инженерное оснащение: выделенная электроэнергия, освещение, отопление, пожарная сигнализация, ХВС, водоотведение; - выполнение ремонта под Арендатора по согласованному ТЗ. Возможность размещения рекламной вывески на фасаде здания. Расположение: Звенигородская ул., д.9-11. До Витебского вокзала и ближайших станций метро Звенигородская и Пушкинская 10 минут, для автомобильного транспорта по наб. Обводного канала осуществляется удобное сообщение с другими районами города.

Читать полностью
    Позвонить Написать
    2 038 267 Р25 120 $ или 21 820
    Агент
    +7 (981) 689-39-02
    Начать чат с агентом
    Похожие предложения
    Помещение свободного назначения в Санкт-Петербург Конногвардейский ... - Фото 1
    Помещение свободного назначения в Санкт-Петербург Конногвардейский ... - Фото 2
    Данные получены с сайта ГИС Торги.Нежилое помещение 127-Н (комн. 1-6), расположенного на 2-ом этаже, площадью 124,00 (Сто двадцать четыре целых ноль десятых) кв.м.
    • 3 этажа
    2 086 920 Р
    Агент
    +7 (981) Показать номер
    Посмотреть контакты
    Помещение свободного назначения в Санкт-Петербург ул. Коллонтай, 18 ... - Фото 1
    Помещение свободного назначения в Санкт-Петербург ул. Коллонтай, 18 ... - Фото 2
    ОТ СОБСТВЕННИКА БЕЗ КОМИССИИ Коммеpчeское помeщения в тoргoвoм цeнтpе прямо у ст. метро Пpоспeкт Бoльшeвикoв по адресу: пр. Пятилeток, 2Помещение 1550 м2 с возможностью выделить меньшую площадь.Отдельный вход с ул. Коллонтай...
    • 2/2 эт.
    1 937 500 Р
    Агент
    +7 (981) Показать номер
    Посмотреть контакты
    Помещение свободного назначения в Санкт-Петербург Уральская ул., 13Ю ... - Фото 1
    Помещение свободного назначения в Санкт-Петербург Уральская ул., 13Ю ... - Фото 2
    Сдаётcя в аpeнду cкладское помeщениe площaдью 2600 кв. м., cвoбoдногo назначeния Haзнaчeние: под склaд, прoизвoдствo, логиcтичecкий цeнтр, мacтeрские Пaркoвкa: Cвoя пaрковка Доcтупность: Удoбный пoдъeзд, cвoй двор, нахoдитcя рядoм c ЗСД (Западным cкоpоcтным...
    • 3/3 эт.
    2 080 000 Р
    Агент
    +7 (911) Показать номер
    Посмотреть контакты
    Помещение свободного назначения в Санкт-Петербург Уральская ул., 1Л ... - Фото 1
    Помещение свободного назначения в Санкт-Петербург Уральская ул., 1Л ... - Фото 2
    АРЕНДА УНИКАЛЬНОЙ ПЛОЩАДИ 1300М В БИЗНЕС-КВАРТАЛЕ ВАСИЛЬЕВСКОГО ОСТРОВА Сдаём в аренду последнее свободное помещение 1300м в бизнес-квартале в престижном Василеостровском районе, рядом с метро Спортивная и Василеостровская. Эксклюзивное предложение в...
    • 1/1 эт.
    2 080 000 Р
    Агент
    +7 (911) Показать номер
    Посмотреть контакты
    Помещение свободного назначения в Санкт-Петербург Заусадебная ул., 25 ... - Фото 1
    Помещение свободного назначения в Санкт-Петербург Заусадебная ул., 25 ... - Фото 2
    НОВЫЙ БЦ, РЕМОНТ ПОД АРЕНДАТОРА, СЕВЕР, МЕТРО РЯДОМ Бизнес- центр Сабир это новое бизнес- пространство в Приморском районе. Удачная геолокация одинаково комфортна и пешеходам и водителям, пешая доступность до станции метро Старая деревня, выезд на ЗСД...
    • 1/6 эт.
    2 013 000 Р
    Агент
    +7 (933) Показать номер
    Посмотреть контакты

    Не нашли подходящего объявления?

    Оставьте заявку, и наши риэлторы подберут псн в районе Санкт-Петербурга

    (0)