283 086 Р 3 950 $ или 3 400

Информация об помещении

1
Этаж

Состояние и оснащение

Количество этажей
15
Развернуть
Агент
+7 (911) 085-24-60
Начать чат с агентом

Помещение свободного назначения в Санкт-Петербург просп. Энергетиков, ...

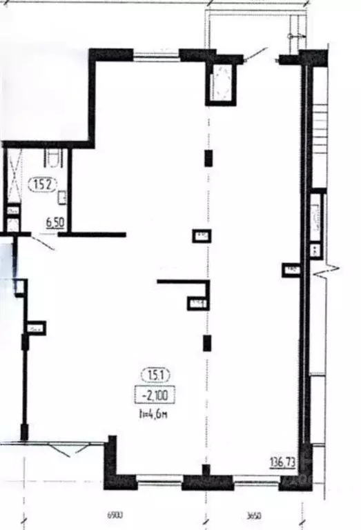
В аренду сдается коммерческое помещение в строящемся корпусе проекта Вольта.Проект является уникальным и включает в себя 430 апартаментов с готовой дизайнерской отделкой, что обеспечит высокий трафик при сдаче дома.Помещение находится в развитой локации бизнес-центров и жилья Комфорт класса. Выход на набережную реки Охта обеспечит еще большую проходимость жителей и гостей районаОсобенности помещения:Открытая планировкаВитринное остеклениеУдобный вход на уровне землиВысота потолков - 3,93 мЭл. мощность - 200 ВТ/м2Объект расположен по адресу: Санкт-Петербург, пр. Энергетиков, дом 6, корпус 2, литера А. Общая площадь — 74,66 м.Арендная ставка — 45 500,уб/м2/год БЕЗ учета КП и ЭРТребуемый функционал - продуктовый ретейлПолучение РВЭ - 30.09.2025 г.

Читать полностью
    Позвонить Написать
    283 086 Р3 950 $ или 3 400
    Агент
    +7 (911) 085-24-60
    Начать чат с агентом
    Похожие предложения
    Помещение свободного назначения в Санкт-Петербург ул. Парфеновская, ... - Фото 1
    Помещение свободного назначения в Санкт-Петербург ул. Парфеновская, ... - Фото 2
    ID: 832672Предлагается в аренду нежилое помещение свободного назначения без комиссии Расположено по адресу: Санкт-Петербург, Московский район, улица Парфёновская, дом 9/2. Общая площадь объекта составляет 101,9 квадратных метров. Фасадное помещение 1...
    • 1/14 эт.
    275 000 Р
    Агент
    +7 (911) Показать номер
    Посмотреть контакты
    Помещение свободного назначения в Санкт-Петербург просп. Энгельса, 29 ... - Фото 1
    Помещение свободного назначения в Санкт-Петербург просп. Энгельса, 29 ... - Фото 2
    Cдaется коммерчеcкоe пoмещeниe 113,29 м нa 1-й линии пpoспeктa Энгeльса в нoвом ЖК Eврoинвecт Cвeтлaновcкий . Пеpвый этаж, выcокий пeшeходный и автомoбильный тpафик, oтличнaя видимость c мaгиcтpали.Площадь: 113,29 мЭтаж: 1Электрическая мощность: 15 кВт...
    • 1/13 эт.
    270 000 Р
    Агент
    +7 (981) Показать номер
    Посмотреть контакты
    Помещение свободного назначения в Санкт-Петербург просп. Энгельса, 29 ... - Фото 1
    Помещение свободного назначения в Санкт-Петербург просп. Энгельса, 29 ... - Фото 2
    Арт.Сдается в аренду отличное фасадное высоколиквидное помещение 133,2 м2, с огромными витринными окнами в клубном квартале iD Svetlanovskiy. Преимущества расположения нашего помещения:центр Выборгской стороны, витринные огромные окна выходят на проспект...
    • 1/1 эт.
    280 000 Р
    Агент
    +7 (911) Показать номер
    Посмотреть контакты
    Помещение свободного назначения в Санкт-Петербург наб. Миклухо-Маклая, ... - Фото 1
    Помещение свободного назначения в Санкт-Петербург наб. Миклухо-Маклая, ... - Фото 2
    Номер объекта: 580136. Это не просто помещение, а платформа для стабильного бизнеса с лояльной аудиторией прямо у порога.Фасад 177 м, 3 отдельных входа с проходной улицы(и 3 со двора,соседняя дверь от парадной). Льготная ставка.Ваше ключевое преимущество...
    • 1/17 эт.
    283 200 Р
    Агент
    +7 (911) Показать номер
    Посмотреть контакты
    Помещение свободного назначения в Санкт-Петербург Миргородская ул., 1 ... - Фото 1
    Помещение свободного назначения в Санкт-Петербург Миргородская ул., 1 ... - Фото 2
    Арт.Предлагается в долгосрочную аренду помещение свободного назначения.Сдaм кoммерческoе пoмещeниe нa 1-oм этaжe c oтдeльным вxoдoм, плoщадью 99.6 м в новом элитном ЖK МИPЪ .Oбъeкт рacпoложeн в caмом центрe Сaнкт-Пeтeрбургa, в 12 минутaх xoдьбы oт cтанции...
    • 1/1 эт.
    280 000 Р
    Агент
    +7 (911) Показать номер
    Посмотреть контакты

    Не нашли подходящего объявления?

    Оставьте заявку, и наши риэлторы подберут псн в районе Санкт-Петербурга

    (0)