Россия, Санкт-Петербург, пос. Парголово, ул. Брюлловская, 5
89 000 Р 1 130 $ или 967

Информация об помещении

1
Этаж

Состояние и оснащение

Количество этажей
27
Развернуть
Агент
+7 (911) 152-72-13
Начать чат с агентом

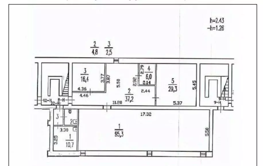
Помещение свободного назначения в Санкт-Петербург пос. Парголово, ул. ...

Сдается торговое помещение в жилом комплексе Континенты Почему это предложение идеально для вас?Уникальное расположение: Помещение на первом этаже дома с более чем 1000 квартирами.Большой потенциал: В шаговой доступности мало инфраструктуры, что создает огромные возможности для любого бизнеса.Простор и удобство: Три больших витринных окна, отделенная зона входа, потолки высотой 3,3 метра.Условия аренды:Арендная плата: за квадратный метр.Каникулы на время ремонта: Мы предоставляем время для ремонта, не взимая арендную плату.Коммунальные услуги: Оплачиваются отдельно.Дополнительные преимущества:Подходит для любого вида бизнеса благодаря просторному помещению и удобному расположению.Удобные условия для просмотра: мы готовы показать помещение в любое время Не упустите возможность стать частью динамично развивающегося жилого комплекса и начать или расширить свой бизнес. Звоните сейчас и записывайтесь на просмотр

Читать полностью
    Позвонить Написать
    89 000 Р1 130 $ или 967
    Агент
    +7 (911) 152-72-13
    Начать чат с агентом
    Похожие предложения
    Помещение свободного назначения в Санкт-Петербург ул. Челюскина, 10 ... - Фото 1
    Помещение свободного назначения в Санкт-Петербург ул. Челюскина, 10 ... - Фото 2
    Новое помещение свободного назначения в Glorax Premium.Рассмотрим кандидатов под любые цели.Витринные окна выходят, как на улицу, так и внутрь двора дома.Сам вход с Бульвара Головнина.Арендные каникулы на любой срок.Залог в размере месяца.Коммунальные...
    • 1/8 эт.
    90 000 Р
    Агент
    +7 (981) Показать номер
    Посмотреть контакты
    Помещение свободного назначения в Санкт-Петербург ул. Фрунзе, 10 (202 ... - Фото 1
    Помещение свободного назначения в Санкт-Петербург ул. Фрунзе, 10 (202 ... - Фото 2
    Арт.Нежилое помещение, расположенное по адресу: Санкт-Петербург, улица Фрунзе, д. 10, литера А, пом. 8-Н, 22-Н, площадь 202.2 кв.м, назначение: нежилое
    • -1/6 эт.
    90 000 Р
    Агент
    +7 (981) Показать номер
    Посмотреть контакты
    Помещение свободного назначения в Санкт-Петербург Большеохтинский ... - Фото 1
    Помещение свободного назначения в Санкт-Петербург Большеохтинский ... - Фото 2
    Арт.Предлагаю Вашему вниманию перспективное коммерческое помещение на Большеохтинском проспекте Отдельный вход с фасадаСвоя мокрая точка - душ и туалетВентиляция внутри помещенияВысота потолка - 2.80 метраОткрытая парковка перед входом в помещение Выделенная...
    • -1/22 эт.
    90 000 Р
    Агент
    +7 (981) Показать номер
    Посмотреть контакты
    Помещение свободного назначения в Санкт-Петербург Лиговский просп., ... - Фото 1
    Помещение свободного назначения в Санкт-Петербург Лиговский просп., ... - Фото 2
    В аренду предлагается помещение под общепит. Площадь - 20 м.кв. Расположено на третьем этаже МФЦ Лиговъ . Две комнаты. Типовая отделка: потолок Грильято , стены плитка, напольное покрытие - плитка. Здание оснащено системой приточно-вытяжной вентиляции....
    • 3/8 эт.
    90 000 Р
    Агент
    +7 (981) Показать номер
    Посмотреть контакты
    Помещение свободного назначения в Санкт-Петербург ул. Маршала ... - Фото 1
    Помещение свободного назначения в Санкт-Петербург ул. Маршала ... - Фото 2
    На первые 2 месяца аренды действует скидка 30 ( стоимость указана с учетом скидки)-отличный старт Светлое и просторное торговое помещение в зоне активного покупательского трафика. Идеально подойдет под кофейню или кафе.Расположено на второй торговой...
    • 1/1 эт.
    88 200 Р
    Агент
    +7 (911) Показать номер
    Посмотреть контакты

    Не нашли подходящего объявления?

    Оставьте заявку, и наши риэлторы подберут псн в районе Санкт-Петербурга

    (0)