Россия, Санкт-Петербург, просп. Большой Васильевского острова, 83
347 498 Р 4 640 $ или 3 960

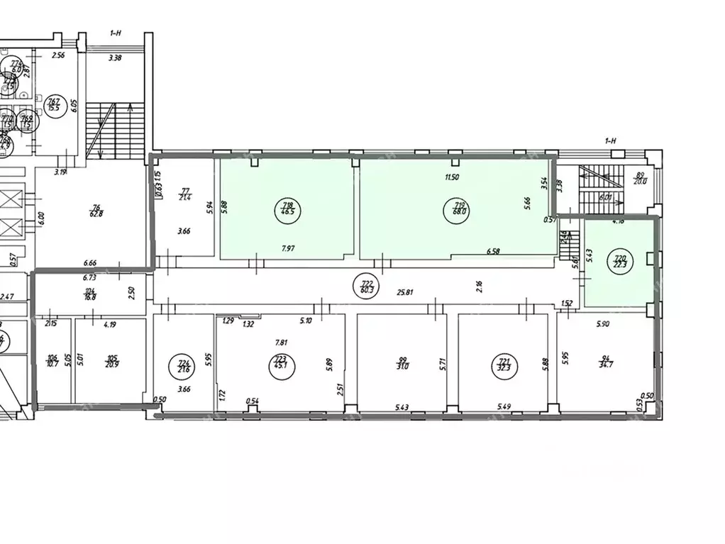
Информация о помещении и здании

4
Этаж
5
Этажность
Развернуть
Агент
+7 (981) 250-98-22
Начать чат с агентом

Офис в Санкт-Петербург просп. Большой Васильевского острова, 83 (272 ...

Сдается в аренду просторный офис 271.5 кв.м недалеко от метро.Офис состоит из несколько помещений, расположенных на одном этаже.Подписание договора аренды напрямую с владельцем помещения. Работаем без комиссии, процентов и надбавок.В арендную ставку включено: - эксплуат.расходы,- уборка общих мест,- вывоз мусора,- охрана здания.В арендную ставку не входит: коммунальные услуги, электроэнергия, уборка офиса, интернет.• условия договора: 11 мес. предоплата за первый и последний месяц;• налогообложение: НДС;• вход в здание: для арендаторов по документу, для клиентов по документу;• парковка: на территории БЦ;• здание работает: 8.00...21.00, по выходным 08-00...21-00;Показы с 10.00 до 18.00 по будням.Получите подробную информацию об офисе. Отправим ее на почту или по Whatsapp.Для организации просмотра и для получения консультации по условиям аренды звоните.Для вас наши услуги абсолютно бесплатны — их оплачивают бизнес-центры.Описание бизнес-центра:Бизнес центр ДК Кирова находится между Средним и Большим проспектами В. В офисных помещениях выполнен современный ремонт. В ставку аренды офисов ДК Кирова входят оплата НДС, уборка мест общего пользования.

Читать полностью
    Позвонить Написать
    347 498 Р4 640 $ или 3 960
    Агент
    +7 (981) 250-98-22
    Начать чат с агентом
    Похожие предложения
    Офис (271.5 м) - Фото 1
    Офис (271.5 м) - Фото 2
    4-й этаж, всего 5 этажей

    Сдается в аренду 271.5 кв.м недалеко от метро. Договор аренды заключаете с собственником помещения. Без надбавки к итоговой стоимости аренды. В арендную ставку включено: - эксплуат.расходы, - уборка общих мест, - вывоз мусора, - охрана здания. В арендную...
    • 4/5 эт.
    347 498 Р
    Агент
    +7 (911) Показать номер
    Посмотреть контакты
    Офис в Санкт-Петербург наб. Реки Фонтанки, 76 (142 м) - Фото 1
    Офис в Санкт-Петербург наб. Реки Фонтанки, 76 (142 м) - Фото 2
    1-й этаж, всего 4 этажа

    Сдается в аренду помещение в бизнес-центре в непосредственной близости от метро.Бизнес-центр расположен в Центральном районе и находится в минутах от метро Звенигородская.Адрес: Санкт-Петербург, наб. реки Фонтанки д. 76.Ближайшее метро: Звенигородская.Арендная...
    • 1/4 эт.
    355 000 Р
    Агент
    +7 (911) Показать номер
    Посмотреть контакты
    Офис в Санкт-Петербург Синопская наб., 66-68-70А (210 м) - Фото 1
    Офис в Санкт-Петербург Синопская наб., 66-68-70А (210 м) - Фото 2
    1-й этаж, всего 1 этаж

    Сдаём статусный видовой офис в престижной локации. Особняк.Отличный ремонт . Два с/у. Вид - Нева. Парковка в охраняемом дворе за отдельную плату.Рядом Смольный, Ратуша.
    • 1/1 эт.
    350 000 Р
    Агент
    +7 (981) Показать номер
    Посмотреть контакты
    Офис в Санкт-Петербург 24-я Васильевского острова линия, 15/2 (102 м) - Фото 1
    Офис в Санкт-Петербург 24-я Васильевского острова линия, 15/2 (102 м) - Фото 2
    3-й этаж, всего 7 этажей

    Предлагается в аренду 101.6 кв.м недалеко от метро.Подписание договора аренды напрямую с владельцем помещения. Работаем без комиссии, процентов и надбавок.В арендную ставку включено: - НДС,- эксплуат.расходы,- уборка общих мест,- охрана здания.В арендную...
    • 3/7 эт.
    355 600 Р
    Агент
    +7 (981) Показать номер
    Посмотреть контакты
    Офис в Санкт-Петербург Левашовский просп., 12 (137 м) - Фото 1
    Офис в Санкт-Петербург Левашовский просп., 12 (137 м) - Фото 2
    2-й этаж, всего 7 этажей

    Офисное помещение 136.8 кв. м в бизнес-центре Левашовский 12 .Район: Петроградский. Ближайшие станции метро: Чкаловская, Петроградская. Характеристики:- Класс: B; - Арендопригодная площадь: 11332.3; - Код налоговой: 13; - Кол-во мест наземного паркинга:...
    • 2/7 эт.
    342 000 Р
    Агент
    +7 (981) Показать номер
    Посмотреть контакты

    Не нашли подходящего объявления?

    Оставьте заявку, и наши риэлторы подберут офис в районе Санкт-Петербурга

    (0)