3 404 000 Р 44 220 $ или 37 820

Информация о помещении и здании

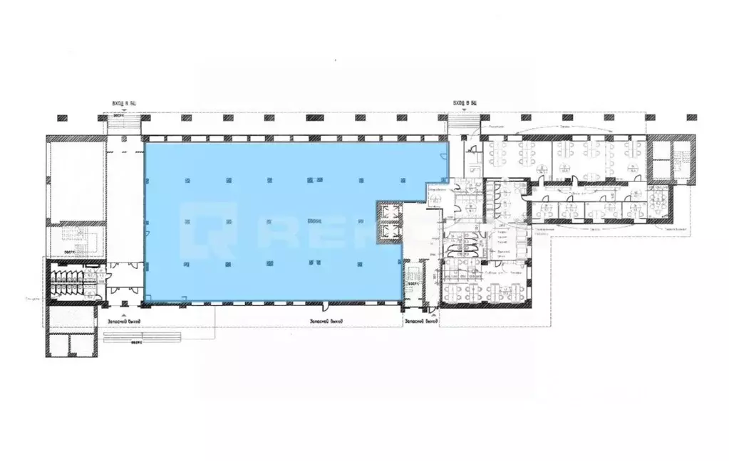
11
Этаж
17
Этажность
Развернуть
Агент
+7 (933) 786-94-18
Начать чат с агентом

Офис в Санкт-Петербург Пулковское ш., 28 (1480 м)

ПРЕСТИЖНЫЕ ОФИСЫ С КАЧЕСТВЕННОЙ ОТДЕЛКОЙ, РАЗЛИЧНЫЕ ВАРИАНТЫ ПЛОЩАДЕЙ. ПЛАТИМ АГЕНТАМ. Бизнес-центр Пулково Стар расположен по адресу Санкт-Петербург, Пулковское шоссе, 28, в шаговой доступности от станции метро Звездная. Дорога от метро занимает около 8 минут на транспорте.Налоговая: 23. Лифты: Есть. Вентиляция: . Кондиционирование: . Безопасность: Контроль доступа, Видеонаблюдение. Парковка: Наземная. Описание помещения: 10 этаж целиком- 799 м2 и 11 этаж- 319 м2, 12 этаж- 362 м2. Презентабельные офисные блоки с качественной отделкой. Помещения свободны и готовы к использованию. Планировка позволяет эффективно организовать рабочее пространство под различные бизнес задачи.Планировка: смешанная. Офисная отделка. Высота потолка: 3м. Тип налогообложения: С НДС. Лот

Читать полностью
    Позвонить Написать
    3 404 000 Р44 220 $ или 37 820
    Агент
    +7 (933) 786-94-18
    Начать чат с агентом
    Похожие предложения
    Офис в Санкт-Петербург Косая линия, 16к2 (955 м) - Фото 1
    Офис в Санкт-Петербург Косая линия, 16к2 (955 м) - Фото 2
    1-й этаж, всего 4 этажа

    Сдается в аренду помещение в бизнес-центре класса В в непосредственной близости от метро.Бизнес-центр расположен в Василеостровском районе и находится в 6 минутах от метро Горный институт. Здание построено в 1983 году, оснащено всеми необходимыми инженерными...
    • 1/4 эт.
    3 342 500 Р
    Агент
    +7 (911) Показать номер
    Посмотреть контакты
    Офис в Санкт-Петербург Приморский просп., 54к1 (1263 м) - Фото 1
    Офис в Санкт-Петербург Приморский просп., 54к1 (1263 м) - Фото 2
    9-й этаж, всего 9 этажей

    Предлагаем в аренду помещения в бизнес-центре Примиум от собственника объекта.Адрес: Санкт-Петербург, пр-т Приморский, д. 54, к. 1.Транспортная инфраструктура:• Объект располагается в шаговой доступности от ст. м. Старая деревня и Беговая .Характеристики...
    • 9/9 эт.
    3 466 935 Р
    Агент
    +7 (981) Показать номер
    Посмотреть контакты
    Офис в Санкт-Петербург Пулковское ш., 28 (1482 м) - Фото 1
    Офис в Санкт-Петербург Пулковское ш., 28 (1482 м) - Фото 2
    10-й этаж, всего 19 этажей

    Офисное помещение 1 481.7 кв. м в бизнес-центре Pulkovo Star. Объект скоро освободится. Успейте забронировать на выгодных условиях. Готовность ко въезду уточняется по запросу. Район: Московский. Ближайшие станции метро: Звёздная. Характеристики:- Класс:...
    • 10/19 эт.
    3 407 910 Р
    Агент
    +7 (981) Показать номер
    Посмотреть контакты
    Офис в Санкт-Петербург Приморский просп., 54к1 (1263 м) - Фото 1
    Офис в Санкт-Петербург Приморский просп., 54к1 (1263 м) - Фото 2
    9-й этаж, всего 9 этажей

    Офисное помещение 1 263.2 кв. м в бизнес-центре Примиум .Район: Приморский. Ближайшие станции метро: Беговая, Старая Деревня. Характеристики:- Класс: A; - Арендопригодная площадь: 14762.88; - Код налоговой: 14; - Наличие лифта: Есть; - Кол-во мест подземного...
    • 9/9 эт.
    3 467 484 Р
    Агент
    +7 (981) Показать номер
    Посмотреть контакты
    Офис (1481.7 м) - Фото 1
    Офис (1481.7 м) - Фото 2
    10-й этаж, всего 19 этажей

    Офисное помещение 1 481.7 кв. м в бизнес-центре Pulkovo Star. Объект скоро освободится. Успейте забронировать на выгодных условиях. Готовность ко въезду уточняется по запросу. Район: Московский. Ближайшие станции метро: Звёздная. Характеристики:- Класс:...
    • 10/19 эт.
    3 407 910 Р
    Агент
    +7 (981) Показать номер
    Посмотреть контакты

    Не нашли подходящего объявления?

    Оставьте заявку, и наши риэлторы подберут офис в районе Санкт-Петербурга

    (0)