77 160 Р 980 $ или 848

Информация о помещении и здании

2
Этаж
5
Этажность
Развернуть
Агент
+7 (981) 250-98-22
Начать чат с агентом

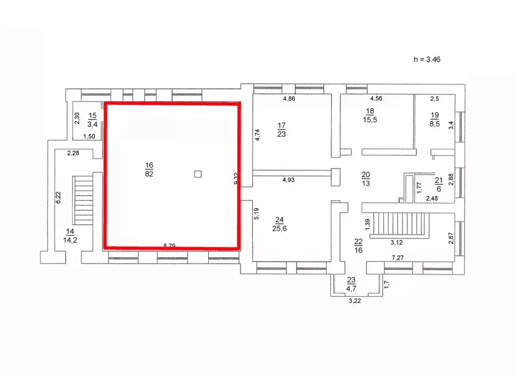
Офис в Санкт-Петербург Бумажная ул., 16к1 (64 м)

Предлагаем арендовать просторный офис 64.3 кв.м недалеко от метро.Договор аренды заключаете с собственником помещения. Без надбавки к итоговой стоимости аренды.В арендную ставку включено: - коммунальные услуги, включая электроэнергию,- эксплуат.расходы,- уборка общих мест,- вывоз мусора,- охрана здания.В арендную ставку не входит: уборка офиса, интернет.• условия договора: 11 мес. предоплата за первый и последний месяц;• налогообложение: НДС;• вход в здание: для арендаторов по документу, для клиентов по документу;• интернет провайдеры: Стартелеком, Смарттелеком, Билайн, порттелеком;• парковка: на территории БЦ;• здание работает: 8...22, кроме выходных;Показы с 10.00 до 18.00 по будням.Поможем провести переговоры по условиям аренды, удовлетворив все стороны.Для организации просмотра и для получения консультации по условиям аренды звоните.Для вас наши услуги абсолютно бесплатны — их оплачивают бизнес-центры.Описание бизнес-центра:Деловой центр Портал находится в непосредственной близости к нескольким станциям метро, например Нарвская и Балтийская , а именно в Адмиралтейском районе на Бумажной улице. При аренде офиса в Портал немаловажным полезным фактором может стать наличие трёх кафе.

Читать полностью
    Позвонить Написать
    77 160 Р980 $ или 848
    Агент
    +7 (981) 250-98-22
    Начать чат с агентом
    Похожие предложения
    Офис в Санкт-Петербург Химический пер., 8к2 (82 м) - Фото 1
    Офис в Санкт-Петербург Химический пер., 8к2 (82 м) - Фото 2
    1-й этаж, всего 3 этажа

    Сдаётся офис. Дизайнерский ремонт.
    • 1/3 эт.
    76 260 Р
    Агент
    +7 (911) Показать номер
    Посмотреть контакты
    Офис (70.3 м) - Фото 1
    Офис (70.3 м) - Фото 2
    2-й этаж, всего 4 этажа

    Аренда офиса от собственника по адресу: Заозерная улица, дом 8.Идеально подходит для размещения сотрудников небольшой фирмы.Расположен вблизи станции метро Фрунзенская .К услугам арендаторов: - электричество, отопление и освещение;- круглосуточная охрана...
    • 2/4 эт.
    77 260 Р
    Агент
    +7 (911) Показать номер
    Посмотреть контакты
    Офис в Санкт-Петербург Красногвардейский пер., 23Е (64 м) - Фото 1
    Офис в Санкт-Петербург Красногвардейский пер., 23Е (64 м) - Фото 2
    2-й этаж, всего 6 этажей

    Предлагается в аренду от собственника помещение под учебный кабинет общей площадью 64.4 кв. м. 2-й этаж здания на Красногвардейском пер., д.23. Коридорно-кабинетная планировка. Выполнена качественная отделка. К услугам арендаторов: цифровая телефония,...
    • 2/6 эт.
    76 765 Р
    Агент
    +7 (981) Показать номер
    Посмотреть контакты
    Офис в Санкт-Петербург Уральская ул., 19к10 (110 м) - Фото 1
    Офис в Санкт-Петербург Уральская ул., 19к10 (110 м) - Фото 2
    2-й этаж, всего 6 этажей

    Предлагаем в аренду офисный блок площадью 109.7 кв. м на Уральской улице, д. 19. 2-й этаж БЦ. Коридорно-кабинетная планировка. Коммуникации: высокоскоростной интернет, цифровая телефония. Оснащение: отопление, освещение, электроснабжение. Проход осуществляется...
    • 2/6 эт.
    76 680 Р
    Агент
    +7 (981) Показать номер
    Посмотреть контакты
    Офис в Санкт-Петербург просп. Просвещения, 83 (38 м) - Фото 1
    Офис в Санкт-Петербург просп. Просвещения, 83 (38 м) - Фото 2
    4-й этаж, всего 24 этажа

    Площадь: 38 кв.м. Этаж: 4. Планировка: open space (открытая). Окна: обычные. Потолки: 2.7 м. Состояние помещения: с отличным ремонтом. Инженерные системы: кондиционирование, приточно-вытяжная вентиляция. В ставку включено: НДС, коммунальные услуги. Пропускной...
    • 4/24 эт.
    77 330 Р
    Агент
    +7 (911) Показать номер
    Посмотреть контакты

    Не нашли подходящего объявления?

    Оставьте заявку, и наши риэлторы подберут офис в районе Санкт-Петербурга

    (0)