Россия, Санкт-Петербург, Большая Разночинная улица, 14
770 000 Р 9 480 $ или 8 260

Информация о помещении и здании

4
Этаж
5
Этажность
Развернуть
Агент
+7 (911) 150-03-66
Начать чат с агентом

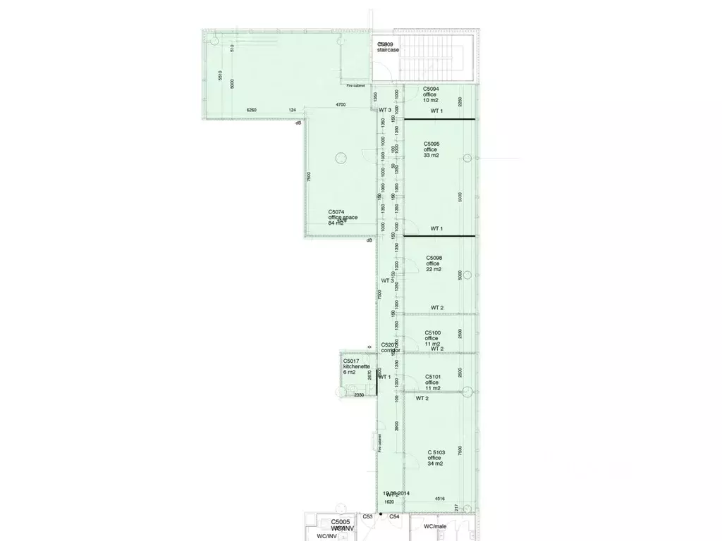
Офис (385 м)

Аренда офиса от собственника 385 кв.м недалеко от метро. Подписание договора аренды напрямую с владельцем помещения. Работаем без комиссии, процентов и надбавок. В арендную ставку включено: - коммунальные услуги, включая электроэнергию, - уборка офиса, - уборка общих мест. В арендную ставку не входит: эксплуат.расходы, интернет. • планировка в офисе: кабинетная; • условия договора: 11 мес. предоплата за первый и последний месяц; • налогообложение: НДС или УСН; • вход в здание: для арендаторов по документу, для клиентов по документу; • интернет провайдеры: Простор-Телеком, Вест Колл, Смарт-Телеком, Ростелеком, Обит, Силанка, МТС; • парковка: на территории БЦ; • здание работает: круглосуточно; Показы в рабочее время. Поможем провести переговоры по условиям аренды, удовлетворив все стороны. Звоните. Мы оперативно организуем просмотр помещения в удобную для вас дату и ответим на все интересующие вопросы. Для вас наши услуги бесплатны, их оплачивает БЦ. Описание бизнес-центра: , а также Чкаловский проспект. В здании современное инженерно-техническое оснащение, отличный ремонт помещений – все это делает деловой центр «Бизнес Депо одним из лучших офисных комплексов категории «В+ в Санкт-Петербурге. Базовая арендная ставка включает в себя НДС и все основные расходы, в том числе коммунальные платежи и клининг.

Читать полностью
    Позвонить Написать
    770 000 Р9 480 $ или 8 260
    Агент
    +7 (911) 150-03-66
    Начать чат с агентом
    Похожие предложения
    Офис в Санкт-Петербург Большая Разночинная ул., 14 (385 м) - Фото 1
    Офис в Санкт-Петербург Большая Разночинная ул., 14 (385 м) - Фото 2
    4-й этаж, всего 5 этажей

    Предлагается в аренду офис 385 кв.м недалеко от метро. Состояние отделки — готово к въезду.Подписание договора аренды напрямую с владельцем помещения. Работаем без комиссии, процентов и надбавок.В арендную ставку включено: - коммунальные услуги, включая...
    • 4/5 эт.
    770 000 Р
    Агент
    +7 (981) Показать номер
    Посмотреть контакты
    Офис в Санкт-Петербург Литейный просп., 26 (263 м) - Фото 1
    Офис в Санкт-Петербург Литейный просп., 26 (263 м) - Фото 2
    1-й этаж, всего 6 этажей

    Офисное помещение 263.3 кв. м в бизнес-центре Преображенский Двор .Район: Центральный. Ближайшие станции метро: Чернышевская, Маяковская, Достоевская. Характеристики:- Класс: A; - Арендопригодная площадь: 20100; - Код налоговой: 41; - Высота потолков:...
    • 1/6 эт.
    763 570 Р
    Агент
    +7 (981) Показать номер
    Посмотреть контакты
    Офис в Санкт-Петербург Пулковское ш., 40к4 (296 м) - Фото 1
    Офис в Санкт-Петербург Пулковское ш., 40к4 (296 м) - Фото 2
    5-й этаж, всего 8 этажей

    Офисное помещение 295.9 кв. м в бизнес-центре NOBIUS.Район: Московский. Ближайшие станции метро: Звёздная. Характеристики:- Класс: A; - Арендопригодная площадь: 36800; - Код налоговой: 10; - Размер типового этажа: 2190; - Развозка: Шаттл; - Наличие лифта:...
    • 5/8 эт.
    776 199 Р
    Агент
    +7 (981) Показать номер
    Посмотреть контакты
    Офис в Санкт-Петербург ул. Кропоткина, 1З (276 м) - Фото 1
    Офис в Санкт-Петербург ул. Кропоткина, 1З (276 м) - Фото 2
    1-й этаж, всего 7 этажей

    Аренда коммерческой недвижимости от собственника сети БЦ Сенатор . Предлагаем аренду помещения в современном бизнес-центре Сенатор и возможность снять коммерческое помещение премиум-класса для вашего бизнеса. Идеальный вариант для тех, кто ищет надежную...
    • 1/7 эт.
    773 640 Р
    Агент
    +7 (911) Показать номер
    Посмотреть контакты
    Офис в Санкт-Петербург Гражданская ул., 13-15 (130 м) - Фото 1
    Офис в Санкт-Петербург Гражданская ул., 13-15 (130 м) - Фото 2
    4-й этаж, всего 5 этажей

    Бертгольд Центр- это креативное пространство, расположенное в отреставрированном старинном промышленном здании бывшей словолитни имени Германа Бертгольда- фабрики по созданию типографских шрифтов для ручного набора.Налоговая: 07. Лифты: Есть. Вентиляция:...
    • 4/5 эт.
    780 000 Р
    Агент
    +7 (933) Показать номер
    Посмотреть контакты

    Не нашли подходящего объявления?

    Оставьте заявку, и наши риэлторы подберут офис в районе Санкт-Петербурга

    (0)