892 000 Р 10 730 $ или 9 420

Информация о помещении и здании

5
Этаж
7
Этажность
Развернуть
Агент
+7 (933) 786-94-18
Начать чат с агентом

Офис в Санкт-Петербург ул. Жуковского, 19 (170 м)

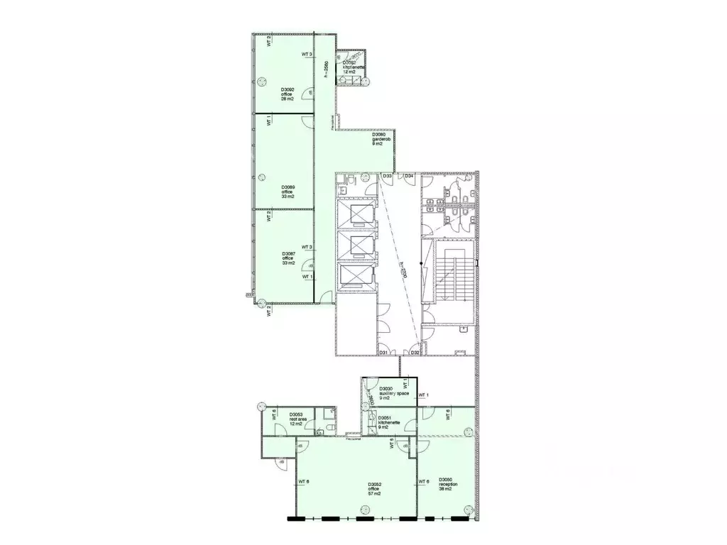
АГЕНТАМ ПЛАТИМ. Рентавик — участник ассоциации КОКОН Отдельно стоящее здание в центре Петербурга, в пешей доступности находятся станции метро Маяковская, Площадь Восстания, Достоевская. Полностью реконструированный особняк- современный бизнес- центр со стеклянным атриумом.Налоговая: 23. Лифты: Есть. Вентиляция: Приточно-вытяжная. Кондиционирование: Центральное. Безопасность: Круглосуточный доступ, Круглосуточная охрана, Система пожаротушений, Видеонаблюдение. Парковка: Подземная. Описание помещения: Офисный блок наабочих места.Пространство уже оборудовано всей необходимой мебелью - функциональные рабочие столы, офисные кресла, места хранения для документов.Планировка: смешанная. Офисная отделка. Лофт. Мебель. Тип налогообложения: С НДС. Лот

Читать полностью
    Позвонить Написать
    892 000 Р10 730 $ или 9 420
    Агент
    +7 (933) 786-94-18
    Начать чат с агентом
    Похожие предложения
    Офис (491.1 м) - Фото 1
    Офис (491.1 м) - Фото 2
    3-й этаж, всего 5 этажей

    Сдается в аренду 491.1 кв.м недалеко от метро. Помещение доступно для аренды с 01.04.2026. Договор аренды заключаете с собственником помещения. Без надбавки к итоговой стоимости аренды. В арендную ставку включено: - коммунальные услуги, не включая...
    • 3/5 эт.
    883 980 Р
    Агент
    +7 (911) Показать номер
    Посмотреть контакты
    Офис в Санкт-Петербург Садовая ул., 28-30к20 (97 м) - Фото 1
    Офис в Санкт-Петербург Садовая ул., 28-30к20 (97 м) - Фото 2
    1-й этаж, всего 3 этажа

    Код лота: 62C46C. Реализуется на торгах. Реализуется право аренды помещения свободного назначения, расположенного на Садовой улице, на территории Апраксина двора. Договор аренды заключается сроком на 3 (три) года для использования под нежилые цели. ...
    • 1/3 эт.
    880 126 Р
    Агент
    +7 (989) Показать номер
    Посмотреть контакты
    Офис в Санкт-Петербург Глазурная ул., 8/10 (600 м) - Фото 1
    Офис в Санкт-Петербург Глазурная ул., 8/10 (600 м) - Фото 2
    1-й этаж, всего 4 этажа

    ID: 831663для ценителей тишины и спокойствияделовой центр на Глазурной 8/10 приглашает арендаторов, по условиям можно договориться,в данный момент предлагаем в аренду офисы общей площадью 610 м2, из них -на первом этаже (218,2 м2), - на втором этаже...
    • 1/4 эт.
    900 000 Р
    Агент
    +7 (981) Показать номер
    Посмотреть контакты
    Офис в Санкт-Петербург Пулковское ш., 40к4 (336 м) - Фото 1
    Офис в Санкт-Петербург Пулковское ш., 40к4 (336 м) - Фото 2
    3-й этаж, всего 8 этажей

    Офисное помещение 336.4 кв. м в бизнес-центре NOBIUS.Район: Московский. Ближайшие станции метро: Звёздная. Характеристики:- Класс: A; - Арендопригодная площадь: 36800; - Код налоговой: 10; - Размер типового этажа: 2190; - Развозка: Шаттл; - Наличие лифта:...
    • 3/8 эт.
    882 351 Р
    Агент
    +7 (981) Показать номер
    Посмотреть контакты
    Офис в Санкт-Петербург наб. Реки Мойки, 75-79Б (235 м) - Фото 1
    Офис в Санкт-Петербург наб. Реки Мойки, 75-79Б (235 м) - Фото 2
    2-й этаж, всего 5 этажей

    Офисное помещение 234.6 кв. м в бизнес-центре Особняки в МФК У Красного Моста .Район: Адмиралтейский. Ближайшие станции метро: Адмиралтейская, Спасская, Сенная площадь. Характеристики:- Класс: A; - Арендопригодная площадь: 2000; - Код налоговой: 38;...
    • 2/5 эт.
    891 480 Р
    Агент
    +7 (981) Показать номер
    Посмотреть контакты

    Не нашли подходящего объявления?

    Оставьте заявку, и наши риэлторы подберут офис в районе Санкт-Петербурга

    (0)