69 670 Р 895 $ или 768

Информация о помещении и здании

3
Этаж
6
Этажность
Развернуть
Агент
+7 (911) 269-60-75
Начать чат с агентом

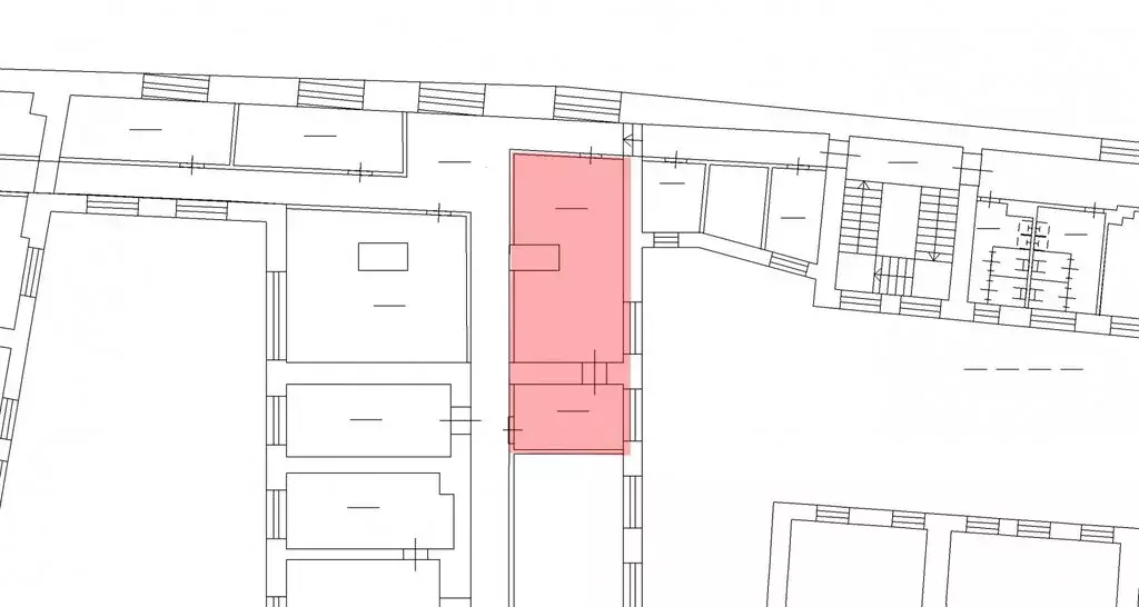
Офис (49.8 м)

Аренда офиса в Петроградском районе.Площадь помещения составляет 49.7кв.м. Расположено на 3-м этаже.К услугам арендаторов: высокоскоростной интернет, цифровая телефония.Ближайшая станция метро - Горьковская -в 10 минутах. На территории БЦ есть столовая.Ведется круглосуточная охрана, установлена система контроля доступа. Расположение: ул. Мира, д. 3.Более подробную информацию можете узнать у менеджеров колл-центра.

Читать полностью
    Позвонить Написать
    69 670 Р895 $ или 768
    Агент
    +7 (911) 269-60-75
    Начать чат с агентом
    Похожие предложения
    Офис в Санкт-Петербург Мельничная ул., 18 (64 м) - Фото 1
    Офис в Санкт-Петербург Мельничная ул., 18 (64 м) - Фото 2
    8-й этаж, всего 8 этажей

    Вниманию арендаторов предлагается помещение площадью 64,3 м2 под офисную деятельность. Расположено на восьмом этаже Бизнес-Центра. Кабинетная планировка из двух комнат.В хорошем состоянии, после ремонта. Произведена стандартная отделка. Потолки подвесные...
    • 8/8 эт.
    70 730 Р
    Агент
    +7 (911) Показать номер
    Посмотреть контакты
    Офис в Санкт-Петербург просп. Большой Васильевского острова, 83 (52 м) - Фото 1
    Офис в Санкт-Петербург просп. Большой Васильевского острова, 83 (52 м) - Фото 2
    4-й этаж, всего 5 этажей

    Предлагается в аренду офис 51.5 кв.м недалеко от метро.Договор аренды заключаете с собственником помещения. Без надбавки к итоговой стоимости аренды.В арендную ставку включено: - эксплуат.расходы,- уборка общих мест.В арендную ставку не входит: коммунальные...
    • 4/5 эт.
    70 298 Р
    Агент
    +7 (981) Показать номер
    Посмотреть контакты
    Офис в Санкт-Петербург Большой Сампсониевский просп., 61к2 (15 м) - Фото 1
    Офис в Санкт-Петербург Большой Сампсониевский просп., 61к2 (15 м) - Фото 2
    4-й этаж, всего 4 этажа

    Сдается в аренду 14.9 кв.м недалеко от метро. Состояние отделки — готово к въезду.Договор аренды заключаете с собственником помещения. Без надбавки к итоговой стоимости аренды.В арендную ставку включено: - эксплуат.расходы,- уборка общих мест,- вывоз...
    • 4/4 эт.
    69 500 Р
    Агент
    +7 (981) Показать номер
    Посмотреть контакты
    Офис в Санкт-Петербург Арсенальная ул., 78 (47 м) - Фото 1
    Офис в Санкт-Петербург Арсенальная ул., 78 (47 м) - Фото 2
    2-й этаж, всего 2 этажа

    Аренда офиса 47 кв.м.Подписание договора аренды напрямую с владельцем помещения. Работаем без комиссии, процентов и надбавок.В арендную ставку включено: - коммунальные услуги, не включая электроэнергию,- уборка офиса,- уборка общих мест,- вывоз мусора,-...
    • 2/2 эт.
    69 090 Р
    Агент
    +7 (981) Показать номер
    Посмотреть контакты
    Офис в Санкт-Петербург просп. Чернышевского, 16 (33 м) - Фото 1
    Офис в Санкт-Петербург просп. Чернышевского, 16 (33 м) - Фото 2
    4-й этаж, всего 5 этажей

    ID: 832339В историческом центре Санкт-Петербурга в 2-х минутах пешком от станции метро Чернышевского сдается в аренду светлый , отремонтированный офис. В стоимость включены: услуги по круглосуточной охране, системе видеонаблюдения, коммунальные платежи,...
    • 4/5 эт.
    69 930 Р
    Агент
    +7 (981) Показать номер
    Посмотреть контакты

    Не нашли подходящего объявления?

    Оставьте заявку, и наши риэлторы подберут офис в районе Санкт-Петербурга

    (0)