Россия, Санкт-Петербург, 26-я Васильевского острова линия, 7
6 222 810 Р 74 860 $ или 65 730

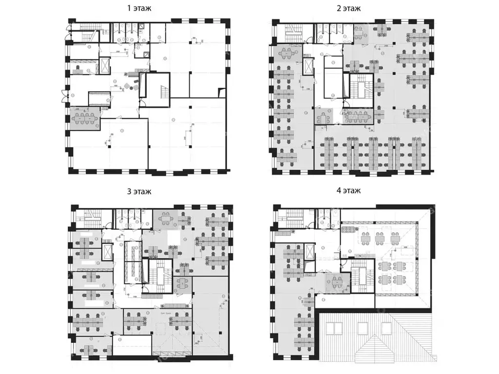
Информация о помещении и здании

1
Этаж
4
Этажность
Развернуть
Агент
+7 (911) 194-52-88
Начать чат с агентом

Офис в Санкт-Петербург 26-я Васильевского острова линия, 7 (1886 м)

Особняк целиком в 5 минутах от метро, готовый офис с парковкой; прямая аренда, без комиссии.• Площадь: 1 885,7 м, 1-4 этажи, класс B+ • Планировка: open space, кабинеты, переговорные, кухня, с/у• Состояние: современный качественный ремонт• Парковка: подземная, 30 м/м • Локация: 5 минут пешком до метро Горный институт, выезд на Большой проспект В. О.• Коммерческие условия: ставка 3 300 /м, НДС и OPEX включены, прямой договор, без комиссииВ аренду предлагается особняк Шопена целиком. Формат идеально подойдет для размещения штаб-квартиры, крупной корпоративной команды или представительства компании. Готовность к въезду — апрель 2026 года.Офис класса B+ общей площадью 1 885,7 м занимает 4 этажа. Выполнен современный ремонт. Планировка смешанная: просторные зоны open space, кабинеты руководителей, переговорные комнаты. Предусмотрена оборудованная кухня, санузлы расположены на каждом этаже.Для арендатора доступно порядка 30 машино-мест в подземном паркинге.В шаговой доступности расположены кафе и рестораны, супермаркеты и другие объекты городской инфраструктуры.До метро Горный институт — 5 минут пешком. Рядом — остановки наземного транспорта. Для автомобилистов удобный выезд на Большой проспект В. О. и набережную, что обеспечивает быстрый доступ в другие районы города.Арендная ставка составляет/мес. В стоимость включены НДС и эксплуатационные расходы (OPEX). Договор аренды — прямой, с собственником, без комиссий.Готовы оперативно организовать просмотр в удобное время, а также предоставить PDF-презентацию, план и видеотур по запросу.

Читать полностью
    Позвонить Написать
    6 222 810 Р74 860 $ или 65 730
    Агент
    +7 (911) 194-52-88
    Начать чат с агентом
    Похожие предложения
    Офис в Санкт-Петербург 26-я Васильевского острова линия, 7 (1886 м) - Фото 1
    Офис в Санкт-Петербург 26-я Васильевского острова линия, 7 (1886 м) - Фото 2
    1-й этаж, всего 4 этажа

    Офисное помещение 1 885.7 кв. м в бизнес-центре Особняк Шопена . Объект скоро освободится. Успейте забронировать на выгодных условиях. Готовность ко въезду уточняется по запросу. Район: Василеостровский. Ближайшие станции метро: Горный Институт. Характеристики:-...
    • 1/4 эт.
    6 222 810 Р
    Агент
    +7 (981) Показать номер
    Посмотреть контакты
    Офис в Санкт-Петербург Заусадебная ул., 25 (2774 м) - Фото 1
    Офис в Санкт-Петербург Заусадебная ул., 25 (2774 м) - Фото 2
    5-й этаж, всего 6 этажей

    Офисное помещение 2 773.5 кв. м в бизнес-центре Сабир .Район: Приморский. Ближайшие станции метро: Старая Деревня. Характеристики:- Класс: B+; - Арендопригодная площадь: 16100; - Размер типового этажа: 2800; - Высота потолков: 2.1 м, 2.7 м, 3 м, 3.6...
    • 5/6 эт.
    6 101 700 Р
    Агент
    +7 (981) Показать номер
    Посмотреть контакты
    Офис в Санкт-Петербург Заусадебная ул., 25 (2807 м) - Фото 1
    Офис в Санкт-Петербург Заусадебная ул., 25 (2807 м) - Фото 2
    4-й этаж, всего 6 этажей

    Офисное помещение 2 806.9 кв. м в бизнес-центре Сабир .Район: Приморский. Ближайшие станции метро: Старая Деревня. Характеристики:- Класс: B+; - Арендопригодная площадь: 16100; - Размер типового этажа: 2800; - Высота потолков: 2.1 м, 2.7 м, 3 м, 3.6...
    • 4/6 эт.
    6 175 180 Р
    Агент
    +7 (981) Показать номер
    Посмотреть контакты
    Офис в Санкт-Петербург Киевская ул., 5к3 (2168 м) - Фото 1
    Офис в Санкт-Петербург Киевская ул., 5к3 (2168 м) - Фото 2
    1-й этаж, всего 3 этажа

    Офисное помещение 2 167.9 кв. м в бизнес-центре Бернулли .Район: Московский. Ближайшие станции метро: Московские ворота, Балтийская. Характеристики:- Класс: B; - Арендопригодная площадь: 8070; - Код налоговой: 10; - Высота потолков: 2.8 м; - Кол-во мест...
    • 1/3 эт.
    6 102 639 Р
    Агент
    +7 (981) Показать номер
    Посмотреть контакты
    2-й этаж, всего 4 этажа

    БЦ Бекар - расположен в шаговой доступности от станция метро Выборгская, Петроградская. Есть собственный паркинг на 20 машино-мест. Налоговая: 17. Лифты: Нет. Вентиляция: Приточно-вытяжная. Кондиционирование: Сплит-системы. Безопасность: Круглосуточный...
    • 2/4 эт.
    6 255 000 Р
    Агент
    +7 (933) Показать номер
    Посмотреть контакты

    Не нашли подходящего объявления?

    Оставьте заявку, и наши риэлторы подберут офис в районе Санкт-Петербурга

    (0)