1 518 000 Р 20 040 $ или 16 780

Информация о помещении и здании

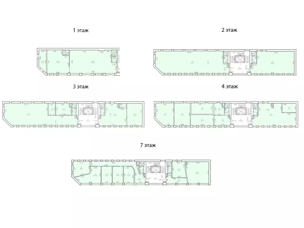
3
Этаж
7
Этажность
Развернуть
Агент
+7 (933) 786-94-18
Начать чат с агентом

Офис в Санкт-Петербург просп. Добролюбова, 8 (506 м)

Бизнес-центр находится в Петроградском районе Санкт-Петербурга, в непосредственной близости от станций метро Спортивная, Горьковская. Он возведен в исторической части Петербурга. В пешей доступности находятся остановки общественного транспорта.Налоговая: 25. Лифты: Есть. Вентиляция: Приточно-вытяжная. Кондиционирование: Центральное. Безопасность: Круглосуточная охрана, Контроль доступа, Система пожаротушений, Видеонаблюдение. Парковка: Наземная. Описание помещения: Два блока расположенные рядом на этаже - 310 м2 и 196 м2, с качественной отделкой, без мебели, санузлы в блоках, есть помещение под серверную, организована переговорная, есть доп.помещения, возможна перепланировка.Планировка: смешанная. Офисная отделка. Терраса/балкон. Высота потолка: 3м. Тип налогообложения: С НДС. Кол-во парковочных мест: 2. Лот

Читать полностью
    Позвонить Написать
    1 518 000 Р20 040 $ или 16 780
    Агент
    +7 (933) 786-94-18
    Начать чат с агентом
    Похожие предложения
    Офис в Санкт-Петербург наб. Реки Мойки, 60В (1080 м) - Фото 1
    Офис в Санкт-Петербург наб. Реки Мойки, 60В (1080 м) - Фото 2
    1-й этаж, всего 3 этажа

    К аренде предлагается отдельно стоящее здание целиком Удобная локация Если вас заинтересовал предлагаемый объект или вы готовы назначить просмотр позвоните или напишите нам- Удобная транспортная доступность - 6 минут от ст. метро Адмиралтейская , ...
    • 1/3 эт.
    1 404 000 Р
    Агент
    +7 (911) Показать номер
    Посмотреть контакты
    Офис в Санкт-Петербург Лиговский просп., 78к2 (864 м) - Фото 1
    Офис в Санкт-Петербург Лиговский просп., 78к2 (864 м) - Фото 2
    1-й этаж, всего 8 этажей

    Офисное помещение 863.6 кв. м в бизнес-центре Лиговский 78 .Район: Центральный. Ближайшие станции метро: Площадь Восстания, Обводный канал, Лиговский проспект. Характеристики:- Класс: B; - Арендопригодная площадь: 2000; - Код налоговой: 42; - Высота...
    • 1/8 эт.
    1 554 480 Р
    Агент
    +7 (981) Показать номер
    Посмотреть контакты
    Офис в Санкт-Петербург Невский просп., 68а (445 м) - Фото 1
    Офис в Санкт-Петербург Невский просп., 68а (445 м) - Фото 2
    5-й этаж, всего 6 этажей

    Офисное помещение 445.2 кв. м в бизнес-центре Невский 68 . Объект скоро освободится. Успейте забронировать на выгодных условиях. Готовность ко въезду уточняется по запросу. Район: Центральный. Ближайшие станции метро: Гостиный двор, Достоевская, Владимирская....
    • 5/6 эт.
    1 477 619 Р
    Агент
    +7 (981) Показать номер
    Посмотреть контакты
    Офис в Санкт-Петербург Стартовая ул., 8 (551 м) - Фото 1
    Офис в Санкт-Петербург Стартовая ул., 8 (551 м) - Фото 2
    8-й этаж, всего 8 этажей

    Офисное помещение 551.2 кв. м в бизнес-центре Аэроплаза .Район: Московский. Ближайшие станции метро: Звёздная. Характеристики:- Класс: A; - Развозка: Утро/вечер; - Глубина этажа: 20; - Арендопригодная площадь: 21500; - Код налоговой: 10; - Размер типового...
    • 8/8 эт.
    1 510 288 Р
    Агент
    +7 (981) Показать номер
    Посмотреть контакты
    Офис в Санкт-Петербург ул. Ефимова, 4к2 (407 м) - Фото 1
    Офис в Санкт-Петербург ул. Ефимова, 4к2 (407 м) - Фото 2
    1-й этаж, всего 8 этажей

    ПЛАТИМ АГЕНТАМ. Поможем с планом рассадки, ремонтом, мебелью. Бизнес- центр класса А в Адмиралтейском районе Санкт-Петербурга. Уникальное расположение в самом центре деловой жизни Петербурга, на Сенной площади, обеспечивает бизнес-центру прекрасную транспортную...
    • 1/8 эт.
    1 500 000 Р
    Агент
    +7 (933) Показать номер
    Посмотреть контакты

    Не нашли подходящего объявления?

    Оставьте заявку, и наши риэлторы подберут офис в районе Санкт-Петербурга

    (0)