36 036 Р 473 $ или 395

Информация о помещении и здании

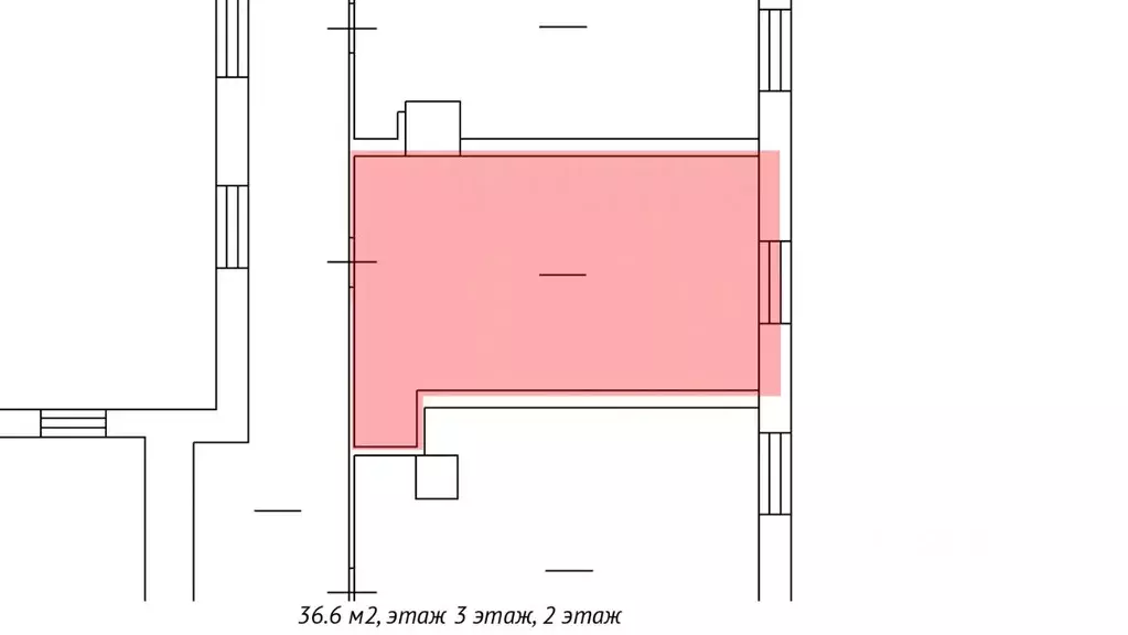
3
Этаж
6
Этажность
Развернуть
Агент
+7 (981) 689-39-02
Начать чат с агентом

Офис в Санкт-Петербург ул. Комсомола, 1-3И (26 м)

В аренду от собственника предлагается офис для КЛИНИНГОВОЙ КОМПАНИИ. Пешая доступность от станции метро Площадь Ленина . Помещение общей площадью 26 квадратных метров. Адрес: улица Комсомола, дом 1-3, литера И, 3 этаж. В помещение заведёны высокоскоростной интернет и телефония. Есть все необходимое оснащение (отопление, освещение). Офис соответствует всем противопожарным нормам, установлена пожарная сигнализация. Кабинетная планировка. Выполнен качественный ремонт. На территории много парковочных мест. На 1-м этаже здания работает столовая. Действует пропускная система. Охрана 24/7.

Читать полностью
    Позвонить Написать
    36 036 Р473 $ или 395
    Агент
    +7 (981) 689-39-02
    Начать чат с агентом
    Похожие предложения
    3-й этаж, всего 6 этажей

    Современный офис для IT-компании в технопарке Санкт-Петербурга. Технологичное пространство для вашей команды разработчиков. Расположение: ул. Комсомола, д. 1-3, охраняемая территория технопарка. Площадь помещения: 36,5 кв. м идеально для команды до 5-6...
    • 3/6 эт.
    36 829 Р
    Агент
    +7 (981) Показать номер
    Посмотреть контакты
    Офис в Санкт-Петербург ул. Комсомола, 1-3АУ (37 м) - Фото 1
    Офис в Санкт-Петербург ул. Комсомола, 1-3АУ (37 м) - Фото 2
    3-й этаж, всего 6 этажей

    Сдается в аренду офис для открытия стартапа. Площадь: 36,6 кв. м. Калининский район города. Территории технопарка Арсенал . Выполнена стандартная отделка помещения. Офис расположен на 3-м этаже административного здания. На территории имеются столовая,...
    • 3/6 эт.
    36 563 Р
    Агент
    +7 (981) Показать номер
    Посмотреть контакты
    Офис в Санкт-Петербург ул. Комсомола, 1-3АУ (36 м) - Фото 1
    Офис в Санкт-Петербург ул. Комсомола, 1-3АУ (36 м) - Фото 2
    3-й этаж, всего 6 этажей

    Аренда офиса в Калининском районе. Площадь 36,4 кв. м. Адрес: ул. Комсомола, д. 1-3. Офисное помещение прекрасно подойдёт для небольшой IT-компании. На предлагаемой площади можно разместить весь штат сотрудников. Выполнена стандартная отделка помещения...
    • 3/6 эт.
    35 636 Р
    Агент
    +7 (981) Показать номер
    Посмотреть контакты
    Офис в Санкт-Петербург ш. Революции, 69 (27 м) - Фото 1
    Офис в Санкт-Петербург ш. Революции, 69 (27 м) - Фото 2
    2-й этаж, всего 5 этажей

    Сдается в аренду офис 27 кв.м.Договор аренды заключаете с собственником помещения. Без надбавки к итоговой стоимости аренды.В арендную ставку включено: - коммунальные услуги, не включая электроэнергию,- эксплуат.расходы,- уборка офиса,- уборка общих мест.В...
    • 2/5 эт.
    36 855 Р
    Агент
    +7 (981) Показать номер
    Посмотреть контакты
    Офис (28.7 м) - Фото 1
    Офис (28.7 м) - Фото 2
    7-й этаж, всего 8 этажей

    Офис площадью 28,7 м2 на 7 этаже.В арендную ставку входит:• уборка мест общего пользования;• тех. обслуживание инженерных систем;• предоставление юридического адреса.• коммунальные платежи;• бесплатный автобус для арендаторов утром и вечером (по два рейса)Стоимость...
    • 7/8 эт.
    35 875 Р
    Агент
    +7 (812) Показать номер
    Посмотреть контакты

    Не нашли подходящего объявления?

    Оставьте заявку, и наши риэлторы подберут офис в районе Санкт-Петербурга

    (0)