444 630 Р 5 490 $ или 4 730

Информация о помещении и здании

5
Этаж
6
Этажность
Развернуть
Агент
+7 (981) 970-32-17
Начать чат с агентом

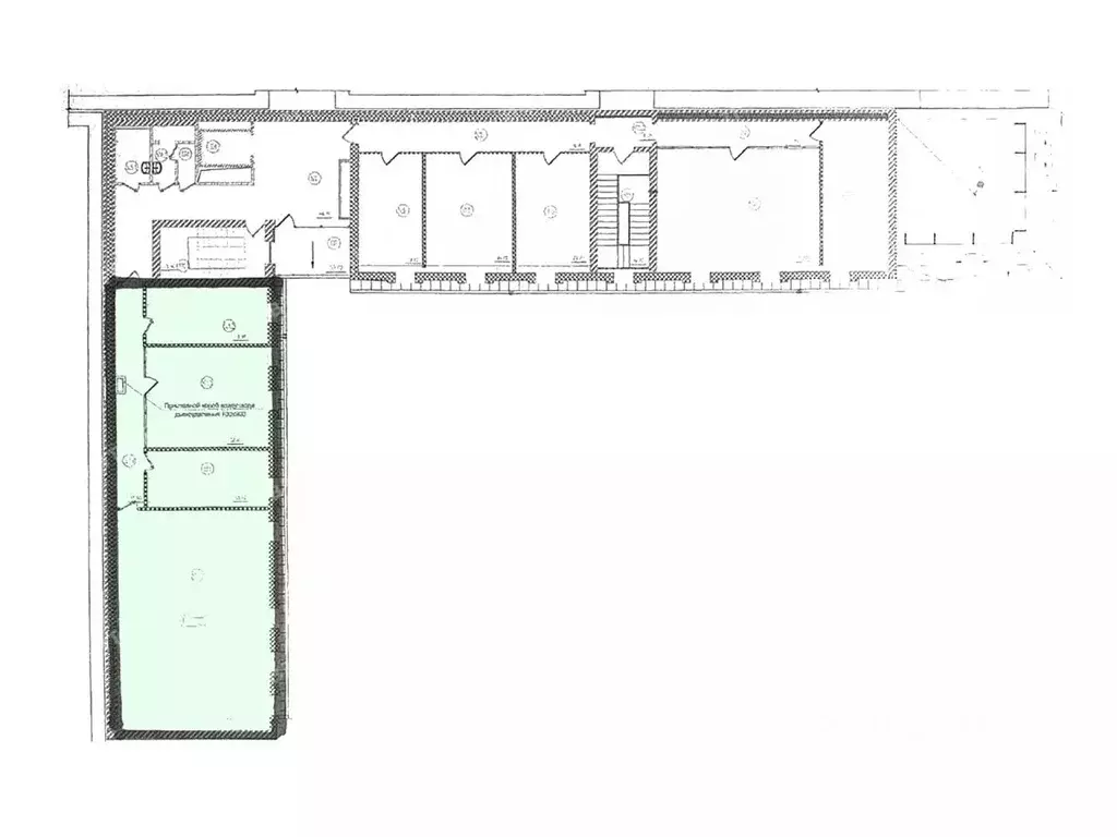
Офис в Санкт-Петербург Инструментальная ул., 3Б (142 м)

Аренда офиса в петроградском районе, в пешей доступности до станции метро Петроградская.Офис расположен в бизнес центре класса А.Технические характеристики:Площадь142,1 м25 этажСмешанная планировкаКондиционированиеПриточно-вытяжная вентиляцияПропускная системаНДС включенКУ включеныПаркинг: м/мПрямая аренда. Без комиссии.Звоните Арт.

Читать полностью
    Позвонить Написать
    444 630 Р5 490 $ или 4 730
    Агент
    +7 (981) 970-32-17
    Начать чат с агентом
    Похожие предложения
    Офис в Санкт-Петербург Садовая ул., 28-30к20 (119 м) - Фото 1
    Офис в Санкт-Петербург Садовая ул., 28-30к20 (119 м) - Фото 2
    подвальный этаж, всего 2 этажа

    Код лота: 62C46C. Реализуется на торгах. Право аренды помещения площадью 118, 6 кв. м в Апраксином дворе. Реализуется право аренды помещения свободного назначения, расположенного на Садовой улице, на территории Апраксина двора. Договор аренды заключается...
    • -2/2 эт.
    446 609 Р
    Агент
    +7 (989) Показать номер
    Посмотреть контакты
    Офис в Санкт-Петербург Магнитогорская ул., 30 (366 м) - Фото 1
    Офис в Санкт-Петербург Магнитогорская ул., 30 (366 м) - Фото 2
    3-й этаж, всего 10 этажей

    Вниманию арендаторов предлагается помещение под офисную деятельность площадью 366 м.кв. Располагается на 3-м этаже. Открытая планировка, два просторных помещения. Хорошее состояние. Выполнена стандартная офисная отделка. Здание оснащено современными...
    • 3/10 эт.
    439 200 Р
    Агент
    +7 (981) Показать номер
    Посмотреть контакты
    Офис в Санкт-Петербург ул. Чайковского, 1к2 (200 м) - Фото 1
    Офис в Санкт-Петербург ул. Чайковского, 1к2 (200 м) - Фото 2
    4-й этаж, всего 6 этажей

    Аренда коммерческой недвижимости от собственника сети БЦ Сенатор .В стоимость входит:коммунальные услуги (кроме электроэнергии);уборка помещений общего пользования;круглосуточная охрана здания;техническое обслуживание здания.Оплачивается отдельно:эксплуатационные...
    • 4/6 эт.
    440 660 Р
    Агент
    +7 (911) Показать номер
    Посмотреть контакты
    Офис в Санкт-Петербург Садовая ул., 28-30К1 (55 м) - Фото 1
    Офис в Санкт-Петербург Садовая ул., 28-30К1 (55 м) - Фото 2
    цокольный этаж, всего 3 этажа

    Код лота: 62C46C. Реализуется на торгах. Реализуется право аренды части помещения свободного назначения, расположенного на Садовой улице, на территории Апраксина двора. Помещение находится в собственности Санкт-Петербурга. Объект расположен в историческом...
    • -1/3 эт.
    449 000 Р
    Агент
    +7 (981) Показать номер
    Посмотреть контакты
    Офис в Санкт-Петербург ул. Седова, 12 (295 м) - Фото 1
    Офис в Санкт-Петербург ул. Седова, 12 (295 м) - Фото 2
    4-й этаж, всего 6 этажей

    РАБОТАЕМ С АГЕНТАМИ. РЕНТАВИК— участник ассоциации КОКОН. Современный 6-этажный бизнес-центр в Невском районе. Хорошую транспортную доступность обеспечивают близость проспекта Обуховской Обороны и КАД.Налоговая: 24. Лифты: Есть. Вентиляция: Приточно-вытяжная....
    • 4/6 эт.
    442 500 Р
    Агент
    +7 (933) Показать номер
    Посмотреть контакты

    Не нашли подходящего объявления?

    Оставьте заявку, и наши риэлторы подберут офис в районе Санкт-Петербурга

    (0)