232 500 Р 2 900 $ или 2 530

Информация о помещении и здании

2
Этаж
11
Этажность
Развернуть
Агент
+7 (933) 786-94-18
Начать чат с агентом

Офис в Санкт-Петербург ул. Профессора Качалова, 7 (150 м)

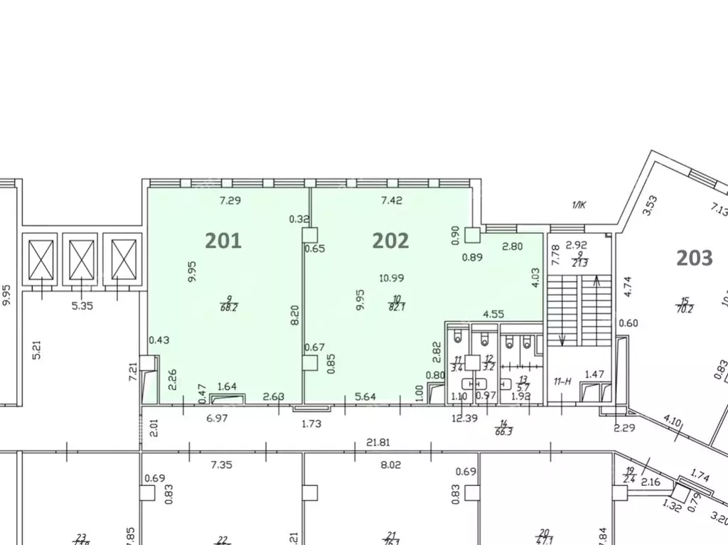
Новый бизнес-центр в исторической части города. Офисы с потрясающим видом на Неву. В бизнес-центре Мельник осуществляется трансфер сотрудников арендаторов от ст. метро пл. Александра Невского бесплатно утром и вечером по согласованному графику.Налоговая: 24. Лифты: Есть. Вентиляция: Приточно-вытяжная. Кондиционирование: Центральное. Безопасность: Круглосуточный доступ, Круглосуточная охрана, Контроль доступа, Система пожаротушений, Видеонаблюдение. Парковка: Наземная. Описание помещения: Два кабинета - 82.1 м2 и 68.2 м2, выполнена стандартная отделка - пол ламинат, стены под покраску, потолок подвесной- типа Армстронг. Санузел расположен на этаже. Свободны с 1 марта 2026 года.Планировка: смешанная. Офисная отделка. Высота потолка: 3м. Тип налогообложения: С НДС. Лот

Читать полностью
    Позвонить Написать
    232 500 Р2 900 $ или 2 530
    Агент
    +7 (933) 786-94-18
    Начать чат с агентом
    Похожие предложения
    Офис в Санкт-Петербург ул. Профессора Качалова, 7 (150 м) - Фото 1
    Офис в Санкт-Петербург ул. Профессора Качалова, 7 (150 м) - Фото 2
    2-й этаж, всего 11 этажей

    Офисное помещение 150.3 кв. м в бизнес-центре Мельник .Район: Невский. Ближайшие станции метро: Площадь Александра Невского-2, Площадь Александра Невского-1. Характеристики:- Класс: B+; - Арендопригодная площадь: 11169; - Код налоговой: 11; - Размер...
    • 2/11 эт.
    232 965 Р
    Агент
    +7 (981) Показать номер
    Посмотреть контакты
    Офис в Санкт-Петербург ул. Профессора Качалова, 7 (31 м) - Фото 1
    Офис в Санкт-Петербург ул. Профессора Качалова, 7 (31 м) - Фото 2
    11-й этаж, всего 11 этажей

    Новый бизнес-центр в исторической части города. Офисы с потрясающим видом на Неву. В бизнес-центре Мельник осуществляется трансфер сотрудников арендаторов от ст. метро пл. Александра Невского бесплатно утром и вечером по согласованному графику.Налоговая:...
    • 11/11 эт.
    228 000 Р
    Агент
    +7 (933) Показать номер
    Посмотреть контакты
    Офис в Санкт-Петербург ул. Профессора Качалова, 7 (150 м) - Фото 1
    Офис в Санкт-Петербург ул. Профессора Качалова, 7 (150 м) - Фото 2
    7-й этаж, всего 11 этажей

    Новый бизнес-центр в исторической части города. Офисы с потрясающим видом на Неву. В бизнес-центре Мельник осуществляется трансфер сотрудников арендаторов от ст. метро пл. Александра Невского бесплатно утром и вечером по согласованному графику.Налоговая:...
    • 7/11 эт.
    232 500 Р
    Агент
    +7 (933) Показать номер
    Посмотреть контакты
    Офис в Санкт-Петербург ул. Профессора Качалова, 7 (151 м) - Фото 1
    Офис в Санкт-Петербург ул. Профессора Качалова, 7 (151 м) - Фото 2
    7-й этаж, всего 11 этажей

    Офисное помещение 150.7 кв. м в бизнес-центре Мельник .Район: Невский. Ближайшие станции метро: Площадь Александра Невского-1, Площадь Александра Невского-2. Характеристики:- Класс: B+; - Арендопригодная площадь: 11169; - Код налоговой: 11; - Размер...
    • 7/11 эт.
    233 585 Р
    Агент
    +7 (981) Показать номер
    Посмотреть контакты
    Офис в Санкт-Петербург Кантемировская ул., 12 (167 м) - Фото 1
    Офис в Санкт-Петербург Кантемировская ул., 12 (167 м) - Фото 2
    2-й этаж, всего 24 этажа

    Сдается в аренду помещение в бизнес-центре класса В с хорошей транспортной доступностью. Отличное соотношение цена\качество.Бизнес-центр расположен в Приморском районе и находится в 10 минутах от метро Лесная. Здание построено в 1988 году, оснащено всеми...
    • 2/24 эт.
    225 450 Р
    Агент
    +7 (911) Показать номер
    Посмотреть контакты

    Не нашли подходящего объявления?

    Оставьте заявку, и наши риэлторы подберут офис в районе Санкт-Петербурга

    (0)