696 580 Р 9 200 $ или 7 700

Информация о помещении и здании

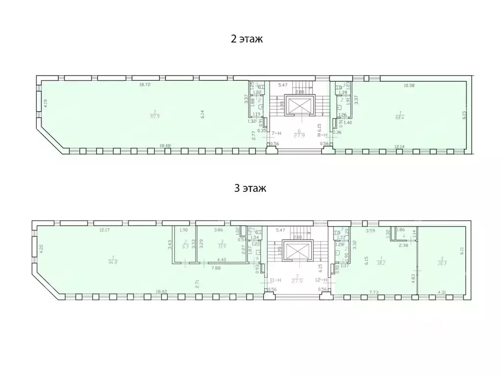
2
Этаж
3
Этажность
Развернуть
Агент
+7 (911) 150-03-66
Начать чат с агентом

Офис (579.1 м)

Сдается в аренду 579.1 кв.м. Требуется небольшой косметический ремонт. Договор аренды заключаете с собственником помещения. Без надбавки к итоговой стоимости аренды. В арендную ставку включено: - НДС, - коммунальные услуги, включая электроэнергию. В арендную ставку не входит: эксплуат.расходы, уборка офиса, уборка общих мест, интернет. • планировка в офисе: кабинетная; • кондиционер: в каждом офисе; • условия договора: 11 месяцев, предоплата 1 месяц; • налогообложение: НДС; • вход в здание: для арендаторов по документу, для клиентов по документу; • интернет провайдеры: Риц-инфо; • парковка: на территории БЦ; Показы в рабочее время. Поможем провести переговоры по условиям аренды, удовлетворив все стороны. Для организации просмотра и для получения консультации по условиям аренды звоните. Для вас наши услуги абсолютно бесплатны — их оплачивают бизнес-центры. Описание бизнес-центра: Деловой центр «Амиленасположен на набережной Обводного канала, недалеко от него находятся две станции метро — «Обводный канал и «Площадь Александра Невского . Например, трёхэтажное здание бизнес-центра «Амилен оборудовано системами пожарной сигнализации и системой частичной вентиляции и кондиционирования воздуха.

Читать полностью
    Позвонить Написать
    696 580 Р9 200 $ или 7 700
    Агент
    +7 (911) 150-03-66
    Начать чат с агентом
    Похожие предложения
    Офис в Санкт-Петербург Лиговский просп., 78к2 (384 м) - Фото 1
    Офис в Санкт-Петербург Лиговский просп., 78к2 (384 м) - Фото 2
    2-й этаж, всего 8 этажей

    Офисное помещение 383.9 кв. м в бизнес-центре Лиговский 78 .Район: Центральный. Ближайшие станции метро: Обводный канал, Лиговский проспект, Площадь Восстания. Характеристики:- Класс: B; - Арендопригодная площадь: 2000; - Код налоговой: 42; - Высота...
    • 2/8 эт.
    691 020 Р
    Агент
    +7 (981) Показать номер
    Посмотреть контакты
    Офис в Санкт-Петербург наб. Обводного Канала, 24 (579 м) - Фото 1
    Офис в Санкт-Петербург наб. Обводного Канала, 24 (579 м) - Фото 2
    2-й этаж, всего 3 этажа

    Аренда офиса от собственника 579.1 кв.м. Требуется небольшой косметический ремонт.Договор аренды заключаете с собственником помещения. Без надбавки к итоговой стоимости аренды.В арендную ставку включено: - НДС,- коммунальные услуги, включая электроэнергию.В...
    • 2/3 эт.
    696 580 Р
    Агент
    +7 (981) Показать номер
    Посмотреть контакты
    Офис в Санкт-Петербург Киевская ул., 5к3 (318 м) - Фото 1
    Офис в Санкт-Петербург Киевская ул., 5к3 (318 м) - Фото 2
    1-й этаж, всего 3 этажа

    Офисное помещение 317.7 кв. м в бизнес-центре Бернулли .Район: Московский. Ближайшие станции метро: Балтийская, Московские ворота. Характеристики:- Класс: B; - Арендопригодная площадь: 8070; - Код налоговой: 10; - Высота потолков: 2.8 м; - Кол-во мест...
    • 1/3 эт.
    698 940 Р
    Агент
    +7 (981) Показать номер
    Посмотреть контакты
    Офис в Санкт-Петербург 8-я Васильевского острова линия, 25 (125 м) - Фото 1
    Офис в Санкт-Петербург 8-я Васильевского острова линия, 25 (125 м) - Фото 2
    4-й этаж, всего 6 этажей

    Офисное помещение 125 кв. м в бизнес-центре Дом Карла Задлера .Район: Василеостровский. Ближайшие станции метро: Василеостровская, Спортивная, Горный Институт. Характеристики:- Класс: B+; - Арендопригодная площадь: 5342.2; - Код налоговой: 01. Арендная...
    • 4/6 эт.
    700 000 Р
    Агент
    +7 (981) Показать номер
    Посмотреть контакты
    Офис в Санкт-Петербург просп. Большой Васильевского острова, 68 (278 ... - Фото 1
    Офис в Санкт-Петербург просп. Большой Васильевского острова, 68 (278 ... - Фото 2
    2-й этаж, всего 4 этажа

    Офисное помещение 277.6 кв. м в бизнес-центре Балтийский .Район: Василеостровский. Ближайшие станции метро: Горный Институт, Василеостровская. Характеристики:- Класс: B+; - Арендопригодная площадь: 5550; - Код налоговой: 01. Арендная ставка:/кв. м в...
    • 2/4 эт.
    693 975 Р
    Агент
    +7 (981) Показать номер
    Посмотреть контакты

    Не нашли подходящего объявления?

    Оставьте заявку, и наши риэлторы подберут офис в районе Санкт-Петербурга

    (0)