Россия, Санкт-Петербург, Большой Сампсониевский просп., 28к2
436 200 Р 5 600 $ или 4 820

Информация о помещении и здании

5
Этаж
8
Этажность
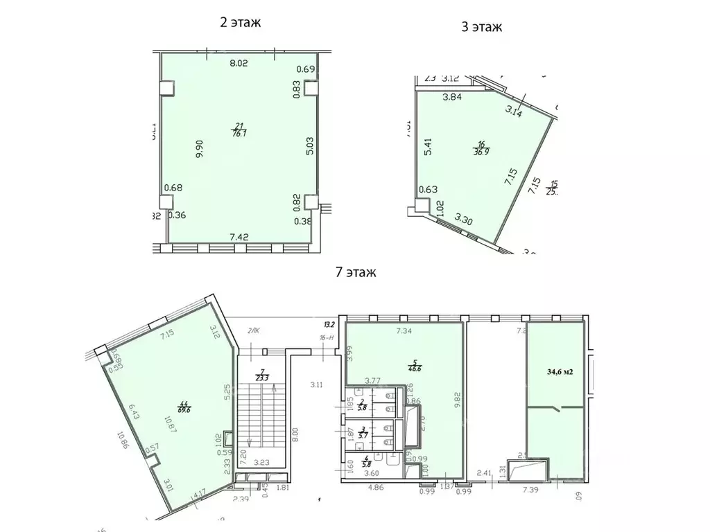
Развернуть
Агент
+7 (981) 145-24-02
Начать чат с агентом

Офис в Санкт-Петербург Большой Сампсониевский просп., 28к2 (218 м)

Офисное помещение 218.1 кв. м в бизнес-центре Mezon Plaza. Объект скоро освободится. Успейте забронировать на выгодных условиях. Готовность ко въезду уточняется по запросу. Район: Выборгский. Ближайшие станции метро: Выборгская, Площадь Ленина. Характеристики:- Класс: B+; - Арендопригодная площадь: 22600; - Код налоговой: 02; - Размер типового этажа: 3700; - Высота потолков: 2.8 м, 2.9 м; - Наличие лифта: Есть; - Кол-во мест наземного паркинга: 30; - Кол-во мест подземного паркинга: 167; - Интернет-провайдеры: Авантел, Билайн, ОБИТ, Прометей, РетнНет, Сити Телеком, Смарт Телеком, Эртелеком; - Шаг колонн: 8.1x8.1 м. Арендная ставка:/кв. м в месяц. Финансовые условия: - Оплачивается отдельно: Телефония, Уборка, Электроэнергия, OPEX, Интернет; - В стоимость включено: Коммунальные услуги, НДС; - Налог: Включая НДС. Без комиссии и скрытых платежей для арендатора. Готовы оперативно организовать просмотр в удобное время, предоставить PDF-презентацию и план. Точное местоположение объекта можно найти по данным координатам: 59.963466,30.343661 ID = c_1785988

Читать полностью
    Позвонить Написать
    436 200 Р5 600 $ или 4 820
    Агент
    +7 (981) 145-24-02
    Начать чат с агентом
    Похожие предложения
    Офис (218.1 м) - Фото 1
    Офис (218.1 м) - Фото 2
    5-й этаж, всего 8 этажей

    Предлагаем арендовать просторный офис 218.1 кв.м недалеко от метро. Состояние отделки — готово к въезду. Помещение доступно для аренды с 01.02.2026. Договор аренды заключаете с собственником помещения. Без надбавки к итоговой стоимости аренды. В арендную...
    • 5/8 эт.
    436 200 Р
    Агент
    +7 (911) Показать номер
    Посмотреть контакты
    Офис (218.1 м) - Фото 1
    Офис (218.1 м) - Фото 2
    5-й этаж, всего 8 этажей

    Сдается под офис блок 218.1 кв.м недалеко от метро. Состояние отделки — готово к въезду. Помещение доступно для аренды с 01.02.2026. Подписание договора аренды напрямую с владельцем помещения. Работаем без комиссии, процентов и надбавок. В арендную...
    • 5/8 эт.
    436 200 Р
    Агент
    +7 (911) Показать номер
    Посмотреть контакты
    Офис в Санкт-Петербург Большой Сампсониевский просп., 28к2 (218 м) - Фото 1
    Офис в Санкт-Петербург Большой Сампсониевский просп., 28к2 (218 м) - Фото 2
    5-й этаж, всего 8 этажей

    Предлагается в аренду 218.1 кв.м недалеко от метро.Офис состоит из несколько помещений, расположенных на одном этаже.Договор аренды заключаете с собственником помещения. Без надбавки к итоговой стоимости аренды.В арендную ставку включено: - НДС,- коммунальные...
    • 5/8 эт.
    436 200 Р
    Агент
    +7 (981) Показать номер
    Посмотреть контакты
    Офис в Санкт-Петербург Мельничная ул., 18 (390 м) - Фото 1
    Офис в Санкт-Петербург Мельничная ул., 18 (390 м) - Фото 2
    4-й этаж, всего 8 этажей

    Сдается в аренду просторный офис 390.3 кв.м. Состояние отделки — готово к въезду.Договор аренды заключаете с собственником помещения. Без надбавки к итоговой стоимости аренды.В арендную ставку включено: - НДС,- коммунальные услуги, включая электроэнергию,-...
    • 4/8 эт.
    436 965 Р
    Агент
    +7 (981) Показать номер
    Посмотреть контакты
    Офис в Санкт-Петербург ул. Профессора Качалова, 7 (264 м) - Фото 1
    Офис в Санкт-Петербург ул. Профессора Качалова, 7 (264 м) - Фото 2
    1-й этаж, всего 11 этажей

    Офисное помещение 263.8 кв. м в бизнес-центре Мельник .Район: Невский. Ближайшие станции метро: Площадь Александра Невского-1, Площадь Александра Невского-2. Характеристики:- Класс: B+; - Арендопригодная площадь: 11169; - Код налоговой: 11; - Размер...
    • 1/11 эт.
    448 460 Р
    Агент
    +7 (981) Показать номер
    Посмотреть контакты

    Не нашли подходящего объявления?

    Оставьте заявку, и наши риэлторы подберут офис в районе Санкт-Петербурга

    (0)