Реализация объекта недвижимости приостановлена

Информация о помещении и здании

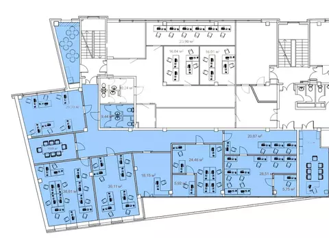
3
Этаж
6
Этажность
Развернуть

Офис (433.8 м)

Аренда коммерческой недвижимости от собственника сети БЦ Сенатор .В стоимость входит:коммунальные услуги (кроме электроэнергии);уборка помещений общего пользования;круглосуточная охрана здания;техническое обслуживание здания.Оплачивается отдельно:эксплуатационные платежи на содержание здания;уборка офиса (/кв.м. + расходные материалы в с/у);электроэнергия (/кв.м.);интернет / телефония;вывоз мусора (/кв.м.);парковка.

Читать полностью

    Реализация объекта недвижимости приостановлена

    Не нашли подходящего объявления?

    Оставьте заявку, и наши риэлторы подберут офис в районе Санкт-Петербурга

    (0)