306 360 Р 3 940 $ или 3 360

Информация о помещении и здании

4
Этаж
8
Этажность
Развернуть
Агент
+7 (911) 150-03-66
Начать чат с агентом

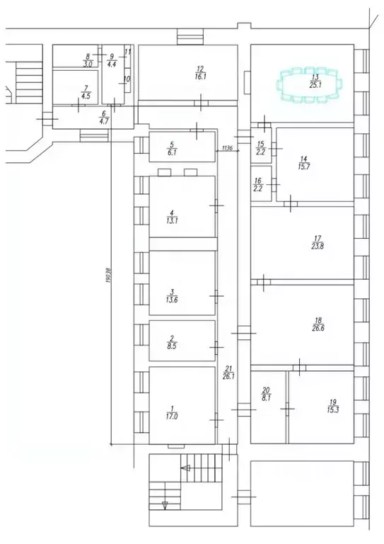
Офис (273.6 м)

Сдается от собственника офис 273.6 кв.м. Подписание договора аренды напрямую с владельцем помещения. Работаем без комиссии, процентов и надбавок. В арендную ставку включено: - НДС, - коммунальные услуги, включая электроэнергию, - эксплуат.расходы, - уборка общих мест. В арендную ставку не входит: уборка офиса, интернет. • условия договора: 11 месяцев, предоплата за последний месяц; • налогообложение: НДС; • вход в здание: для арендаторов по документу, для клиентов по документу; • интернет провайдеры: Обит, Северен телеком, Фотел; • парковка: на территории БЦ; • здание работает: 7...22; Показы в рабочее время. Поможем провести переговоры по условиям аренды, удовлетворив все стороны. Звоните. Мы оперативно организуем просмотр помещения в удобную для вас дату и ответим на все интересующие вопросы. Для вас наши услуги бесплатны, их оплачивает БЦ. Описание бизнес-центра: Расположение в историческом центре Санкт-Петербурга, близость Невского проспекта, популярных транспортных развязок и шаговая доступность до станции метро «Площадь Александра Невского являются основными преимуществами данного объекта. Комфорт передвижения внутри бизнес-центра обеспечивается за счет наличия пассажирских и грузовых лифтов. Условия аренды в бизнес-центре БЦ «Каскад , помимо офисных помещений, предлагает в аренду также складские площади.

Читать полностью
    Позвонить Написать
    306 360 Р3 940 $ или 3 360
    Агент
    +7 (911) 150-03-66
    Начать чат с агентом
    Похожие предложения
    Офис в Санкт-Петербург Мельничная ул., 18 (284 м) - Фото 1
    Офис в Санкт-Петербург Мельничная ул., 18 (284 м) - Фото 2
    4-й этаж, всего 8 этажей

    Предлагается в аренду 283.7 кв.м. Состояние отделки — готово к въезду.Договор аренды заключаете с собственником помещения. Без надбавки к итоговой стоимости аренды.В арендную ставку включено: - НДС,- коммунальные услуги, включая электроэнергию,- эксплуат.расходы,-...
    • 4/8 эт.
    314 375 Р
    Агент
    +7 (981) Показать номер
    Посмотреть контакты
    Офис в Санкт-Петербург Мельничная ул., 18 (272 м) - Фото 1
    Офис в Санкт-Петербург Мельничная ул., 18 (272 м) - Фото 2
    4-й этаж, всего 8 этажей

    Аренда офиса 272.3 кв.м.Договор аренды заключаете с собственником помещения. Без надбавки к итоговой стоимости аренды.В арендную ставку включено: - НДС,- коммунальные услуги, включая электроэнергию,- эксплуат.расходы,- уборка общих мест.В арендную ставку...
    • 4/8 эт.
    304 735 Р
    Агент
    +7 (981) Показать номер
    Посмотреть контакты
    Офис в Санкт-Петербург Мельничная ул., 18 (274 м) - Фото 1
    Офис в Санкт-Петербург Мельничная ул., 18 (274 м) - Фото 2
    4-й этаж, всего 8 этажей

    Сдается в прямую аренду офисный блок 273.6 кв.м.Договор аренды заключаете с собственником помещения. Без надбавки к итоговой стоимости аренды.В арендную ставку включено: - НДС,- коммунальные услуги, включая электроэнергию,- эксплуат.расходы,- уборка общих...
    • 4/8 эт.
    306 360 Р
    Агент
    +7 (981) Показать номер
    Посмотреть контакты
    Офис (272.3 м) - Фото 1
    Офис (272.3 м) - Фото 2
    4-й этаж, всего 8 этажей

    Сдается в прямую аренду офисный блок 272.3 кв.м. Подписание договора аренды напрямую с владельцем помещения. Работаем без комиссии, процентов и надбавок. В арендную ставку включено: - НДС, - коммунальные услуги, включая электроэнергию, - эксплуат.расходы,...
    • 4/8 эт.
    304 735 Р
    Агент
    +7 (911) Показать номер
    Посмотреть контакты
    Офис в Санкт-Петербург 4-я Васильевского острова линия, 35-37 (237 м) - Фото 1
    Офис в Санкт-Петербург 4-я Васильевского острова линия, 35-37 (237 м) - Фото 2
    2-й этаж, всего 2 этажа

    Сдаётся в аренду офис площадью 237 кв м, второй этаж двухэтажного здания.5 минут пешком до метро Василеостровская и 10 минут до Спортивной.Высокие потолки 4,2 м. Есть возможность бесплатной парковки во дворе.Без НДС.Арендная ставка: за кв.м. в месяц.
    • 2/2 эт.
    308 100 Р
    Агент
    +7 (911) Показать номер
    Посмотреть контакты

    Не нашли подходящего объявления?

    Оставьте заявку, и наши риэлторы подберут офис в районе Санкт-Петербурга

    (0)