12 475 100 Р 157 600 $ или 135 800

Информация о помещении и здании

3
Этаж
6
Этажность
Развернуть
Агент
+7 (981) 145-24-02
Начать чат с агентом

Офис в Санкт-Петербург Заусадебная ул., 25 (5671 м)

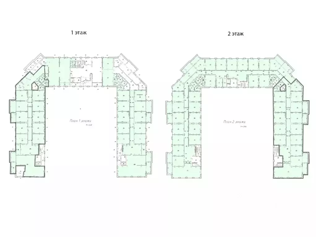
Офисное помещение 5 670.5 кв. м в бизнес-центре Сабир .Район: Приморский. Ближайшие станции метро: Старая Деревня. Характеристики:- Класс: B+; - Арендопригодная площадь: 16100; - Размер типового этажа: 2800; - Высота потолков: 2.1 м, 2.7 м, 3 м, 3.6 м; - Наличие лифта: Есть; - Кол-во мест наземного паркинга: 94; - Интернет-провайдеры: ЕТелеком (ЛенСпецСМУ). Арендная ставка:/кв. м в месяц. Финансовые условия: - Оплачивается отдельно: Телефония, Уборка, Интернет, Коммунальные услуги; - В стоимость включено: OPEX, НДС; - Налог: Включая НДС. Без комиссии и скрытых платежей для арендатора.Готовы оперативно организовать просмотр в удобное время, предоставить PDF-презентацию и план. Точное местоположение объекта можно найти по данным координатам: 59.988388,30.274186 ID = c_1783702

Читать полностью
    Позвонить Написать
    12 475 100 Р157 600 $ или 135 800
    Агент
    +7 (981) 145-24-02
    Начать чат с агентом
    Похожие предложения
    Офис в Санкт-Петербург Заусадебная ул., 25 (5150 м) - Фото 1
    Офис в Санкт-Петербург Заусадебная ул., 25 (5150 м) - Фото 2
    1-й этаж, всего 6 этажей

    Офисное помещение 5 149.9 кв. м в бизнес-центре Сабир .Район: Приморский. Ближайшие станции метро: Старая Деревня. Характеристики:- Класс: B+; - Арендопригодная площадь: 16100; - Размер типового этажа: 2800; - Высота потолков: 2.1 м, 2.7 м, 3 м, 3.6...
    • 1/6 эт.
    11 329 780 Р
    Агент
    +7 (981) Показать номер
    Посмотреть контакты
    Офис в Санкт-Петербург Садовая ул., 28-30К1 (722 м) - Фото 1
    Офис в Санкт-Петербург Садовая ул., 28-30К1 (722 м) - Фото 2
    2-й этаж, всего 4 этажа

    Код лота: 62C46C. Реализуется на торгах. Реализуется право аренды помещения свободного назначения, расположенного на Садовой улице, на территории Апраксина двора. Договор аренды заключается сроком на 3 (три) года для использования под нежилые цели. Помещение...
    • 2/4 эт.
    12 661 478 Р
    Агент
    +7 (989) Показать номер
    Посмотреть контакты
    Офис в Санкт-Петербург Внуковская ул., 2 (3344 м) - Фото 1
    Офис в Санкт-Петербург Внуковская ул., 2 (3344 м) - Фото 2
    7-й этаж, всего 14 этажей

    Офисное помещение 3 344.2 кв. м в бизнес-центре Пулково Скай . Объект скоро освободится. Успейте забронировать на выгодных условиях. Готовность ко въезду уточняется по запросу. Район: Московский. Ближайшие станции метро: Звёздная, Московская. Характеристики:-...
    • 7/14 эт.
    11 664 570 Р
    Агент
    +7 (981) Показать номер
    Посмотреть контакты
    Офис в Санкт-Петербург Внуковская ул., 2 (3178 м) - Фото 1
    Офис в Санкт-Петербург Внуковская ул., 2 (3178 м) - Фото 2
    2-й этаж, всего 14 этажей

    Офисное помещение 3 178.4 кв. м в бизнес-центре Пулково Скай . Объект скоро освободится. Успейте забронировать на выгодных условиях. Готовность ко въезду уточняется по запросу. Район: Московский. Ближайшие станции метро: Звёздная, Московская. Характеристики:-...
    • 2/14 эт.
    11 086 260 Р
    Агент
    +7 (981) Показать номер
    Посмотреть контакты
    Офис в Санкт-Петербург Внуковская ул., 2 (3154 м) - Фото 1
    Офис в Санкт-Петербург Внуковская ул., 2 (3154 м) - Фото 2
    1-й этаж, всего 14 этажей

    Офисное помещение 3 153.7 кв. м в бизнес-центре Пулково Скай . Объект скоро освободится. Успейте забронировать на выгодных условиях. Готовность ко въезду уточняется по запросу. Район: Московский. Ближайшие станции метро: Звёздная, Московская. Характеристики:-...
    • 1/14 эт.
    11 000 106 Р
    Агент
    +7 (981) Показать номер
    Посмотреть контакты

    Не нашли подходящего объявления?

    Оставьте заявку, и наши риэлторы подберут офис в районе Санкт-Петербурга

    (0)