4 140 000 Р 52 690 $ или 44 900

Информация о помещении и здании

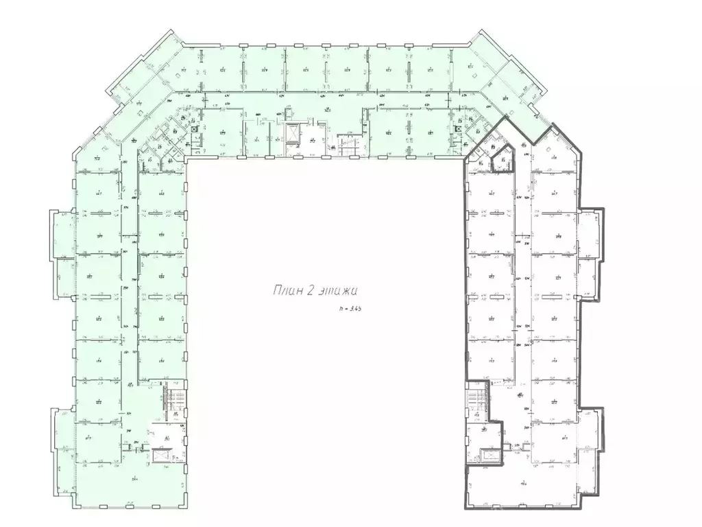
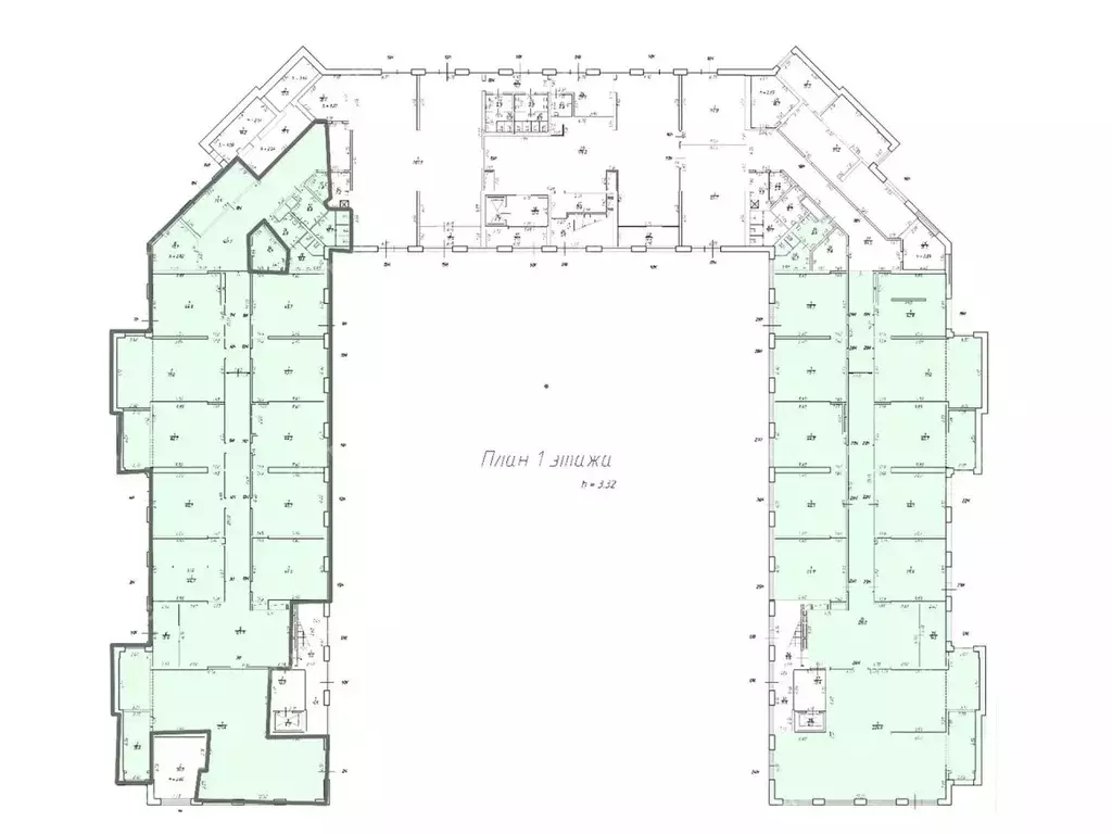
1
Этаж
3
Этажность
Развернуть
Агент
+7 (911) 252-68-19
Начать чат с агентом

Офис в Санкт-Петербург пер. Тучков, 10 (1800 м)

Топовая локация в сердце Васильевского острова Отдельно стоящее здание с кабинетной системой и готовым косметическим ремонтом.Возможна аренда этажа. Площадь этажа ориентировочно 800 кв.м.Здание имеет 2 отдельных входа (2 обособленные входные группы), что позволяет разделить здание на 2-х арендаторов. ст.м. Спортивная - 6 минут пешком.ст.м. Василеостровская - 11 минут пешком. 12 машиноместЗдание свободно, доступно к просмотруНомер объекта: 1/543928/20754

Читать полностью
    Позвонить Написать
    4 140 000 Р52 690 $ или 44 900
    Агент
    +7 (911) 252-68-19
    Начать чат с агентом
    Похожие предложения
    2-й этаж, всего 2 этажа

    Показ в удобное время. С АГЕНТАМИ РАБОТАЕМ. ПЛАТИМ ВОЗНАГРАЖДЕНИЕ. Грузовой терминал Руслан находится недалеко от метро-Купчино, Шушары, на главной транспортной магистрали России -Санкт-Петербург- Москва, являющейся частью международной трассы Скандинавия...
    • 2/2 эт.
    4 200 000 Р
    Агент
    +7 (933) Показать номер
    Посмотреть контакты
    Офис в Санкт-Петербург пл. Конституции, 1 (2840 м) - Фото 1
    4-й этаж, всего 8 этажей

    Показ в удобное время. С АГЕНТАМИ РАБОТАЕМ. ПЛАТИМ ВОЗНАГРАЖДЕНИЕ. Бизнес-центр Константа располагается в непосредственной близости от деловой части Санкт-Петербурга. Ближайшие станции метро Московская, Ленинский проспект, Парк Победы. Отличная транспортная...
    • 4/8 эт.
    4 042 267 Р
    Агент
    +7 (933) Показать номер
    Посмотреть контакты
    Офис в Санкт-Петербург Заусадебная ул., 25 (1861 м) - Фото 1
    Офис в Санкт-Петербург Заусадебная ул., 25 (1861 м) - Фото 2
    3-й этаж, всего 6 этажей

    Офисное помещение 1 860.8 кв. м в бизнес-центре Сабир .Район: Приморский. Ближайшие станции метро: Старая Деревня, Чёрная речка. Характеристики:- Класс: B+; - Размер типового этажа: 3000; - Арендопригодная площадь: 16100; - Высота потолков: 2.1 м, 2.7...
    • 3/6 эт.
    4 093 760 Р
    Агент
    +7 (981) Показать номер
    Посмотреть контакты
    Офис в Санкт-Петербург Заусадебная ул., 25 (1877 м) - Фото 1
    Офис в Санкт-Петербург Заусадебная ул., 25 (1877 м) - Фото 2
    2-й этаж, всего 6 этажей

    Офисное помещение 1 876.7 кв. м в бизнес-центре Сабир .Район: Приморский. Ближайшие станции метро: Старая Деревня, Чёрная речка. Характеристики:- Класс: B+; - Размер типового этажа: 3000; - Арендопригодная площадь: 16100; - Высота потолков: 2.1 м, 2.7...
    • 2/6 эт.
    4 128 740 Р
    Агент
    +7 (981) Показать номер
    Посмотреть контакты
    Офис в Санкт-Петербург Заусадебная ул., 25 (1888 м) - Фото 1
    Офис в Санкт-Петербург Заусадебная ул., 25 (1888 м) - Фото 2
    1-й этаж, всего 6 этажей

    Офисное помещение 1 887.6 кв. м в бизнес-центре Сабир .Район: Приморский. Ближайшие станции метро: Старая Деревня, Чёрная речка. Характеристики:- Класс: B+; - Размер типового этажа: 3000; - Арендопригодная площадь: 16100; - Высота потолков: 2.1 м, 2.7...
    • 1/6 эт.
    4 152 720 Р
    Агент
    +7 (981) Показать номер
    Посмотреть контакты

    Не нашли подходящего объявления?

    Оставьте заявку, и наши риэлторы подберут офис в районе Санкт-Петербурга

    (0)