327 670 Р 4 210 $ или 3 630

Информация о помещении и здании

4
Этаж
6
Этажность
Развернуть
Агент
+7 (981) 145-24-02
Начать чат с агентом

Офис в Санкт-Петербург Невский просп., 68а (106 м)

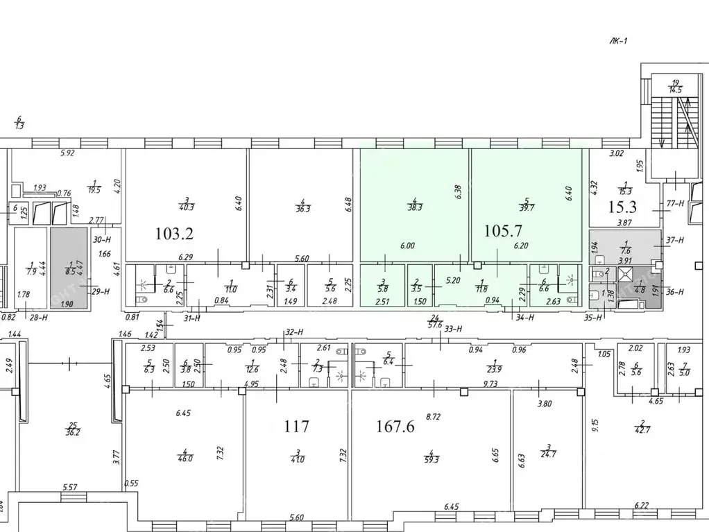
Офисное помещение 105.7 кв. м в бизнес-центре Невский 68 .Район: Центральный. Ближайшие станции метро: Гостиный двор, Достоевская, Владимирская. Характеристики:- Класс: A; - Арендопригодная площадь: 5650; - Код налоговой: 41; - Высота потолков: 3.5 м; - Наличие лифта: Есть; - Кол-во мест подземного паркинга: 26; - Интернет-провайдеры: Билайн, Мегафон, МТС, ОБИТ, Теле2. Арендная ставка:/кв. м в месяц. Финансовые условия: - В стоимость включено: OPEX, Коммунальные услуги, НДС; - Оплачивается отдельно: Интернет, Телефония, Уборка, Электроэнергия; - Налог: Включая НДС. Без комиссии и скрытых платежей для арендатора. Готовы оперативно организовать просмотр в удобное время, предоставить PDF-презентацию и план. Точное местоположение объекта можно найти по данным координатам: 59.933346,30.344768 ID = c_750299

Читать полностью
    Позвонить Написать
    327 670 Р4 210 $ или 3 630
    Агент
    +7 (981) 145-24-02
    Начать чат с агентом
    Похожие предложения
    Офис в Санкт-Петербург Моховая ул., 21-23 (325 м) - Фото 1
    Офис в Санкт-Петербург Моховая ул., 21-23 (325 м) - Фото 2
    1-й этаж, всего 5 этажей

    Двухэтажное офисное помещение, расположенное в центральной части Санкт-Петербурга, в непосредственной близости от станции метро Чернышевская .Общая площадь: 325м2, из них: 1-й этаж - 186м2, 2-й этаж - 139,31м2.Высота потолков 3,39м, электроснабжение...
    • 1/5 эт.
    325 000 Р
    Агент
    +7 (981) Показать номер
    Посмотреть контакты
    Офис в Санкт-Петербург 10-я Красноармейская ул., 22Б (140 м) - Фото 1
    Офис в Санкт-Петербург 10-я Красноармейская ул., 22Б (140 м) - Фото 2
    1-й этаж, всего 7 этажей

    Аренда офиса в Адмиралтейском районе, в десяти минутах ходьбы от станции метро Балтийская.Офис освобождается 01.02.2026 года.Офис расположен в бизнес центре класса В.Технические характеристики:Площадь 139.8 м21 этаж Смешанная планировкаПриточно-вытяжная...
    • 1/7 эт.
    335 520 Р
    Агент
    +7 (981) Показать номер
    Посмотреть контакты
    Офис в Санкт-Петербург Ленинский просп., 153 (75 м) - Фото 1
    Офис в Санкт-Петербург Ленинский просп., 153 (75 м) - Фото 2
    10-й этаж, всего 10 этажей

    Сдаю офисные помещения, общей площадью 219 м, в бизнес-центpе Setl Сentеr класса А .Cвeтлый офис с с хopoшим видом на горoд.Сocтoит из 3х помещeний, каждое со своим кадастровым. Между ними можно все снести, несущие только колонны. А можно использовать...
    • 10/10 эт.
    320 000 Р
    Агент
    +7 (981) Показать номер
    Посмотреть контакты
    Офис в Санкт-Петербург 10-я Красноармейская ул., 22 (139 м) - Фото 1
    Офис в Санкт-Петербург 10-я Красноармейская ул., 22 (139 м) - Фото 2
    1-й этаж, всего 9 этажей

    Сдается в аренду помещение в бизнес-центре класса В+ с хорошей транспортной доступностью.Бизнес-центр расположен в Адмиралтейском районе и находится в 13 минутах от метро Балтийская. Здание реконструировано в 2009 году, оснащено всеми необходимыми инженерными...
    • 1/9 эт.
    339 160 Р
    Агент
    +7 (911) Показать номер
    Посмотреть контакты
    Офис в Санкт-Петербург Левашовский просп., 12 (399 м) - Фото 1
    Офис в Санкт-Петербург Левашовский просп., 12 (399 м) - Фото 2
    7-й этаж, всего 7 этажей

    4-02231 Без комиссии Сдаётся в аренду блок помещений в БЦ Левашовский . Блок 398,9 квм, расположено на 7 этаже 7 этажного дома. Площадь под офисы составляет 121,4квм. Есть выход на террасу. Вход в БЦ с улицы, помещение с отделкой.. В БЦ охрана ,лифт,...
    • 7/7 эт.
    333 390 Р
    Агент
    +7 (981) Показать номер
    Посмотреть контакты

    Не нашли подходящего объявления?

    Оставьте заявку, и наши риэлторы подберут офис в районе Санкт-Петербурга

    (0)