994 788 Р 12 780 $ или 10 990

Информация о помещении и здании

3
Этаж
4
Этажность
Развернуть
Агент
+7 (933) 786-94-18
Начать чат с агентом

Офис в Санкт-Петербург Конногвардейский пер., 4 (302 м)

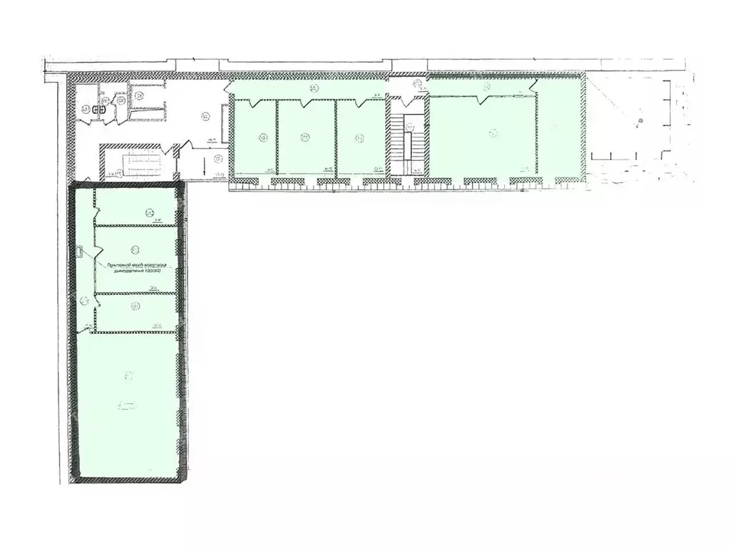
Показ в удобное время. С АГЕНТАМИ РАБОТАЕМ. ПЛАТИМ ВОЗНАГРАЖДЕНИЕ. Офисный особняк Ново-Исаакиевский расположен в Адмиралтейском районе в исторической части города, рядом Исаакиевский собор и гостиница Астория. В пешей доступности станция метро Адмиралтейская. Налоговая: 07. Лифты: Нет. Вентиляция: Приточно-вытяжная. Кондиционирование: Центральное. Безопасность: Круглосуточная охрана, Система пожаротушений, Видеонаблюдение. Парковка: Наземная. Описание помещения: Трехэтажный офисный блок, расположен на 2, 3 и 4 этаже. Стандартная качественная отделка. Функциональная планировка, есть кухня, санузел, серверная и гардеробная. Планировка: смешанная. Офисная отделка. Лофт. Тип налогообложения: С НДС. Лот

Читать полностью
    Позвонить Написать
    994 788 Р12 780 $ или 10 990
    Агент
    +7 (933) 786-94-18
    Начать чат с агентом
    Похожие предложения
    Офис в Санкт-Петербург ул. Чайковского, 29 (393 м) - Фото 1
    Офис в Санкт-Петербург ул. Чайковского, 29 (393 м) - Фото 2
    4-й этаж, всего 5 этажей

    Офисное помещение 392.6 кв. м в бизнес-центре Чайковского 29 .Район: Центральный. Ближайшие станции метро: Чернышевская. Характеристики:- Класс: B+; - Арендопригодная площадь: 4112; - Код налоговой: 41; - Кол-во мест наземного паркинга: 25; - Интернет-провайдеры:...
    • 4/5 эт.
    981 500 Р
    Агент
    +7 (981) Показать номер
    Посмотреть контакты
    Офис в Санкт-Петербург Стартовая ул., 8 (363 м) - Фото 1
    Офис в Санкт-Петербург Стартовая ул., 8 (363 м) - Фото 2
    8-й этаж, всего 8 этажей

    Офисное помещение 363.3 кв. м в бизнес-центре Аэроплаза .Район: Московский. Ближайшие станции метро: Звёздная. Характеристики:- Класс: A; - Арендопригодная площадь: 21500; - Код налоговой: 10; - Размер типового этажа: 3200; - Развозка: Утро/вечер; -...
    • 8/8 эт.
    995 442 Р
    Агент
    +7 (981) Показать номер
    Посмотреть контакты
    Офис в Санкт-Петербург Воронежская ул., 5к3 (588 м) - Фото 1
    Офис в Санкт-Петербург Воронежская ул., 5к3 (588 м) - Фото 2
    1-й этаж, всего 5 этажей

    Аренда офиса в Центральном районе, в пешей доступности до двух станций метро.Офис расположен в бизнес центре класса В.Технические характеристики:Площадь 588 м21 этажАренда:м2-Смешанная планировкаКондиционированиеПриточно-вытяжная вентиляцияПропускная...
    • 1/5 эт.
    999 600 Р
    Агент
    +7 (981) Показать номер
    Посмотреть контакты
    Офис в Санкт-Петербург ул. Бабушкина, 3 (1033 м) - Фото 1
    Офис в Санкт-Петербург ул. Бабушкина, 3 (1033 м) - Фото 2
    3-й этаж, всего 7 этажей

    Сдается под офис блок 1032.7 кв.м недалеко от метро. Требуется небольшой косметический ремонт.Подписание договора аренды напрямую с владельцем помещения. Работаем без комиссии, процентов и надбавок.В арендную ставку включено: - НДС,- коммунальные услуги,...
    • 3/7 эт.
    999 460 Р
    Агент
    +7 (981) Показать номер
    Посмотреть контакты
    Офис в Санкт-Петербург Рижская ул., 5к1 (492 м) - Фото 1
    Офис в Санкт-Петербург Рижская ул., 5к1 (492 м) - Фото 2
    1-й этаж, всего 4 этажа

    Описание Бизнес-центра: БЦ Рижская 5 обладает прекрасной доступностью, в незначительном отдалении есть еще две станции метрополитена: Ладожская ; Площадь А. Невского . Транспорт может проехать по улице Таллиннская, которая связана со Среднеохтинским...
    • 1/4 эт.
    983 200 Р
    Агент
    +7 (911) Показать номер
    Посмотреть контакты

    Не нашли подходящего объявления?

    Оставьте заявку, и наши риэлторы подберут офис в районе Санкт-Петербурга

    (0)