1 545 031 Р 19 520 $ или 16 820

Информация о помещении и здании

6
Этаж
8
Этажность
Развернуть
Агент
+7 (981) 145-24-02
Начать чат с агентом

Офис в Санкт-Петербург Выборгская наб., 55к3 (463 м)

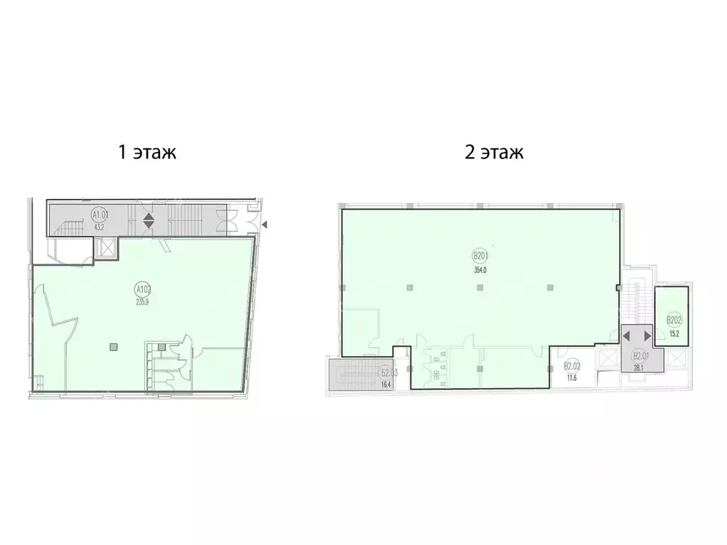
Офисное помещение 463 кв. м в бизнес-центре Gregory s Palace.Район: Выборгский. Ближайшие станции метро: Лесная. Характеристики:- Класс: A; - Арендопригодная площадь: 11797.75; - Код налоговой: 02; - Высота потолков: 3.4 м; - Кол-во мест наземного паркинга: 110; - Интернет-провайдеры: Авантел, ДАРС-Телеком, Мегафон, МТС, Оптик Телеком. Арендная ставка: 3 336./кв. м в месяц. Финансовые условия: - В стоимость включено: Уборка, OPEX, Коммунальные услуги; - Оплачивается отдельно: Интернет, Телефония; - Налог: УСН (НДС 5 ). Без комиссии и скрытых платежей для арендатора.Готовы оперативно организовать просмотр в удобное время, предоставить PDF-презентацию и план. Точное местоположение объекта можно найти по данным координатам: 59.977322,30.328889 ID = c_1785303

Читать полностью
    Позвонить Написать
    1 545 031 Р19 520 $ или 16 820
    Агент
    +7 (981) 145-24-02
    Начать чат с агентом
    Похожие предложения
    Офис в Санкт-Петербург Выборгская наб., 55к3 (459 м) - Фото 1
    Офис в Санкт-Петербург Выборгская наб., 55к3 (459 м) - Фото 2
    6-й этаж, всего 8 этажей

    Сдаются в аренду помещения в бизнес-центре класса А с хорошей транспортной доступностью. Отличное решение для представительского офиса.Бизнес-центр расположен в Выборгском районе и находится в 18 минутах от метро Лесная. Здание построено в 2005 году,...
    • 6/8 эт.
    1 444 932 Р
    Агент
    +7 (911) Показать номер
    Посмотреть контакты
    Офис в Санкт-Петербург Выборгская наб., 55к3 (381 м) - Фото 1
    7-й этаж, всего 8 этажей

    ПЛАТИМ АГЕНТАМ. Поможем с планом рассадки, ремонтом, мебелью. Бизнес-центр расположен на живописной Выборгской набережной. До здания удобно добираться через Кантемировский и Гренадерский мосты с Петроградской стороны, а также со стороны Литейного моста...
    • 7/8 эт.
    1 451 800 Р
    Агент
    +7 (933) Показать номер
    Посмотреть контакты
    Офис в Санкт-Петербург наб. Реки Мойки, 60В (1080 м) - Фото 1
    Офис в Санкт-Петербург наб. Реки Мойки, 60В (1080 м) - Фото 2
    1-й этаж, всего 3 этажа

    К аренде предлагается отдельно стоящее здание целиком Удобная локация Если вас заинтересовал предлагаемый объект или вы готовы назначить просмотр позвоните или напишите нам- Удобная транспортная доступность - 6 минут от ст. метро Адмиралтейская , ...
    • 1/3 эт.
    1 404 000 Р
    Агент
    +7 (911) Показать номер
    Посмотреть контакты
    Офис в Санкт-Петербург Коломяжский просп., 10Д (528 м) - Фото 1
    Офис в Санкт-Петербург Коломяжский просп., 10Д (528 м) - Фото 2
    2-й этаж, всего 3 этажа

    Предлагаем в аренду помещения в бизнес-центре Мост от собственника объекта.Адрес: Санкт-Петербург, Коломяжский пр-кт, 10Д.Транспортная инфраструктура:• Объект располагается в шаговой доступности от ст. м. Пионерская .Характеристики помещения:• Планировка:...
    • 2/3 эт.
    1 425 600 Р
    Агент
    +7 (981) Показать номер
    Посмотреть контакты
    Офис в Санкт-Петербург пос. Парголово, Горское ш., 4Ж (1292 м) - Фото 1
    Офис в Санкт-Петербург пос. Парголово, Горское ш., 4Ж (1292 м) - Фото 2
    1-й этаж, всего 4 этажа

    РАБОТАЕМ С АГЕНТАМИ. ПЛАТИМ ВОЗНАГРАЖДЕНИЕ. Здание расположено на территории комплекса Осиновая Роща в Выборгском районе с удобным выездом на КАД и Горское шоссе.Налоговая: 17. Лифты: Нет. Вентиляция: . Кондиционирование: . Безопасность: Контроль доступа,...
    • 1/4 эт.
    1 576 240 Р
    Агент
    +7 (933) Показать номер
    Посмотреть контакты

    Не нашли подходящего объявления?

    Оставьте заявку, и наши риэлторы подберут офис в районе Санкт-Петербурга

    (0)