501 020 Р 6 380 $ или 5 400

Информация о помещении и здании

1
Этаж
3
Этажность
Развернуть
Агент
+7 (933) 786-94-18
Начать чат с агентом

Офис в Санкт-Петербург, Санкт-Петербург, Сестрорецк дор. Таможенная, ...

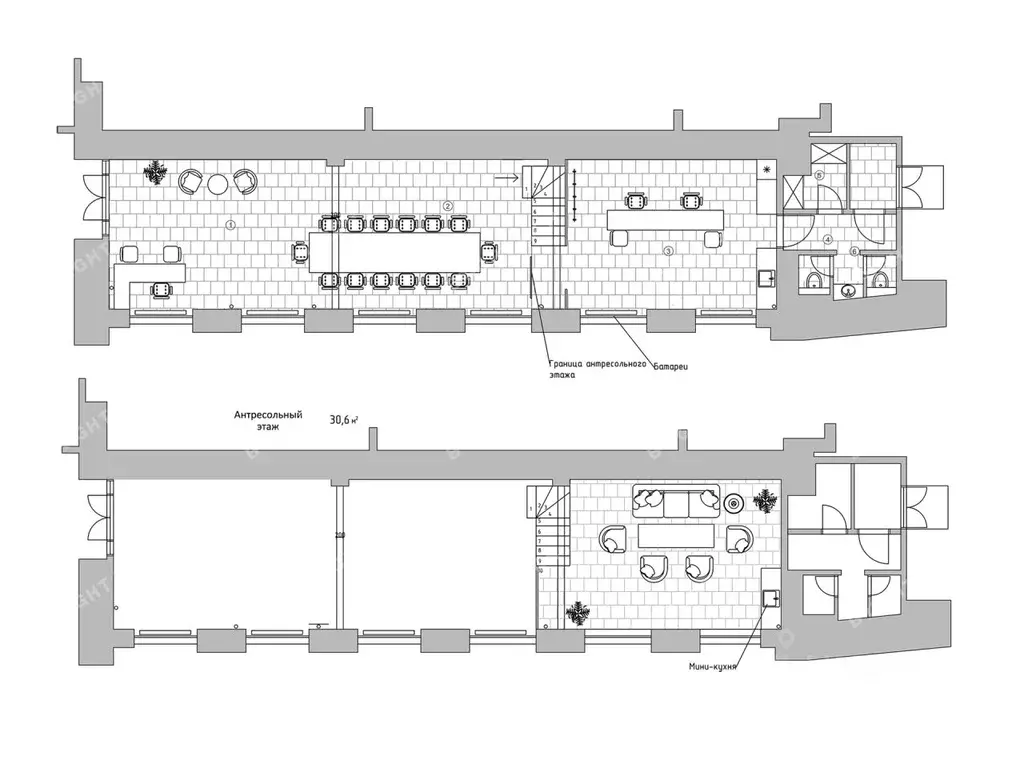
Показ в удобное время. С АГЕНТАМИ РАБОТАЕМ И ПЛАТИМ.Два отдельно стоящих здания общей площадью 2577 масположены в Курортном районе Санкт-Петербурга, в микрорайоне Сестрорецк на территории ЖК Светлый мир Внутри. Объекты находится на берегу Финского залива, в непосредственной близости от Приморского шоссе.Налоговая: 26. Лифты: Нет. Вентиляция: Приточно-вытяжная. Кондиционирование: Сплит-системы. Безопасность: Круглосуточный доступ, Контроль доступа, Система пожаротушений, Видеонаблюдение. Парковка: Наземная. Описание помещения: Отдельно стоящее трехэтажное здание. Витринное остекление, помещения имеют смешанную планировку и дизайнерскую отделку. Зонированная планировка- зона ресепшн, кафе-коворкинг, кинозал, детская комната, мастерская, спортивный зал.Планировка: . Дизайнерский ремонт. Мебель. Высота потолка: 3м. Тип налогообложения: С НДС. Лот

Читать полностью
    Позвонить Написать
    501 020 Р6 380 $ или 5 400
    Агент
    +7 (933) 786-94-18
    Начать чат с агентом
    Похожие предложения
    Офис в Санкт-Петербург Малая Конюшенная ул., 1-3 (144 м) - Фото 1
    Офис в Санкт-Петербург Малая Конюшенная ул., 1-3 (144 м) - Фото 2
    3-й этаж, всего 5 этажей

    Офисное помещение 144.2 кв. м в бизнес-центре Sweden House. Объект скоро освободится. Успейте забронировать на выгодных условиях. Готовность ко въезду уточняется по запросу. Район: Центральный. Ближайшие станции метро: Гостиный двор, Невский проспект,...
    • 3/5 эт.
    490 280 Р
    Агент
    +7 (981) Показать номер
    Посмотреть контакты
    Офис в Санкт-Петербург Большая Морская ул., 3-5 (135 м) - Фото 1
    Офис в Санкт-Петербург Большая Морская ул., 3-5 (135 м) - Фото 2
    1-й этаж, всего 6 этажей

    Офисное помещение 135 кв. м в бизнес-центре Лидваль .Район: Центральный. Ближайшие станции метро: Адмиралтейская, Гостиный двор, Невский проспект. Характеристики:- Класс: B; - Код налоговой: 41; - Размер типового этажа: 1500; - Арендопригодная площадь:...
    • 1/6 эт.
    496 125 Р
    Агент
    +7 (981) Показать номер
    Посмотреть контакты
    Офис в Санкт-Петербург Выборгская наб., 55к3 (159 м) - Фото 1
    Офис в Санкт-Петербург Выборгская наб., 55к3 (159 м) - Фото 2
    6-й этаж, всего 8 этажей

    Офисное помещение 159 кв. м в бизнес-центре Gregory s Palace.Район: Выборгский. Ближайшие станции метро: Лесная. Характеристики:- Класс: A; - Код налоговой: 02; - Арендопригодная площадь: 11797.75; - Высота потолков: 3.4 м; - Кол-во мест наземного паркинга:...
    • 6/8 эт.
    500 055 Р
    Агент
    +7 (981) Показать номер
    Посмотреть контакты
    Офис в Санкт-Петербург Невский просп., 68а (148 м) - Фото 1
    Офис в Санкт-Петербург Невский просп., 68а (148 м) - Фото 2
    5-й этаж, всего 6 этажей

    Офисное помещение 148 кв. м в бизнес-центре Невский 68 . Объект скоро освободится. Успейте забронировать на выгодных условиях. Готовность ко въезду уточняется по запросу. Район: Центральный. Ближайшие станции метро: Гостиный двор, Достоевская, Владимирская....
    • 5/6 эт.
    503 200 Р
    Агент
    +7 (981) Показать номер
    Посмотреть контакты
    Офис в Санкт-Петербург Невский просп., 25 (167 м) - Фото 1
    Офис в Санкт-Петербург Невский просп., 25 (167 м) - Фото 2
    4-й этаж, всего 5 этажей

    Офисное помещение 167.1 кв. м в бизнес-центре Атриум .Район: Центральный. Ближайшие станции метро: Невский проспект, Гостиный двор, Адмиралтейская. Характеристики:- Класс: A; - Код налоговой: 40; - Размер типового этажа: 1000; - Арендопригодная площадь:...
    • 4/5 эт.
    501 300 Р
    Агент
    +7 (981) Показать номер
    Посмотреть контакты

    Не нашли подходящего объявления?

    Оставьте заявку, и наши риэлторы подберут офис в районе Санкт-Петербурга

    (0)