1 680 000 Р 21 170 $ или 18 080

Информация о помещении и здании

8
Этаж
8
Этажность
Развернуть
Агент
+7 (981) 786-93-57
Начать чат с агентом

Офис в Санкт-Петербург Звездная ул., 1 (1260 м)

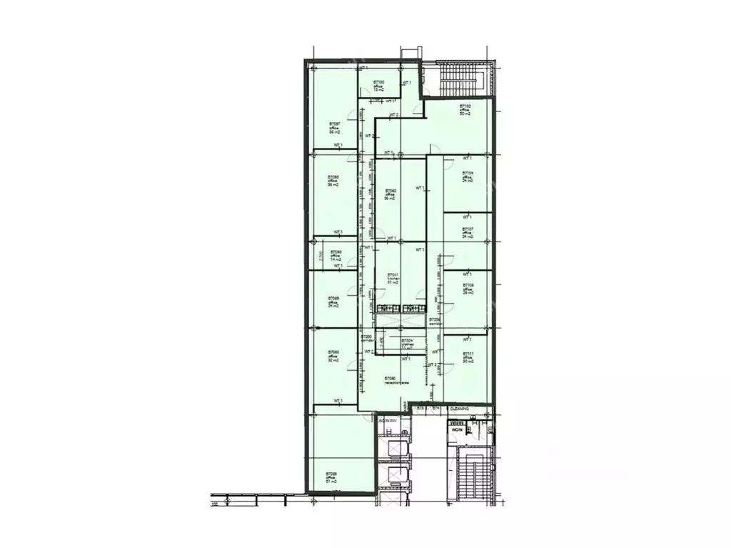
4-02249 Без комиссии Сдается в субаренду эксклюзивный офис класса В - просторное и светлое офисное помещение в Бизнес-центре Континент , расположенном в Московском районе в 2-х минутах от ст. метро Звездная.Помещение освобождается по договоренности в кратчайшие сроки. Характеристики:•Площадь: 1260 м•Пропускная система •Планировка: частично кабинетная, частично open space•Этаж: 8-й, панорамное остекление, обилие естественного света•Состояние: офисный ремонт, помещение готово к въезду•Мебель: в наличии•Кухня: полностью оборудованная (холодильник, микроволновка, обеденная зона)•Санузлы: два отдельных блока санузлов, кол-во кабинок шесть штук•Вход: отдельный вход из лифтового холлаО бизнес-центре:•Современный бизнес-центр с развитой инфраструктурой•Охрана и видеонаблюдение•Крытый паркинг (платный)•На 1-4 этажах расположен торговый центрТранспортная доступность:•2 минуты пешком до станции метро Звёздная •Удобный выезд на КАД и в аэропорт Пулково•Остановки общественного транспорта рядомИтака. Работаем с 1993 года.

Читать полностью
    Позвонить Написать
    1 680 000 Р21 170 $ или 18 080
    Агент
    +7 (981) 786-93-57
    Начать чат с агентом
    Похожие предложения
    Офис в Санкт-Петербург Стартовая ул., 6Б (450 м) - Фото 1
    Офис в Санкт-Петербург Стартовая ул., 6Б (450 м) - Фото 2
    6-й этаж, всего 13 этажей

    К сдаче в аренду предлагается офисный блок, площадью 450 м2, занимает часть шестого этажа Бизнес-Центра класса А+. Коридорно-кабинетная планировка состоит из 13 комнат различной площади, блок санузлов. Во всех помещениях произведена чистовая отделка,...
    • 6/13 эт.
    1 744 200 Р
    Агент
    +7 (911) Показать номер
    Посмотреть контакты
    Офис в Санкт-Петербург Пулковское ш., 40к4 (644 м) - Фото 1
    Офис в Санкт-Петербург Пулковское ш., 40к4 (644 м) - Фото 2
    7-й этаж, всего 8 этажей

    Офисное помещение 644 кв. м в бизнес-центре NOBIUS от собственника.Район: Московский. Ближайшие станции метро: Звёздная. Характеристики:- Класс: A; - Развозка: Шаттл; - Арендопригодная площадь: 36800; - Код налоговой: 10; - Размер типового этажа: 2190;...
    • 7/8 эт.
    1 661 520 Р
    Агент
    +7 (981) Показать номер
    Посмотреть контакты
    Офис в Санкт-Петербург Стартовая ул., 6Б (450 м) - Фото 1
    Офис в Санкт-Петербург Стартовая ул., 6Б (450 м) - Фото 2
    6-й этаж, всего 13 этажей

    Офисное помещение 450 кв. м в бизнес-центре Цеппелин от собственника.Район: Московский. Ближайшие станции метро: Звёздная. Характеристики:- Класс: A; - Глубина этажа: 10; - Развозка: Утро/вечер; - Арендопригодная площадь: 14495; - Код налоговой: 10;...
    • 6/13 эт.
    1 744 200 Р
    Агент
    +7 (981) Показать номер
    Посмотреть контакты
    Офис в Санкт-Петербург Пулковское ш., 40к4 (644 м) - Фото 1
    Офис в Санкт-Петербург Пулковское ш., 40к4 (644 м) - Фото 2
    7-й этаж, всего 8 этажей

    Бизнес-центр Нобиус - это новое и современное здание которое предлагает полный спектр высококлассных услуг, техническое совершенство постройки и систем жизнеобеспечения.Налоговая: 23. Лифты: Есть. Вентиляция: Приточно-вытяжная. Кондиционирование: Центральное....
    • 7/8 эт.
    1 661 520 Р
    Агент
    +7 (933) Показать номер
    Посмотреть контакты
    Офис в Санкт-Петербург Пулковское ш., 40к4 (644 м) - Фото 1
    7-й этаж, всего 8 этажей

    Бизнес-центр Нобиус - это новое и современное здание которое предлагает полный спектр высококлассных услуг, техническое совершенство постройки и систем жизнеобеспечения.Налоговая: 23. Лифты: Есть. Вентиляция: Приточно-вытяжная. Кондиционирование: Центральное....
    • 7/8 эт.
    1 661 520 Р
    Агент
    +7 (981) Показать номер
    Посмотреть контакты

    Не нашли подходящего объявления?

    Оставьте заявку, и наши риэлторы подберут офис в районе Санкт-Петербурга

    (0)