565 460 Р 7 130 $ или 6 080

Информация о помещении и здании

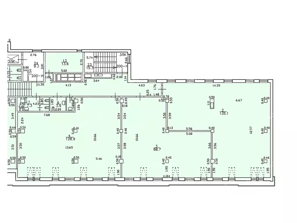
1
Этаж
2
Этажность
Развернуть
Агент
+7 (981) 250-98-22
Начать чат с агентом

Офис в Санкт-Петербург ул. Салова, 45 (490 м)

Сдается в прямую аренду офисный блок 490 кв.м недалеко от метро. Состояние отделки — готово к въезду.Договор аренды заключаете с собственником помещения. Без надбавки к итоговой стоимости аренды.В арендную ставку не входит: НДС, коммунальные услуги, электроэнергия, эксплуат.расходы, уборка офиса, уборка общих мест.• планировка в офисе: кабинетная;• в офисе имеется: мокрая точка;• кондиционер: нет;• вентиляция: есть;• сан. узел в офисе: есть;• условия договора: Оплата 1-го и двух последних месяцев, минимум на 11 мес;• налогообложение: НДС;• вход в здание: для арендаторов по документу, для клиентов по документу;• интернет провайдеры: Чайка Телеком;• парковка: на территории БЦ;• здание работает: круглосуточно;Показы в рабочее время.Получите подробную информацию об офисе. Отправим ее на почту или по Whatsapp.Звоните. Мы оперативно организуем просмотр помещения в удобную для вас дату и ответим на все интересующие вопросы.Для вас наши услуги абсолютно бесплатны — их оплачивают бизнес-центры.Описание бизнес-центра:Деловой центр Саловаасположен в части Фрунзенского района, где сконцентрированы промышленные предприятия и офисно-складские комплексы. Территория круглосуточно охраняется. Собственник готов предоставить арендные каникулы на въезд и косметический ремонт.

Читать полностью
    Позвонить Написать
    565 460 Р7 130 $ или 6 080
    Агент
    +7 (981) 250-98-22
    Начать чат с агентом
    Похожие предложения
    Офис в Санкт-Петербург ул. Чайковского, 29 (226 м) - Фото 1
    Офис в Санкт-Петербург ул. Чайковского, 29 (226 м) - Фото 2
    4-й этаж, всего 5 этажей

    К сдаче в аренду предлагается офисный блок, площадью 226,4 м2, расположен на четвертом этаже здания. Смешанная планировка из 10 комнат различной площади, включая блок санузлов. Во всех помещениях произведена качественная отделка, установлено современное...
    • 4/5 эт.
    566 000 Р
    Агент
    +7 (911) Показать номер
    Посмотреть контакты
    Офис в Санкт-Петербург Московский просп., 28 (461 м) - Фото 1
    Офис в Санкт-Петербург Московский просп., 28 (461 м) - Фото 2
    1-й этаж, всего 4 этажа

    Аренда офисного блока во Фрунзенском районе. Общая площадь помещений - 481.6 кв. м. Блок включает несколько кабинетов. Оснащение: система кондиционирования, пожарная сигнализация, отопление, освещение, выделенная электроэнергия. Собственный санузел. Инфраструктура:...
    • 1/4 эт.
    576 164 Р
    Агент
    +7 (981) Показать номер
    Посмотреть контакты
    Офис в Санкт-Петербург наб. Обводного Канала, 118бБ (600 м) - Фото 1
    цокольный этаж, всего 5 этажей

    Сдается в аренду помещение в бизнес-центре в непосредственной близости от метро.Бизнес-центр расположен в Адмиралтейском районе и находится в 6 минутах от метро Балтийская. Здание построено в 1864 году, оснащено всеми необходимыми инженерными системами.Адрес:...
    • -1/5 эт.
    570 000 Р
    Агент
    +7 (911) Показать номер
    Посмотреть контакты
    Офис в Санкт-Петербург ул. Большая Зеленина, 24 (330 м) - Фото 1
    Офис в Санкт-Петербург ул. Большая Зеленина, 24 (330 м) - Фото 2
    7-й этаж, всего 8 этажей

    Офисное помещение 330 кв. м в бизнес-центре МФК Grani от собственника.Район: Петроградский. Ближайшие станции метро: Чкаловская, Петроградская. Характеристики:- Класс: B+; - Реконструкция: Да; - Арендопригодная площадь: 13000; - Код налоговой: 13; -...
    • 7/8 эт.
    561 000 Р
    Агент
    +7 (981) Показать номер
    Посмотреть контакты
    Офис в Санкт-Петербург Стартовая ул., 8 (197 м) - Фото 1
    Офис в Санкт-Петербург Стартовая ул., 8 (197 м) - Фото 2
    2-й этаж, всего 8 этажей

    Офисное помещение 197 кв. м в бизнес-центре Аэроплаза от собственника.Район: Московский. Ближайшие станции метро: Звёздная. Характеристики:- Класс: A; - Развозка: Утро/вечер; - Глубина этажа: 20; - Арендопригодная площадь: 21500; - Код налоговой: 10;...
    • 2/8 эт.
    563 420 Р
    Агент
    +7 (981) Показать номер
    Посмотреть контакты

    Не нашли подходящего объявления?

    Оставьте заявку, и наши риэлторы подберут офис в районе Санкт-Петербурга

    (0)