488 712 Р 6 250 $ или 5 310

Информация о помещении и здании

4
Этаж
4
Этажность
Развернуть
Агент
+7 (933) 786-94-18
Начать чат с агентом

Офис в Санкт-Петербург просп. Лахтинский, 85к2 (253 м)

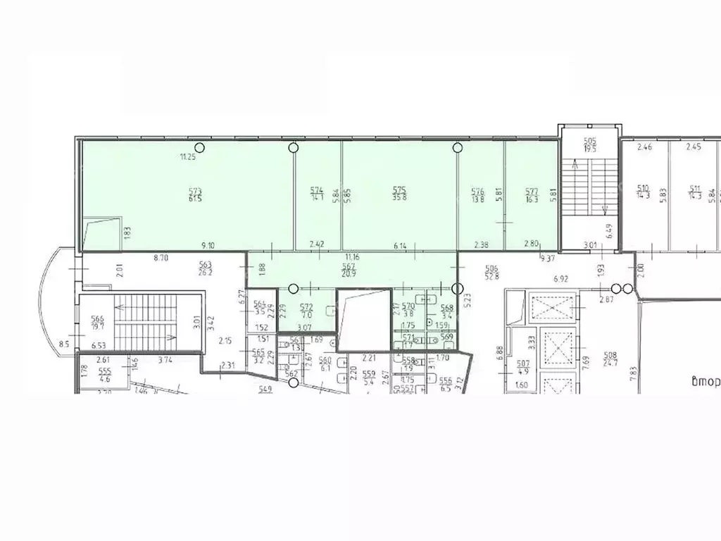
Деловой квартал уникального формата Business Box. Расположен в самом живописном районе Приморском, рядом с доминантой деловой активности Санкт- Петербурга Лахта- центр. Ближайшая станция метро Беговая.Налоговая: 26. Лифты: Есть. Вентиляция: Приточно-вытяжная. Кондиционирование: Центральное. Безопасность: Круглосуточный доступ, Контроль доступа, Система пожаротушений, Видеонаблюдение. Парковка: Подземная, Наземная. Описание помещения: 1 этаж- 100 м2, 4 этаж- 153 м2. В офисах стандартная отделка, стены - обои под покраску, пол - ковролин, керамогранит, потолок подвесной типа Армстронг, система кондиционирования, санузел на этаже.Планировка: открытая. Офисная отделка. Высокие потолки. Тип налогообложения: С НДС. Лот

Читать полностью
    Позвонить Написать
    488 712 Р6 250 $ или 5 310
    Агент
    +7 (933) 786-94-18
    Начать чат с агентом
    Похожие предложения
    6-й этаж, всего 8 этажей

    Бизнес-центр расположен на живописной Выборгской набережной. До здания удобно добираться через Кантемировский и Гренадерский мосты с Петроградской стороны, а также со стороны Литейного моста по Пироговской набережной.Налоговая: 17. Лифты: Есть. Вентиляция:...
    • 6/8 эт.
    500 000 Р
    Агент
    +7 (933) Показать номер
    Посмотреть контакты
    3-й этаж, всего 7 этажей

    Бизнес-центр Невский расположен в Невском районе на Бабушкина 3 в 3-х минутах ходьбы от станций метро Елизаровская.Налоговая: 24. Лифты: Есть. Вентиляция: Приточно-вытяжная. Кондиционирование: Центральное. Безопасность: Круглосуточная охрана, Контроль...
    • 3/7 эт.
    489 017 Р
    Агент
    +7 (933) Показать номер
    Посмотреть контакты
    Офис в Санкт-Петербург Приморский просп., 54к1 (180 м) - Фото 1
    Офис в Санкт-Петербург Приморский просп., 54к1 (180 м) - Фото 2
    8-й этаж, всего 9 этажей

    Офисное помещение 180 кв. м в бизнес-центре Примиум .Район: Приморский. Ближайшие станции метро: Беговая, Старая Деревня. Характеристики:- Класс: A; - Арендопригодная площадь: 14762.88; - Код налоговой: 14; - Наличие лифта: Есть; - Кол-во мест подземного...
    • 8/9 эт.
    486 000 Р
    Агент
    +7 (981) Показать номер
    Посмотреть контакты
    Офис в Санкт-Петербург Большая Морская ул., 3-5 (135 м) - Фото 1
    Офис в Санкт-Петербург Большая Морская ул., 3-5 (135 м) - Фото 2
    1-й этаж, всего 7 этажей

    Вниманию арендаторов предлагается помещение 135 м2, расположенное на первом этаже. Два уровня: 1 - 104 кв.м. и антресольный этаж - 31 кв.м. Собственный с/у, мини- кухня. Дизайнерская отделка. В хорошем состоянии. Планировка open space. Здание БЦ располагается...
    • 1/7 эт.
    496 125 Р
    Агент
    +7 (911) Показать номер
    Посмотреть контакты
    Офис в Санкт-Петербург Думская ул., 4 (242 м) - Фото 1
    Офис в Санкт-Петербург Думская ул., 4 (242 м) - Фото 2
    2-й этаж, всего 3 этажа

    Просторное пространство для деловых мероприятий в центре Санкт-Петербурга. Удобное расположение в двух минутах ходьбы от станции метро Невский Проспект делает это пространство максимально доступным для ваших гостей. Помещение находится на втором этаже...
    • 2/3 эт.
    484 358 Р
    Агент
    +7 (981) Показать номер
    Посмотреть контакты

    Не нашли подходящего объявления?

    Оставьте заявку, и наши риэлторы подберут офис в районе Санкт-Петербурга

    (0)