509 655 Р 6 440 $ или 5 550

Информация о помещении и здании

4
Этаж
5
Этажность
Развернуть
Агент
+7 (981) 145-24-02
Начать чат с агентом

Офис в Санкт-Петербург Невский просп., 25 (167 м)

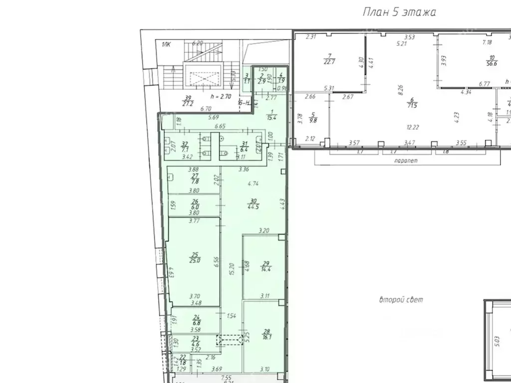
Офисное помещение 167.1 кв. м в бизнес-центре Атриум .Район: Центральный. Ближайшие станции метро: Невский проспект, Гостиный двор, Адмиралтейская. Характеристики:- Класс: A; - Арендопригодная площадь: 5762.1; - Код налоговой: 40; - Размер типового этажа: 1000; - Наличие лифта: Есть; - Кол-во мест наземного паркинга: 4; - Кол-во мест подземного паркинга: 5; - Интернет-провайдеры: Мегафон, Филанко, Эр-Телеком (Дом. ru), Юнет Коммуникейшн. Арендная ставка:/кв. м в месяц. Финансовые условия: - Оплачивается отдельно: Интернет, Коммунальные услуги, Телефония, Уборка; - В стоимость включено: OPEX, НДС; - Налог: Включая НДС. Без комиссии и скрытых платежей для арендатора.Готовы оперативно организовать просмотр в удобное время, предоставить PDF-презентацию и план. Точное местоположение объекта можно найти по данным координатам: 59.935462,30.323279 ID = c_1774636

Читать полностью
    Позвонить Написать
    509 655 Р6 440 $ или 5 550
    Агент
    +7 (981) 145-24-02
    Начать чат с агентом
    Похожие предложения
    Офис в Санкт-Петербург Невский просп., 25 (169 м) - Фото 1
    Офис в Санкт-Петербург Невский просп., 25 (169 м) - Фото 2
    5-й этаж, всего 5 этажей

    Офисное помещение 169.3 кв. м в бизнес-центре Атриум .Район: Центральный. Ближайшие станции метро: Невский проспект, Гостиный двор, Адмиралтейская. Характеристики:- Класс: A; - Арендопригодная площадь: 5762.1; - Код налоговой: 40; - Размер типового этажа:...
    • 5/5 эт.
    516 365 Р
    Агент
    +7 (981) Показать номер
    Посмотреть контакты
    5-й этаж, всего 6 этажей

    Деловой комплекс расположен в самом сердце Петербурга, рядом станции метро: Гостиный двор, Невский проспект, Достоевская, Владимирская и Площадь Восстания. В пешей доступности находится Московский вокзал.Налоговая: 10. Лифты: Есть. Вентиляция: Приточно-вытяжная....
    • 5/6 эт.
    503 200 Р
    Агент
    +7 (933) Показать номер
    Посмотреть контакты
    Офис в Санкт-Петербург Каменноостровский просп., 24 (336 м) - Фото 1
    Офис в Санкт-Петербург Каменноостровский просп., 24 (336 м) - Фото 2
    2-й этаж, всего 4 этажа

    Арт.Уникальное пространство 336 м в историческом доме у метро под офис, коворкинг или креативный кластер.Ключевые преимущества:- Перспективная локация для бизнеса: Петроградская сторона, 5 минут пешком от м. Горьковская и м. Петроградская. Исторический...
    • 2/4 эт.
    500 000 Р
    Агент
    +7 (981) Показать номер
    Посмотреть контакты
    Офис в Санкт-Петербург Невский просп., 68а (148 м) - Фото 1
    Офис в Санкт-Петербург Невский просп., 68а (148 м) - Фото 2
    5-й этаж, всего 6 этажей

    Сдается в прямую аренду офисный блок 148 кв.м недалеко от метро.Договор аренды заключаете с собственником помещения. Без надбавки к итоговой стоимости аренды.В арендную ставку включено: - НДС,- коммунальные услуги, не включая электроэнергию,- эксплуат.расходы.В...
    • 5/6 эт.
    503 200 Р
    Агент
    +7 (981) Показать номер
    Посмотреть контакты
    Офис в Санкт-Петербург Петроградская наб., 16 (295 м) - Фото 1
    Офис в Санкт-Петербург Петроградская наб., 16 (295 м) - Фото 2
    3-й этаж, всего 5 этажей

    Вниманию арендаторов предлагается блок под офисную деятельность. Располагается на третьем этаже Бизнес-Центра. Коридорно-кабинетная планировка. Произведена классическая отделка. Напольное покрытие: линолеум. Потолки подвесные типа Армстронг , линолеум,...
    • 3/5 эт.
    508 875 Р
    Агент
    +7 (911) Показать номер
    Посмотреть контакты

    Не нашли подходящего объявления?

    Оставьте заявку, и наши риэлторы подберут офис в районе Санкт-Петербурга

    (0)