298 305 Р 3 880 $ или 3 290

Информация о помещении и здании

7
Этаж
7
Этажность
Развернуть
Агент
+7 (911) 843-54-09
Начать чат с агентом

Офис в Санкт-Петербург ул. Чапаева, 3 (189 м)

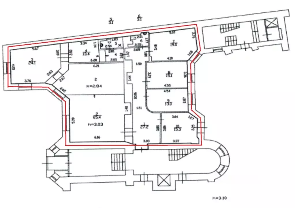
Вниманию арендаторов предлагается помещение под офис 189.4 кв.м.Расположено на 7-м мансардном этаже Бизнес-Центра. Кабинетная планировка. Собственный с/у с душевой.В хорошем состоянии. Выполнена стандартная отделка. Стены - обои под покраску, напольное покрытие - линолеум, подвесные потолки Армстронг .Оснащено приточно-вытяжной вентиляцией. В пешей доступности (14 минут) от станции м. Горьковская . Готово к въезду потенциального арендатора. Договор аренды напрямую с собственником. Без скрытых комиссий и платежей.

Читать полностью
    Позвонить Написать
    298 305 Р3 880 $ или 3 290
    Агент
    +7 (911) 843-54-09
    Начать чат с агентом
    Похожие предложения
    7-й этаж, всего 7 этажей

    Аренда офиса от собственника 189.4 кв.м недалеко от метро. Состояние отделки — готово к въезду.Договор аренды заключаете с собственником помещения. Без надбавки к итоговой стоимости аренды.В арендную ставку включено: - эксплуат.расходы,- уборка общих...
    • 7/7 эт.
    298 305 Р
    Агент
    +7 (981) Показать номер
    Посмотреть контакты
    Офис в Санкт-Петербург Большая Пушкарская ул., 37 (200 м) - Фото 1
    Офис в Санкт-Петербург Большая Пушкарская ул., 37 (200 м) - Фото 2
    1-й этаж, всего 6 этажей

    Арт.Предлагаем в аренду офисное помещение на пересечении Большой Пушкарской и Кронверкской ул. в Доме Бенуа . Респектабельный дом, респектабельная локация. Помещение общей площадью 200 м.кв., преимущественно кабинетная планировка, так-же есть большой...
    • 1/6 эт.
    300 000 Р
    Агент
    +7 (981) Показать номер
    Посмотреть контакты
    Офис в Санкт-Петербург Красногвардейский пер., 23 (282 м) - Фото 1
    Офис в Санкт-Петербург Красногвардейский пер., 23 (282 м) - Фото 2
    2-й этаж, всего 3 этажа

    Сдается в аренду 281.7 кв.м. Состояние отделки — готово к въезду.Подписание договора аренды напрямую с владельцем помещения. Работаем без комиссии, процентов и надбавок.В арендную ставку включено: - НДС.В арендную ставку не входит: коммунальные услуги,...
    • 2/3 эт.
    292 524 Р
    Агент
    +7 (981) Показать номер
    Посмотреть контакты
    Офис в Санкт-Петербург Красногвардейский пер., 23 (280 м) - Фото 1
    Офис в Санкт-Петербург Красногвардейский пер., 23 (280 м) - Фото 2
    2-й этаж, всего 3 этажа

    Предлагается в аренду 279.8 кв.м. Состояние отделки — готово к въезду.Подписание договора аренды напрямую с владельцем помещения. Работаем без комиссии, процентов и надбавок.В арендную ставку включено: - НДС.В арендную ставку не входит: коммунальные услуги,...
    • 2/3 эт.
    308 986 Р
    Агент
    +7 (981) Показать номер
    Посмотреть контакты
    Офис в Санкт-Петербург Красногвардейский пер., 23 (271 м) - Фото 1
    Офис в Санкт-Петербург Красногвардейский пер., 23 (271 м) - Фото 2
    2-й этаж, всего 3 этажа

    Предлагается в аренду 270.8 кв.м.Офис состоит из несколько помещений, расположенных на одном этаже.Подписание договора аренды напрямую с владельцем помещения. Работаем без комиссии, процентов и надбавок.В арендную ставку включено: - НДС.В арендную ставку...
    • 2/3 эт.
    295 576 Р
    Агент
    +7 (981) Показать номер
    Посмотреть контакты

    Не нашли подходящего объявления?

    Оставьте заявку, и наши риэлторы подберут офис в районе Санкт-Петербурга

    (0)