2 919 300 Р 37 320 $ или 31 700

Информация о помещении и здании

1
Этаж
7
Этажность
Развернуть
Агент
+7 (911) 194-52-88
Начать чат с агентом

Офис в Санкт-Петербург 2-я Советская ул., 17 (973 м)

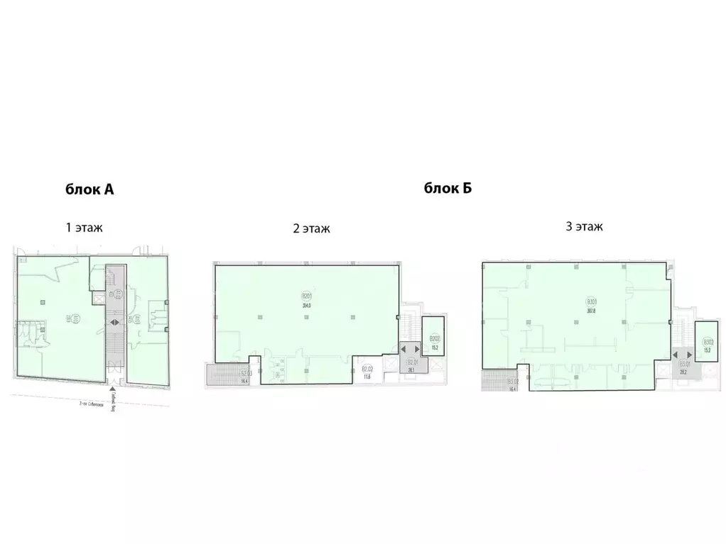
Просторные офисы, отдельные этажи, смешанная планировка; прямая аренда, без комиссии.• Площадь: от 235,9 м до 973,1 м, класс B+ • Планировка: open space, кабинеты, переговорные, с/у• Состояние: современный ремонт • Парковка: открытая наземная - 12 м/м, подземная - 19 м/м• Локация: 7 минут пешком до метро Площадь Восстания, 12 минут - до метро Маяковская• Коммерческие условия: ставка 3 000 /м, НДС, OPEX, КУ включены, прямой договор, без комиссииВ аренду предлагаются офисные помещения в бизнес-центре на 2-й Советской улице, 17 (класс B+) в Центральном районе Санкт-Петербурга.Офисный блок площадью 235,9 м на 1 этаже (open space со стеклянными перегородками) свободен и готов к въезду.Также доступны для аренды 2 и 4 этажи целиком — светлые помещения с планировкой open space, кабинетами, переговорными и санузлами. Готовность к въезду — февраль 2026 года.В бизнес-центре предусмотрена парковка: наземная на 12 машиномест и подземная на 19 машиномест.Вокруг — развитая инфраструктура: кафе, рестораны, супермаркет, отделения банков. До станции метро Площадь Восстания — 7 минут пешком, до Маяковской — 12 минут. Удобный выезд на Невский и Лиговский проспекты.В стоимость включены НДС, эксплуатационные расходы (OPEX), коммунальные услуги, кроме электроэнергии. Договор аренды — прямой, с собственником, без комиссий.Готовы оперативно организовать просмотр в удобное время и предоставить PDF-презентацию, план, и, по запросу, видеотур.

Читать полностью
    Позвонить Написать
    2 919 300 Р37 320 $ или 31 700
    Агент
    +7 (911) 194-52-88
    Начать чат с агентом
    Похожие предложения
    Офис в Санкт-Петербург 2-я Советская ул., 17 (973 м) - Фото 1
    Офис в Санкт-Петербург 2-я Советская ул., 17 (973 м) - Фото 2
    1-й этаж, всего 7 этажей

    Офисное помещение 973.1 кв. м в бизнес-центре на 2-й Советской 17 . Объект скоро освободится. Успейте забронировать на выгодных условиях. Готовность ко въезду уточняется по запросу. Район: Центральный. Ближайшие станции метро: Площадь Восстания, Маяковская,...
    • 1/7 эт.
    2 919 300 Р
    Агент
    +7 (981) Показать номер
    Посмотреть контакты
    Офис в Санкт-Петербург Выборгская наб., 63 (1000 м) - Фото 1
    Офис в Санкт-Петербург Выборгская наб., 63 (1000 м) - Фото 2
    1-й этаж, всего 3 этажа

    Сдается в аренду помещение в отдельно стоящем здании с хорошей транспортной доступностью.ОСЗ расположено в Приморском районе и находится в 17 минутах от метро Чёрная речка. Здание реконструировано в 2026 году, оснащено всеми необходимыми инженерными системами.Адрес:...
    • 1/3 эт.
    3 000 000 Р
    Агент
    +7 (911) Показать номер
    Посмотреть контакты
    Офис в Санкт-Петербург ул. Чехова, 18 (370 м) - Фото 1
    Офис в Санкт-Петербург ул. Чехова, 18 (370 м) - Фото 2
    3-й этаж, всего 4 этажа

    Офисное помещение 370 кв. м в бизнес-центре Чехова 18 . Объект скоро освободится. Успейте забронировать на выгодных условиях. Готовность ко въезду уточняется по запросу. Район: Центральный. Ближайшие станции метро: Маяковская, Чернышевская. Характеристики:-...
    • 3/4 эт.
    2 812 000 Р
    Агент
    +7 (981) Показать номер
    Посмотреть контакты
    Офис в Санкт-Петербург Внуковская ул., 2 (848 м) - Фото 1
    Офис в Санкт-Петербург Внуковская ул., 2 (848 м) - Фото 2
    5-й этаж, всего 14 этажей

    Офисное помещение 847.7 кв. м в бизнес-центре Пулково Скай . Объект скоро освободится. Успейте забронировать на выгодных условиях. Готовность ко въезду уточняется по запросу. Район: Московский. Ближайшие станции метро: Звёздная, Московская. Характеристики:-...
    • 5/14 эт.
    2 956 778 Р
    Агент
    +7 (981) Показать номер
    Посмотреть контакты
    Офис в Санкт-Петербург ул. Седова, 6А (2400 м) - Фото 1
    Офис в Санкт-Петербург ул. Седова, 6А (2400 м) - Фото 2
    4-й этаж, всего 5 этажей

    Офисное помещение 2 400 кв. м в бизнес-центре Centriz.Район: Невский. Ближайшие станции метро: Елизаровская. Характеристики:- Класс: B; - Код налоговой: 11; - Размер типового этажа: 1200; - Арендопригодная площадь: 4000; - Наличие лифта: Есть; - Кол-во...
    • 4/5 эт.
    2 880 000 Р
    Агент
    +7 (981) Показать номер
    Посмотреть контакты

    Не нашли подходящего объявления?

    Оставьте заявку, и наши риэлторы подберут офис в районе Санкт-Петербурга

    (0)