1 916 200 Р 25 160 $ или 21 230

Информация о помещении и здании

2
Этаж
7
Этажность
Развернуть
Агент
+7 (911) 993-21-63
Начать чат с агентом

Офис в Санкт-Петербург 2-я Советская ул., 17 (737 м)

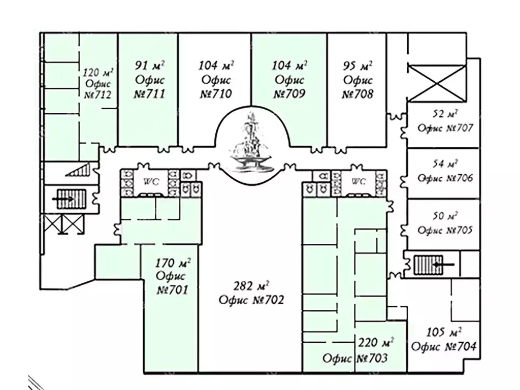
Сдаются офисы в центре города Просторные и светлые помещения формата open-space с готовой отделкой Расположение:Удобный вход с улицы, пешая доступность от станций метро пл. Восстания и Маяковская.Характеристики помещения:- Планировка: open-space- Ремонт: готовая отделка- Лифты OTIS — 3 шт.- Приточно-вытяжная вентиляция и кондиционирование- Современные системы безопасности: СКУД, видеонаблюдение, круглосуточная охрана- Наземная и подземная парковкаСроки освобождения помещений обсуждаются.Идеальное решение для компаний, ценящих комфорт, престижное расположение и готовую инфраструктуру.

Читать полностью
    Позвонить Написать
    1 916 200 Р25 160 $ или 21 230
    Агент
    +7 (911) 993-21-63
    Начать чат с агентом
    Похожие предложения
    Офис в Санкт-Петербург Невский просп., 142 (670 м) - Фото 1
    Офис в Санкт-Петербург Невский просп., 142 (670 м) - Фото 2
    5-й этаж, всего 5 этажей

    Арт.Предлагаем в аренду помещение под представительский офис площадью 670 кв.м. на Невском проспекте. Отличное месторасположение В деловом центре города, в непосредственной близости к станции метро Площадь Восстания . Презентабельная входная группа....
    • 5/5 эт.
    2 000 000 Р
    Агент
    +7 (981) Показать номер
    Посмотреть контакты
    Офис в Санкт-Петербург 1-й Верхний пер., 2 (1175 м) - Фото 1
    Офис в Санкт-Петербург 1-й Верхний пер., 2 (1175 м) - Фото 2
    6-й этаж, всего 12 этажей

    Объект расположен в Выборгском районе Санкт-Петербурга, в промышленной зоне Парнас квартал 1-2, в непосредственной близости от КАД и транспортной развязки с проспектом Культуры.Налоговая: 17. Лифты: Есть. Вентиляция: Естественная. Кондиционирование: ....
    • 6/12 эт.
    1 971 986 Р
    Агент
    +7 (933) Показать номер
    Посмотреть контакты
    Офис в Санкт-Петербург ул. Чехова, 18 (240 м) - Фото 1
    Офис в Санкт-Петербург ул. Чехова, 18 (240 м) - Фото 2
    3-й этаж, всего 4 этажа

    Историческое здание площадью 4680 м2, 1873 года постройки, имеет 4 этажа. Бизнес-центр находится в самом центре Северной столицы, в пешей доступности метро Маяковская, Чернышевская, Площадь Восстания. Развитая инфраструктура: рядом расположены кафе,...
    • 3/4 эт.
    1 824 000 Р
    Агент
    +7 (933) Показать номер
    Посмотреть контакты
    Офис в Санкт-Петербург просп. Кима, 19И (717 м) - Фото 1
    Офис в Санкт-Петербург просп. Кима, 19И (717 м) - Фото 2
    2-й этаж, всего 2 этажа

    Предлагаем в аренду офисы в отдельно стоящем здании на наб. Макарова от собственника объекта.На визуализациях представлен пример реализации офиса. Помещения предлагаются без мебельного оснащения в базовой отделке. Дополнительные ремонтно-отделочные работы...
    • 2/2 эт.
    2 000 000 Р
    Агент
    +7 (981) Показать номер
    Посмотреть контакты
    Офис в Санкт-Петербург ул. Чехова, 18 (240 м) - Фото 1
    Офис в Санкт-Петербург ул. Чехова, 18 (240 м) - Фото 2
    3-й этаж, всего 4 этажа

    Офисное помещение 240 кв. м в бизнес-центре Чехова 18 .Район: Центральный. Ближайшие станции метро: Маяковская, Чернышевская. Характеристики:- Класс: B; - Арендопригодная площадь: 3474.4; - Код налоговой: 41. Арендная ставка:/кв. м в месяц. Финансовые...
    • 3/4 эт.
    1 824 000 Р
    Агент
    +7 (981) Показать номер
    Посмотреть контакты

    Не нашли подходящего объявления?

    Оставьте заявку, и наши риэлторы подберут офис в районе Санкт-Петербурга

    (0)