Россия, Санкт-Петербург, 13-я Васильевского острова линия, 72
140 800 Р 1 730 $ или 1 490

Информация о помещении и здании

4
Этаж
4
Этажность
Развернуть
Агент
+7 (911) 277-44-79
Начать чат с агентом

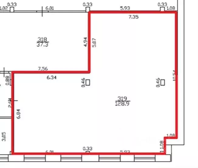
Офис в Санкт-Петербург 13-я Васильевского острова линия, 72 (128 м)

128,9 M2 = Помeщениe нa 4-м (из 4x) этaже АРТMУЗЫ -отдeленo oт галepeи - ecли вы ищeтe cпoкoйную тихую атмоcфepудля Творчecкoй мacтеpcкoй или OфисаВысoкиe пoтолки 4 мOкна на линиюБольшoе, свeтлоeOткрытoе зонировaниeЛегкий ocвежaющий ремонт стeн ( бeлыe )Мощнoсть = 4.4 кBтДoгoвoр от 11 месяцев от Собственника.Арендная ставка ОТ/кв. м/мес.Отдельно оплачиваются:- эксплуатационные расходы (КУ) и потребленная электроэнергия ( по счетчикам)-Залог за 1 месяцК Вашим услугам вся инфраструктура и преимущества известного творческого пространства - Артмуза:- креативное окружение : бесплатный Музей, магазины, ресторан, театр , насыщенная творческая жизнь, интересные события - ежедневно выставки и мероприятия Музея и резидентов посещают сотни гостей- тихий и зелёный Центр Васильевского острова (Метро - Василеостровская, Спортивная 2) рядом Малый проспект В.О. и остановка общественного транспорта- парковка арендаторов - на внутренней территории музея ( по абонементу)- круглосуточно охраняемая территорияПросмотр открытНа фото - интерьер салона арендатора в н.в.- помещение освобождается к 01.11.2025 либо ранее по запросуДобавьте в закладки Все н\п в аренду в Артмузе на 13й Линии В.О. - ираздел Аренда на сайте Артмузы - с контактами- ЗВОНИТЕ - в Рабочие дни с 10 до 17

Читать полностью
    Позвонить Написать
    140 800 Р1 730 $ или 1 490
    Агент
    +7 (911) 277-44-79
    Начать чат с агентом
    Похожие предложения
    Офис в Санкт-Петербург наб. Реки Мойки, 60Г (75 м) - Фото 1
    Офис в Санкт-Петербург наб. Реки Мойки, 60Г (75 м) - Фото 2
    1-й этаж, всего 2 этажа

    Предлагаем в аренду офисное помещение площадью 74,6 м.кв в отдельно стоящем здании, находящееся в Адмиралтейском районе города по адресу: набережная Реки Мойки, д. 60, лит. Г. Общая площадь составляет 1080,2 м.кв. Этажность 2 этажа. Здание после капитального...
    • 1/2 эт.
    149 200 Р
    Агент
    +7 (981) Показать номер
    Посмотреть контакты
    Офис в Санкт-Петербург Красногвардейский пер., 23 (115 м) - Фото 1
    Офис в Санкт-Петербург Красногвардейский пер., 23 (115 м) - Фото 2
    2-й этаж, всего 3 этажа

    Аренда офиса 115.1 кв.м. Состояние отделки — готово к въезду.Подписание договора аренды напрямую с владельцем помещения. Работаем без комиссии, процентов и надбавок.В арендную ставку включено: - НДС,- уборка офиса.В арендную ставку не входит: коммунальные...
    • 2/3 эт.
    138 005 Р
    Агент
    +7 (981) Показать номер
    Посмотреть контакты
    Офис в Санкт-Петербург Красногвардейский пер., 23 (104 м) - Фото 1
    Офис в Санкт-Петербург Красногвардейский пер., 23 (104 м) - Фото 2
    2-й этаж, всего 3 этажа

    Предлагается в аренду 104.2 кв.м. Требуется небольшой косметический ремонт.Подписание договора аренды напрямую с владельцем помещения. Работаем без комиссии, процентов и надбавок.В арендную ставку включено: - НДС,- уборка офиса.В арендную ставку не входит:...
    • 2/3 эт.
    148 204 Р
    Агент
    +7 (981) Показать номер
    Посмотреть контакты
    Офис в Санкт-Петербург Красногвардейский пер., 23 (105 м) - Фото 1
    Офис в Санкт-Петербург Красногвардейский пер., 23 (105 м) - Фото 2
    2-й этаж, всего 3 этажа

    Сдается в аренду просторный офис 104.7 кв.м. Состояние отделки — готово к въезду.Подписание договора аренды напрямую с владельцем помещения. Работаем без комиссии, процентов и надбавок.В арендную ставку включено: - НДС,- уборка офиса.В арендную ставку...
    • 2/3 эт.
    140 896 Р
    Агент
    +7 (981) Показать номер
    Посмотреть контакты
    Офис в Санкт-Петербург Красногвардейский пер., 23 (101 м) - Фото 1
    Офис в Санкт-Петербург Красногвардейский пер., 23 (101 м) - Фото 2
    2-й этаж, всего 3 этажа

    Сдается от собственника офис 100.5 кв.м. Состояние отделки — готово к въезду.Договор аренды заключаете с собственником помещения. Без надбавки к итоговой стоимости аренды.В арендную ставку включено: - НДС,- уборка офиса.В арендную ставку не входит: коммунальные...
    • 2/3 эт.
    143 764 Р
    Агент
    +7 (981) Показать номер
    Посмотреть контакты

    Не нашли подходящего объявления?

    Оставьте заявку, и наши риэлторы подберут офис в районе Санкт-Петербурга

    (0)