1 131 184 Р 14 740 $ или 12 530

Информация о помещении и здании

6
Этаж
6
Этажность
Развернуть
Агент
+7 (911) 194-52-88
Начать чат с агентом

Офис в Санкт-Петербург Малая Морская ул., 23 (244 м)

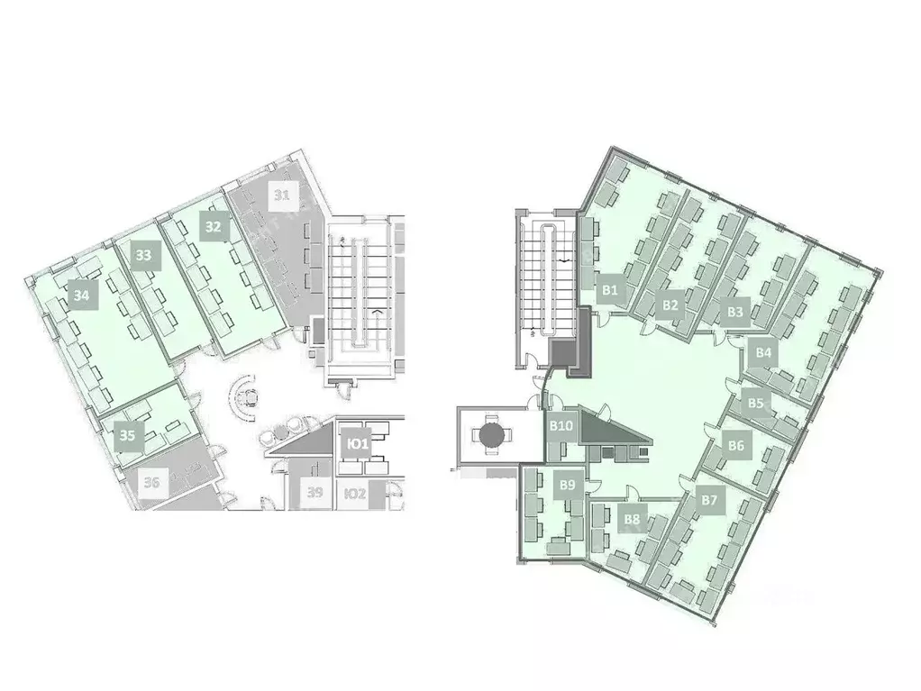
Готовый для въезда офис с кухней, частично меблирован; прямая аренда, без комиссии.• Площадь: 244 м, 6 этаж, класс B+ • Планировка: кабинеты, переговорные, кухня • Состояние: современный ремонт • Локация: 6 минут пешком до метро Адмиралтейская, 15 минут пешком до метро Гостиный двор и Невский проспект• Коммерческие условия: ставка 4 636 /м, НДС, OPEX и КУ включены; прямая аренда, без комиссииВ аренду предлагается современный офис площадью 244 м, расположенный на 6 этаже бизнес-центра Белые Ночи (класс B+) в историческом центре Санкт-Петербурга. Пространство сочетает функциональность и комфорт: кабинетная планировка с переговорной, зонами отдыха и кухней. Возможна частичная меблировка помещений.Бизнес-центр отличается развитой инфраструктурой: на территории — ресторан и кафе, в шаговой доступности находятся гостиницы, банкоматы и Александровский сад. Удобное расположение обеспечивает отличную транспортную доступность: 6 минут пешком до метро Адмиралтейская, около 15 минут — до станций Гостиный двор и Невский проспект.Арендная ставка составляет/мес. В стоимость включены НДС, эксплуатационные расходы (OPEX) и коммунальные услуги. Договор аренды — прямой, с собственником, без комиссий.Готовы оперативно организовать просмотр в удобное время и предоставить PDF-презентацию, план, и, по запросу, видеотур.

Читать полностью
    Позвонить Написать
    1 131 184 Р14 740 $ или 12 530
    Агент
    +7 (911) 194-52-88
    Начать чат с агентом
    Похожие предложения
    Офис в Санкт-Петербург Большая Морская ул., 3-5 (500 м) - Фото 1
    Офис в Санкт-Петербург Большая Морская ул., 3-5 (500 м) - Фото 2
    6-й этаж, всего 7 этажей

    Вниманию арендаторов предлагается помещение площадью 500 кв.м. Этаж: 6. Планировка: кабинетная. Состоит из 20 кабинетов, блок с/у с душевой. Потолки: 3 м. Состояние помещения: с хорошим дизайнерским ремонтом. Помещение: с мебелью. В ставку включено: электроэнергия,...
    • 6/7 эт.
    1 155 000 Р
    Агент
    +7 (911) Показать номер
    Посмотреть контакты
    Офис в Санкт-Петербург Большая Морская ул., 3-5 (500 м) - Фото 1
    Офис в Санкт-Петербург Большая Морская ул., 3-5 (500 м) - Фото 2
    6-й этаж, всего 6 этажей

    Сдаются в аренду помещения в бизнес-центре класса В в непосредственной близости от метро.Бизнес-центр расположен в Центральном районе и находится в 4 минутах от метро Адмиралтейская. Здание реконструировано в 2013 году, оснащено всеми необходимыми инженерными...
    • 6/6 эт.
    1 155 000 Р
    Агент
    +7 (911) Показать номер
    Посмотреть контакты
    Офис в Санкт-Петербург Шпалерная ул., 2/4 (670 м) - Фото 1
    Офис в Санкт-Петербург Шпалерная ул., 2/4 (670 м) - Фото 2
    2-й этаж, всего 5 этажей

    Вниманию арендаторов предлагается офисный блок площадью 669.8 м2. Располагается на втором этаже. Планировка кабинетно-коридорная, при входе холл. В хорошем состоянии. Произведена классическая отделка. Потолки армстронг, стены - обои под покраску в светлых...
    • 2/5 эт.
    1 080 388 Р
    Агент
    +7 (911) Показать номер
    Посмотреть контакты
    Офис в Санкт-Петербург Большой Сампсониевский просп., 28к2 (562 м) - Фото 1
    Офис в Санкт-Петербург Большой Сампсониевский просп., 28к2 (562 м) - Фото 2
    8-й этаж, всего 8 этажей

    Офисное помещение 562.4 кв. м в бизнес-центре Mezon Plaza. Объект скоро освободится. Успейте забронировать на выгодных условиях. Готовность ко въезду уточняется по запросу. Район: Выборгский. Ближайшие станции метро: Площадь Ленина, Выборгская. Характеристики:-...
    • 8/8 эт.
    1 124 800 Р
    Агент
    +7 (981) Показать номер
    Посмотреть контакты
    Офис в Санкт-Петербург Невский просп., 114-116 (386 м) - Фото 1
    Офис в Санкт-Петербург Невский просп., 114-116 (386 м) - Фото 2
    8-й этаж, всего 9 этажей

    Офисное помещение 385.6 кв. м в бизнес-центре Невский Центр . Объект скоро освободится. Успейте забронировать на выгодных условиях. Готовность ко въезду уточняется по запросу. Район: Центральный. Ближайшие станции метро: Площадь Восстания, Маяковская....
    • 8/9 эт.
    1 129 037 Р
    Агент
    +7 (981) Показать номер
    Посмотреть контакты

    Не нашли подходящего объявления?

    Оставьте заявку, и наши риэлторы подберут офис в районе Санкт-Петербурга

    (0)