589 120 Р 7 090 $ или 6 220

Информация о помещении и здании

5
Этаж
9
Этажность
Развернуть
Агент
+7 (981) 145-24-02
Начать чат с агентом

Офис в Санкт-Петербург Заставская ул., 22к2 (421 м)

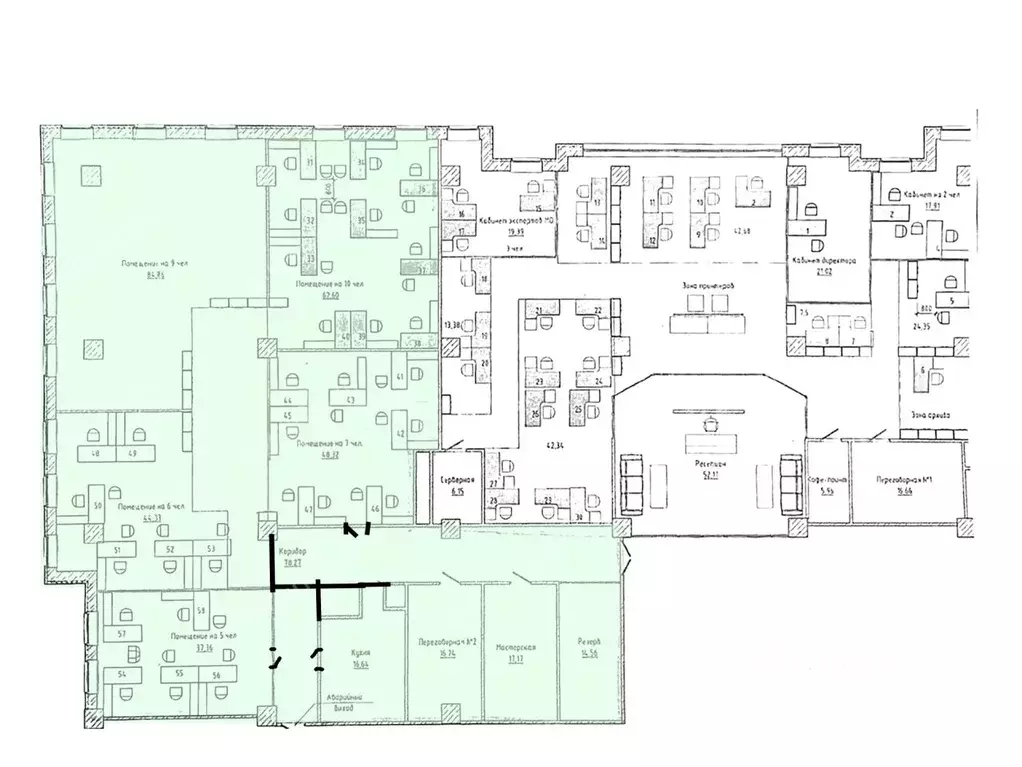
Офисное помещение 420.8 кв. м в бизнес-центре Мегапарк Заставская 22 .Район: Московский. Ближайшие станции метро: Московские ворота. Характеристики:- Класс: B+; - Арендопригодная площадь: 15000; - Код налоговой: 10; - Размер типового этажа: 2100; - Высота потолков: 3 м; - Наличие лифта: Есть; - Кол-во мест наземного паркинга: 400; - Охрана: Да; - Интернет-провайдеры: ОБИТ, Ростелеком, СеверенТелеком, Унител, Фьючерс Телеком, Элител Телеком Групп, Авантел, Билайн, ВестКолл, Мегафон; - Шаг колонн: 7.5x7.5 м. Арендная ставка:/кв. м в месяц. Финансовые условия: - Оплачивается отдельно: Интернет, Коммунальные услуги, Телефония, Уборка; - В стоимость включено: OPEX, НДС; - Налог: УСН (НДС 5 ). Без комиссии и скрытых платежей для арендатора.Готовы оперативно организовать просмотр в удобное время, предоставить PDF-презентацию и план. Точное местоположение объекта можно найти по данным координатам: 59.888642,30.327661 ID = c_1773177

Читать полностью
    Позвонить Написать
    589 120 Р7 090 $ или 6 220
    Агент
    +7 (981) 145-24-02
    Начать чат с агентом
    Похожие предложения
    Офис в Санкт-Петербург Заставская ул., 22к2 (420 м) - Фото 1
    Офис в Санкт-Петербург Заставская ул., 22к2 (420 м) - Фото 2
    5-й этаж, всего 8 этажей

    Аренда офиса в Московском районе, в десяти минутах ходьбы от станции метро Московские ворота.Офис расположен в бизнес центре класса В.Технические характеристики:Площадь 421 м25 этажАренда:м2-Смешанная планировкаКондиционированиеПриточно-вытяжная вентиляцияРежим...
    • 5/8 эт.
    588 000 Р
    Агент
    +7 (981) Показать номер
    Посмотреть контакты
    Офис в Санкт-Петербург Заставская ул., 3к2Б (808 м) - Фото 1
    Офис в Санкт-Петербург Заставская ул., 3к2Б (808 м) - Фото 2
    2-й этаж, всего 3 этажа

    Сдается в аренду помещение в отдельно стоящем здании с хорошей транспортной доступностью.ОСЗ расположено в Московском районе и находится в 19 минутах от метро Московские ворота.Адрес: Санкт-Петербург, ул. Заставская д. 3, лит. 2Б.Ближайшее метро: Московские...
    • 2/3 эт.
    593 880 Р
    Агент
    +7 (911) Показать номер
    Посмотреть контакты
    Офис в Санкт-Петербург Заставская ул., 22Е (421 м) - Фото 1
    Офис в Санкт-Петербург Заставская ул., 22Е (421 м) - Фото 2
    5-й этаж, всего 9 этажей

    Предлагается блок под офисную деятельность, общей площадью 421 м.кв. Располагается на пятом этаже Бизнес-Центра. Смешанная планировка: кабинеты различного метража, помещение под кухню, переговорная. В хорошем состоянии. Стандартная офисная отделка....
    • 5/9 эт.
    589 400 Р
    Агент
    +7 (911) Показать номер
    Посмотреть контакты
    Офис в Санкт-Петербург Лиговский просп., 266Е (369 м) - Фото 1
    Офис в Санкт-Петербург Лиговский просп., 266Е (369 м) - Фото 2
    1-й этаж, всего 2 этажа

    Сдается в аренду помещение класса В в непосредственной близости от метро.Здание расположено в Московском районе и находится в 9 минутах от метро Московские ворота. Здание построено в 1948 году, оснащено всеми необходимыми инженерными системами, в том...
    • 1/2 эт.
    581 175 Р
    Агент
    +7 (911) Показать номер
    Посмотреть контакты
    Офис в Санкт-Петербург Лиговский просп., 254 (586 м) - Фото 1
    Офис в Санкт-Петербург Лиговский просп., 254 (586 м) - Фото 2
    3-й этаж, всего 6 этажей

    АГЕНТАМ ПЛАТИМ. РАБОТАЕМ ПО СТАНДАРТАМ АССОЦИАЦИИ КОКОН. Офисно-складской комплекс Лиговское 254, расположен недалеко от метро Московские ворота, Электросила, Фрунзенская. Отличная транспортная и пешеходная доступность, развитая инфраструктура района....
    • 3/6 эт.
    589 809 Р
    Агент
    +7 (933) Показать номер
    Посмотреть контакты

    Не нашли подходящего объявления?

    Оставьте заявку, и наши риэлторы подберут офис в районе Санкт-Петербурга

    (0)