27 000 Р 348 $ или 299

Информация о помещении и здании

1
Этаж
6
Этажность
Развернуть
Агент
+7 (981) 250-98-22
Начать чат с агентом

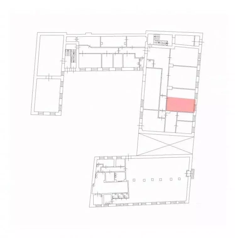
Офис в Санкт-Петербург Бухарестская ул., 6 (27 м)

Предлагается в аренду офис 27 кв.м недалеко от метро. Состояние отделки — готово к въезду.Подписание договора аренды напрямую с владельцем помещения. Работаем без комиссии, процентов и надбавок.В арендную ставку включено: - коммунальные услуги, включая электроэнергию,- эксплуат.расходы,- уборка общих мест,- вывоз мусора,- охрана здания.В арендную ставку не входит: уборка офиса, интернет.• планировка в офисе: openspace;• кондиционер: в каждом офисе;• вентиляция: нет;• сан. узел в офисе: нет;• условия договора: 11 месяцев, обеспечительный 1 месяц;• налогообложение: УСН;• вход в здание: для арендаторов свободный, для клиентов свободный;• интернет провайдеры: Мегафон, Обит;• парковка: бесплатная на территории БЦ;• здание работает: 09-00...19-00;Показы в рабочее время.Получите подробную информацию об офисе. Отправим ее на почту или по Whatsapp.Для организации просмотра и для получения консультации по условиям аренды звоните.Для вас наши услуги абсолютно бесплатны — их оплачивают бизнес-центры.Описание бизнес-центра:Рядом проходят такие крупные магистрали, как Бухарестская, Софийская улицы и улица Салова. На выбор арендаторов представлены несколько компаний-провайдеров, обеспечивающих доступ к телекоммуникационной связи. Собственник объекта осуществляет свою деятельность по упрощенной системе налогообложения, поэтому в арендной ставке НДС не выделяется.

Читать полностью
    Позвонить Написать
    27 000 Р348 $ или 299
    Агент
    +7 (981) 250-98-22
    Начать чат с агентом
    Похожие предложения
    Офис в Санкт-Петербург Сердобольская ул., 65 (38 м) - Фото 1
    Офис в Санкт-Петербург Сердобольская ул., 65 (38 м) - Фото 2
    цокольный этаж, всего 7 этажей

    Аренда офисного блока 37.9 кв.м недалеко от метро.Договор аренды заключаете с собственником помещения. Без надбавки к итоговой стоимости аренды.В арендную ставку включено: - НДС,- эксплуат.расходы,- уборка общих мест.В арендную ставку не входит: коммунальные...
    • -1/7 эт.
    27 667 Р
    Агент
    +7 (981) Показать номер
    Посмотреть контакты
    Офис в Санкт-Петербург Садовая ул., 28-30к15 (44 м) - Фото 1
    Офис в Санкт-Петербург Садовая ул., 28-30к15 (44 м) - Фото 2
    3-й этаж, всего 3 этажа

    ID: 830521Тихий офис в Апраксином дворе, есть большая комната для отдыха и приёма пищи, доступ в помещение с 7:00 до 19:00 (вневедомственная охрана).
    • 3/3 эт.
    27 000 Р
    Агент
    +7 (981) Показать номер
    Посмотреть контакты
    Офис в Санкт-Петербург Дегтярная ул., 5-7 (27 м) - Фото 1
    Офис в Санкт-Петербург Дегтярная ул., 5-7 (27 м) - Фото 2
    1-й этаж, всего 3 этажа

    Без комиссии Аренда от собственника помещения под офис в Центральном районе.Расположение: ул. Дегтярная, д. 5-7. Ближайшая станция метро Площадь Восстания - 8 минут пешком.Высокие потолки 3,35 мНа территории бизнес-центра есть столовая.Арендная ставка...
    • 1/3 эт.
    26 573 Р
    Агент
    +7 (911) Показать номер
    Посмотреть контакты
    Аренда офиса 66.3 м2 - Фото 1
    Аренда офиса 66.3 м2 - Фото 2
    Аренда офиса 66.3 м2 - Фото 3
    Аренда офиса 66.3 м2 - Фото 4
    Аренда офиса 66.3 м2 - Фото 5
    Аренда офиса 66.3 м2 - Фото 6
    Аренда офиса 66.3 м2 - Фото 7
    Аренда офиса 66.3 м2 - Фото 8
    Аренда офиса 66.3 м2 - Фото 9
    Аренда офиса 66.3 м2 - Фото 10
    Аренда офиса 66.3 м2 - Фото 11
    Аренда офиса 66.3 м2 - Фото 12
    Аренда офиса 66.3 м2 - Фото 13
    Аренда офиса 66.3 м2 - Фото 14
    Аренда офиса 66.3 м2 - Фото 15
    Аренда офиса 66.3 м2 - Фото 16
    Аренда офиса 66.3 м2 - Фото 17
    Аренда офиса 66.3 м2 - Фото 18
    Аренда офиса 66.3 м2 - Фото 19
    Аренда офиса 66.3 м2 - Фото 20
    реализуемая площадь 66.3м², 2-й этаж, всего 14 этажей, открытая планировка

    Помещение под офис площадью 66,3 кв.м, на 2 этаже 14-этажного бизнес-центра класса A в 15 мин. транспортом от м.Новочеркасская в Красногвардейском районе Санкт-Петербурга. Высота потолков: 3.37 м. Офис предоставляется в прямую аренду, срок аренды - любой,...
    • 66.3 м²
    • A
    • 2/14 эт.
    • парковка
    145 900 Р /в месяц
    Агент
    +7 (983) Показать номер
    Посмотреть контакты
    Аренда офиса 64.6 м2 - Фото 1
    Аренда офиса 64.6 м2 - Фото 2
    Аренда офиса 64.6 м2 - Фото 3
    Аренда офиса 64.6 м2 - Фото 4
    Аренда офиса 64.6 м2 - Фото 5
    Аренда офиса 64.6 м2 - Фото 6
    Аренда офиса 64.6 м2 - Фото 7
    Аренда офиса 64.6 м2 - Фото 8
    Аренда офиса 64.6 м2 - Фото 9
    Аренда офиса 64.6 м2 - Фото 10
    Аренда офиса 64.6 м2 - Фото 11
    Аренда офиса 64.6 м2 - Фото 12
    Аренда офиса 64.6 м2 - Фото 13
    Аренда офиса 64.6 м2 - Фото 14
    Аренда офиса 64.6 м2 - Фото 15
    Аренда офиса 64.6 м2 - Фото 16
    Аренда офиса 64.6 м2 - Фото 17
    Аренда офиса 64.6 м2 - Фото 18
    Аренда офиса 64.6 м2 - Фото 19
    реализуемая площадь 64.6м², 2-й этаж, всего 14 этажей, открытая планировка

    Помещение под офис площадью 64.6 кв.м, на 2 этаже 14-этажного бизнес-центра класса A в 15 мин. транспортом от м.Новочеркасская в Красногвардейском районе Санкт-Петербурга. Высота потолков: 3.37 м. Офис предоставляется в прямую аренду, срок аренды - любой,...
    • 64.6 м²
    • A
    • 2/14 эт.
    • парковка
    142 100 Р /в месяц
    Агент
    +7 (983) Показать номер
    Посмотреть контакты

    Не нашли подходящего объявления?

    Оставьте заявку, и наши риэлторы подберут офис в районе Санкт-Петербурга

    (0)