274 666 Р 3 610 $ или 3 100

Информация о помещении и здании

3
Этаж
5
Этажность
Развернуть
Агент
+7 (981) 250-98-22
Начать чат с агентом

Офис в Санкт-Петербург Домостроительная ул., 16 (193 м)

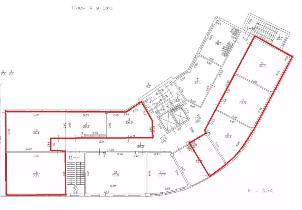
Предлагается в аренду офис 193.2 кв.м.Офис состоит из несколько помещений, расположенных на одном этаже.Договор аренды заключаете с собственником помещения. Без надбавки к итоговой стоимости аренды.В арендную ставку включено: - НДС,- коммунальные услуги, не включая электроэнергию,- уборка общих мест,- вывоз мусора,- охрана здания,- услуга эксплуатации внутри помещения.В арендную ставку не входит: электроэнергия, эксплуат.расходы, уборка офиса, интернет.• условия договора: 11 месяцев, обеспечительный 1 месяц, минимум на 11 мес;• налогообложение: НДС или УСН;• вход в здание: для арендаторов по документу, для клиентов по документу;• интернет провайдеры: Эр-Телеком,Смарт-Телеком,Citytelecom,ОБИТ.;• парковка: на территории БЦ;• здание работает: 8.00...22.00;Показы в рабочее время.Получите подробную информацию об офисе. Отправим ее на почту или по Whatsapp.Звоните. Мы оперативно организуем просмотр помещения в удобную для вас дату и ответим на все интересующие вопросы.Для вас наши услуги абсолютно бесплатны — их оплачивают бизнес-центры.Описание бизнес-центра:16, лит. Имеются офисы формата open space с панорамным остеклением. Бизнес-центр AURUM предлагает в аренду просторные светлые помещения с панорамным остеклением, представительские офисы и торговые помещения, а так же небольшие офисы от 8 кв.

Читать полностью
    Позвонить Написать
    274 666 Р3 610 $ или 3 100
    Агент
    +7 (981) 250-98-22
    Начать чат с агентом
    Похожие предложения
    Офис в Санкт-Петербург ш. Революции, 69 (210 м) - Фото 1
    Офис в Санкт-Петербург ш. Революции, 69 (210 м) - Фото 2
    3-й этаж, всего 6 этажей

    Сдается в прямую аренду офисный блок 210.3 кв.м.Подписание договора аренды напрямую с владельцем помещения. Работаем без комиссии, процентов и надбавок.В арендную ставку включено: - коммунальные услуги, включая электроэнергию,- уборка офиса,- уборка общих...
    • 3/6 эт.
    261 075 Р
    Агент
    +7 (981) Показать номер
    Посмотреть контакты
    Офис в Санкт-Петербург Красногвардейский пер., 23 (185 м) - Фото 1
    Офис в Санкт-Петербург Красногвардейский пер., 23 (185 м) - Фото 2
    2-й этаж, всего 3 этажа

    Сдается в прямую аренду офисный блок 184.5 кв.м.В этом офисе несколько помещений на одном этаже.Подписание договора аренды напрямую с владельцем помещения. Работаем без комиссии, процентов и надбавок.В арендную ставку включено: - НДС,- уборка офиса.В...
    • 2/3 эт.
    268 496 Р
    Агент
    +7 (981) Показать номер
    Посмотреть контакты
    Офис в Санкт-Петербург Красногвардейский пер., 23 (166 м) - Фото 1
    Офис в Санкт-Петербург Красногвардейский пер., 23 (166 м) - Фото 2
    2-й этаж, всего 3 этажа

    Сдается в аренду просторный офис 166.4 кв.м.В этом офисе несколько помещений на одном этаже.Подписание договора аренды напрямую с владельцем помещения. Работаем без комиссии, процентов и надбавок.В арендную ставку включено: - НДС,- уборка офиса.В арендную...
    • 2/3 эт.
    266 074 Р
    Агент
    +7 (981) Показать номер
    Посмотреть контакты
    Офис в Санкт-Петербург Красногвардейский пер., 23 (164 м) - Фото 1
    Офис в Санкт-Петербург Красногвардейский пер., 23 (164 м) - Фото 2
    2-й этаж, всего 3 этажа

    Сдается в аренду просторный офис 164.1 кв.м.Это офис содержит несколько помещений, которые располагаются на одном этаже.Договор аренды заключаете с собственником помещения. Без надбавки к итоговой стоимости аренды.В арендную ставку включено: - НДС,- уборка...
    • 2/3 эт.
    266 659 Р
    Агент
    +7 (981) Показать номер
    Посмотреть контакты
    Офис в Санкт-Петербург Красногвардейский пер., 23 (189 м) - Фото 1
    Офис в Санкт-Петербург Красногвардейский пер., 23 (189 м) - Фото 2
    2-й этаж, всего 3 этажа

    Сдается в прямую аренду офисный блок 188.5 кв.м. Требуется небольшой косметический ремонт.Подписание договора аренды напрямую с владельцем помещения. Работаем без комиссии, процентов и надбавок.В арендную ставку включено: - НДС,- уборка офиса.В арендную...
    • 2/3 эт.
    274 892 Р
    Агент
    +7 (981) Показать номер
    Посмотреть контакты

    Не нашли подходящего объявления?

    Оставьте заявку, и наши риэлторы подберут офис в районе Санкт-Петербурга

    (0)