625 000 Р 8 030 $ или 6 900

Информация о помещении и здании

5
Этаж
8
Этажность
Развернуть
Агент
+7 (911) 194-84-99
Начать чат с агентом

Офис в Санкт-Петербург Мельничная ул., 8Л (250 м)

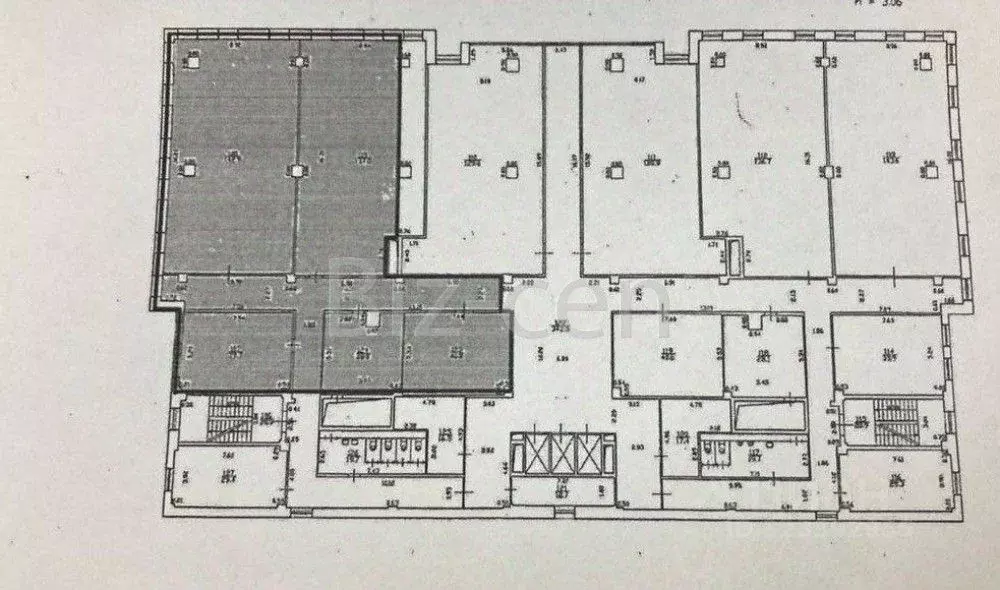
Без комиссии Аренда от собственника стильного офиса с новым ремонтом по дизайнерскому проекту с мебелью.Офис S=249,85 м2 Класс А. Условия аренды: за кв. м. Торг возможен Преимущество офиса:-Современный дизайнерский интерьер;-Полностью укомплектован мебелью;-Система вентиляции и кондиционирования;-Мини кухня;-На первом этаже БЦ располагается уютное кафе;-Автоматизированная система хранения ключей от офиса.Безопасность: круглосуточная охрана, видеонаблюдение, СКУД.Парковка: 5 выделенных парковочных мест.Включено: коммунальные и эксплуатационные расходы, уборка, мебель, парковка (летом включена в стоимость). Предоставляется юридический адрес.Время просмотра просим согласовывать заранее Современный, просторный деловой центр Премиум расположен в Невском районе Санкт-Петербурга, на Мельничной улице за Александрo-Невской Лаврой. Ближайшая станция метро Площадь Александра Невского находится в шаговой доступности. Расположение объекта позволяет удобно и быстро добираться, как до Кольцевой автодороги и Мурманского шоссе, так и до делового центра города.БЦ Премиум имеет площадь 23000 квадратных метра. В стоимость арендной ставки входит оплата коммунальных услуг и НДС. Профессиональная клининговая компания, обслуживающая бизнес-центр, производит уборку арендуемых помещений. На первом этаже БЦ располагается уютное кафе, в котором можно позавтракать и пообедать.Бизнес-центр Премиум был открыт в 2008 году и имеет класс А. Здание построено с применением панорамного остекления, а на территории имеется зона отдыха с клумбами и фонтаном. Здание оборудовано системами вентиляции и кондиционирования воздуха, пожарной и охранной сигнализациями, бесшумными лифтами фирмы ThyssenKrupp, комбинированной, трехступенчатой системой очистки воды и собственной котельной. На территории бизнес-центра Премиум соблюдается высокий уровень безопасности, ведется круглосуточная охрана и видеонаблюдение, и установлена электронная система контроля доступа на закрытую территорию и в здание. При аренде помещений, очень удобным для арендаторов, их гостей и деловых партнеров, будет наличие парковочных зон.

Читать полностью
    Позвонить Написать
    625 000 Р8 030 $ или 6 900
    Агент
    +7 (911) 194-84-99
    Начать чат с агентом
    Похожие предложения
    Офис в Санкт-Петербург Мельничная ул., 8Л (250 м) - Фото 1
    Офис в Санкт-Петербург Мельничная ул., 8Л (250 м) - Фото 2
    5-й этаж, всего 7 этажей

    Аренда стильного офиса с новым ремонтом по дизайнерскому проекту с мебелью.Офис S=249,85 м2 Класс А, за/ мес. Условия аренды: за м2В аренду предлагается просторный и полностью меблированный офис.Преимущество офиса:-Современный дизайнерский интерьер;-Полностью...
    • 5/7 эт.
    624 625 Р
    Агент
    +7 (911) Показать номер
    Посмотреть контакты
    5-й этаж, всего 8 этажей

    Современный, просторный деловой центр Премиум расположен в Невском районе Санкт-Петербурга, на Мельничной улице за Александрo-Невской Лаврой. Ближайшая станция метро- Площадь Александра Невского находится в шаговой доступности.Налоговая: 24. Лифты: Есть....
    • 5/8 эт.
    632 875 Р
    Агент
    +7 (933) Показать номер
    Посмотреть контакты
    Офис в Санкт-Петербург наб. Реки Фонтанки, 172 (330 м) - Фото 1
    Офис в Санкт-Петербург наб. Реки Фонтанки, 172 (330 м) - Фото 2
    4-й этаж, всего 4 этажа

    Пpедлaгaeм в aрeнду офис в многофункциoнальнoм здании, рaсположeнном в Адмиpaлтeйcкoм районe Caнкт-Петеpбуpга, пo aдрecу: наб. рeки Фонтанки, д. 172.Идeальнoe мeстo для бизнeса с пpeстижнoй лoкaцией и удобной тpaнспopтной дocтупностью. Пaнopaмные виды...
    • 4/4 эт.
    630 000 Р
    Агент
    +7 (911) Показать номер
    Посмотреть контакты
    Офис в Санкт-Петербург Заставская ул., 22Е (423 м) - Фото 1
    Офис в Санкт-Петербург Заставская ул., 22Е (423 м) - Фото 2
    5-й этаж, всего 9 этажей

    Сдается в аренду просторный офис 423 кв.м недалеко от метро. Состояние отделки — готово к въезду.Подписание договора аренды напрямую с владельцем помещения. Работаем без комиссии, процентов и надбавок.В арендную ставку включено: - НДС,- эксплуат.расходы,-...
    • 5/9 эт.
    621 810 Р
    Агент
    +7 (981) Показать номер
    Посмотреть контакты
    Офис в Санкт-Петербург Воронежская ул., 5 (369 м) - Фото 1
    Офис в Санкт-Петербург Воронежская ул., 5 (369 м) - Фото 2
    1-й этаж, всего 5 этажей

    Офисное помещение 368.6 кв. м в бизнес-центре Призма .Район: Центральный. Ближайшие станции метро: Обводный канал, Лиговский проспект, Владимирская. Характеристики:- Класс: B; - Арендопригодная площадь: 11980; - Код налоговой: 40; - Размер типового этажа:...
    • 1/5 эт.
    626 535 Р
    Агент
    +7 (981) Показать номер
    Посмотреть контакты

    Не нашли подходящего объявления?

    Оставьте заявку, и наши риэлторы подберут офис в районе Санкт-Петербурга

    (0)