476 494 Р 6 110 $ или 5 260

Информация о помещении и здании

2
Этаж
3
Этажность
Развернуть
Агент
+7 (989) 341-85-89
Начать чат с агентом

Офис в Санкт-Петербург Садовая ул., 28-30к17 (61 м)

Код лота: 62C46C. Реализуется на торгах. Реализуется право аренды помещения свободного назначения, расположенного на Садовой улице, на территории Апраксина двора. Договор аренды заключается сроком на 3 (три) года для использования под нежилые цели. Помещение находится в собственности Санкт-Петербурга. Объект расположен в историческом центре Санкт-Петербурга, в пешей доступности от станции метро и остановок наземного общественного транспорта. Окружение объекта представлено преимущественно общественно-деловой застройкой. В непосредственной близости находится Универмаг Большой Гостиный двор, торговые ряды Апраксина двора, офисные и торговые помещения, а также объекты общественного питания. В настоящее время помещение не используется, требуется проведение ремонтных работ. Инженерные коммуникации: электроснабжение, отопление, водоснабжение, канализация. Кадастровый номер: 78:31:0105610:1843 Площадь Объекта: 60, 8 кв. м Назначение: нежилое. Наименование: нежилое помещение Этаж: 1-2. Высота потолков: 3, 17 м. Входы: отдельный со двора Окна: есть Объект относится к числу объектов культурного наследия регионального значения. Помещение расположено в непосредственной близости от крупной городской магистрали Садовой улице. Местоположение объекта характеризуется высокими пешеходным и автомобильным трафиками. Станция метро Гостиный двор и Невский проспект - 650 м Оптимальное использование помещения: в качестве помещения торгово-офисного назначения Торги проходят по поручению Комитета Имущественных отношений Санкт-Петербурга https://catalog. lot-online. ru/index. php?dispatch=products. view product_id=1535168

Читать полностью
    Позвонить Написать
    476 494 Р6 110 $ или 5 260
    Агент
    +7 (989) 341-85-89
    Начать чат с агентом
    Похожие предложения
    Офис в Санкт-Петербург Малая Конюшенная ул., 1-3Б (144 м) - Фото 1
    Офис в Санкт-Петербург Малая Конюшенная ул., 1-3Б (144 м) - Фото 2
    3-й этаж, всего 5 этажей

    Сдается в аренду помещение в бизнес-центре класса В+ в непосредственной близости от метро.Бизнес-центр расположен в Центральном районе и находится в 6 минутах от метро Невский проспект. Здание построено в 2015 году, оснащено всеми необходимыми инженерными...
    • 3/5 эт.
    489 600 Р
    Агент
    +7 (911) Показать номер
    Посмотреть контакты
    Офис в Санкт-Петербург Малая Конюшенная ул., 1-3 (144 м) - Фото 1
    Офис в Санкт-Петербург Малая Конюшенная ул., 1-3 (144 м) - Фото 2
    3-й этаж, всего 4 этажа

    Аренда офиса в Центральном районе, в трех минутах ходьбы от станции метро Невский проспект.Офис расположен в бизнес центре класса А.Технические характеристики:Площадь 144 м23 этажАренда:м2-Смешанная планировкаКондиционированиеПриточно-вытяжная вентиляцияПропускная...
    • 3/4 эт.
    489 600 Р
    Агент
    +7 (981) Показать номер
    Посмотреть контакты
    Офис в Санкт-Петербург Невский просп., 10 (197 м) - Фото 1
    Офис в Санкт-Петербург Невский просп., 10 (197 м) - Фото 2
    3-й этаж, всего 5 этажей

    Сдается в аренду помещение в бизнес-центре класса В+ в непосредственной близости от метро.Бизнес-центр расположен в Центральном районе и находится в 2 минутах от метро Адмиралтейская. Здание реконструировано в 2004 году, оснащено всеми необходимыми инженерными...
    • 3/5 эт.
    472 800 Р
    Агент
    +7 (911) Показать номер
    Посмотреть контакты
    Офис в Санкт-Петербург ул. Трефолева, 2В (490 м) - Фото 1
    Офис в Санкт-Петербург ул. Трефолева, 2В (490 м) - Фото 2
    5-й этаж, всего 9 этажей

    Сдается в аренду помещение в бизнес-центре класса С. Бюджетное решение для вашего бизнеса.Бизнес-центр расположен в Кировском районе и находится в 23 минутах от метро Кировский завод. Здание реконструировано в 2002 году, оснащено всеми необходимыми инженерными...
    • 5/9 эт.
    490 000 Р
    Агент
    +7 (911) Показать номер
    Посмотреть контакты
    Офис в Санкт-Петербург Киевская ул., 5к4 (265 м) - Фото 1
    Офис в Санкт-Петербург Киевская ул., 5к4 (265 м) - Фото 2
    2-й этаж, всего 7 этажей

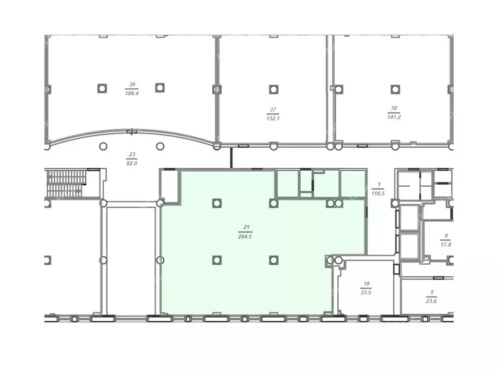
    Офисное помещение 264.5 кв. м в бизнес-центре Энерго от собственника. Объект скоро освободится. Успейте забронировать на выгодных условиях. Готовность ко въезду уточняется по запросу. Район: Московский. Ближайшие станции метро: Фрунзенская, Московские...
    • 2/7 эт.
    472 133 Р
    Агент
    +7 (981) Показать номер
    Посмотреть контакты

    Не нашли подходящего объявления?

    Оставьте заявку, и наши риэлторы подберут офис в районе Санкт-Петербурга

    (0)