Реализация объекта недвижимости приостановлена

Информация о квартире

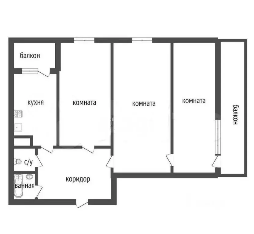
60.0 м2
Площадь
38.0 м2
Жилая
8.0 м2
Кухня
3
Комнаты
5
Этаж
14
Этажность

Дополнительная информация

Тип дома
кирпичный
Развернуть

3-к кв. Санкт-Петербург просп. Маршала Блюхера, 21К2 (60.0 м)

Арт.Сдается уютная 3к.квартира в отличном состоянии.В квартире оборудована спальня с большим застекленным балконом,детская и гостинная.На кухне имеется вся нужная бытовая техника и тоже имеется балкон,большая прихожая. Квартира сдается на длительный срок для семьи,без животных.

Читать полностью

    Реализация объекта недвижимости приостановлена

    Не нашли подходящего объявления?

    Оставьте заявку, и наши риэлторы подберут квартиру в районе Санкт-Петербурга

    (0)