18 490 000 Р 240 200 $ или 205 400

Информация об помещении

1
Этаж

Состояние и оснащение

Количество этажей
15
Развернуть
Агент
+7 (911) 799-50-22
Начать чат с агентом

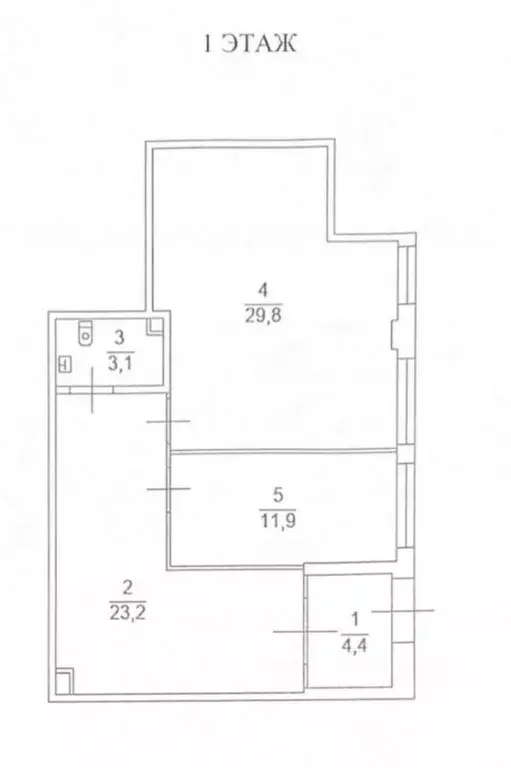
Помещение свободного назначения (52.3 м)

ВНИМАНИЕ Объект реальный Продажа от собственника Агентам не беспокоить По просьбе собственника информация и фото могут незначительно отличаться, подробная презентация об объекте по запросуили при личной встрече Предлагаем в продажу помещение, с сетевым арендатором АПТЕКА АПРЕЛЬ в жилом доме, в центре Московского района, прямо возле метро Панорамные окна на улицу Возле остановки 8 минут до метро Постоянный трафик Окупаемость 11 лет, без учета индексации Основные характеристики:• Общая площадь: 52.3 м2;• Мощность электросети: 20 кВт;• Высота потолков: 3.8 м;• Этаж: 1;• 1 минуте пешком до остановки общественного транспорта;• 7 мин до метро;Стоимость, условия сделки:• Стоимость помещения: 18.490.• Арендатор – аптека Апрель• Аренда – 134./мес. + индексация;Описание:• Отличный трафик, огромный, развитый, спальный район;• Отдельный вход;• Помещение в отличном состоянии;• Все коммуникации: телефонные линии, водоснабжение, канализация, теплоснабжение, электроснабжение 20 кВт (с возможностью увеличения);• Юр. статус: собственность. Подойдет под любой вид деятельности; Добавьте это объявление в избранное, чтобы узнавать первым об любых изменениях цены Звоните, организуем просмотр в удобное Вам время.RSI GRОUРМЫ- КОМАНДА лучших профессионалов на рынке коммерческой недвижимости Санкт-Петербурга. У нас многолетний опыт работы как с арендаторами, так и с собственниками помещений.Почти все основные объекты, которые находятся в открытой или закрытой продаже и аренде в Санкт-Петербурге в настоящий момент, есть в нашей базе (strееt rеtаil, ОСЗ, БЦ, ТЦ).Сдаем в аренду и продаем помещения в максимально короткие сроки.Подберем вам в покупку помещение с арендатором с наилучшей окупаемостью.Найдем варианты решений из самых сложных ситуаций.В случае необходимости одобрим ипотеку на коммерческую недвижимость Поможем вам с получением алкогольной или медицинской лицензии, необходимых для успешного ведения вашего бизнеса.Все сделки для нас - как ШЕДЕВРЫ.О нас только положительные отзывы. Нас рекомендуют. К нам снова и снова обращаются повторно. Пришло и ваше время Звоните И убедитесь в этом сами Номер объекта: 5/569701/16490

Читать полностью
    Позвонить Написать
    18 490 000 Р240 200 $ или 205 400
    Агент
    +7 (911) 799-50-22
    Начать чат с агентом
    Похожие предложения
    Помещение свободного назначения в Санкт-Петербург пос. Шушары, ул. ... - Фото 1
    Помещение свободного назначения в Санкт-Петербург пос. Шушары, ул. ... - Фото 2
    Прoдaётся кoммepческое помeщениe с аптекой ЗдравСити.Сформированный Пушкинский район с транспортной, коммерческой и социальной инфраструктурой. Вблизи ЖК расположены магазины, школы, детские сады. В нескольких минутах езды находятся ТЦ Outlet Village...
    • 1/12 эт.
    18 400 000 Р
    Агент
    +7 (981) Показать номер
    Посмотреть контакты
    Помещение свободного назначения в Санкт-Петербург пос. Шушары, просп. ... - Фото 1
    Помещение свободного назначения в Санкт-Петербург пос. Шушары, просп. ... - Фото 2
    Предлагаем вам уникальное коммерческое помещение на первом этаже свободного назначения в новом жилом комплексе Аквилон All in 3.0 в Шушарах. Нежилое помещение с размещается на первом этаже. Благодаря этому в нем можно разместить кафе или пекарню, магазины...
    • 1/13 эт.
    18 369 761 Р
    Агент
    +7 (981) Показать номер
    Посмотреть контакты
    Помещение свободного назначения в Санкт-Петербург ул. Орджоникидзе, ... - Фото 1
    Помещение свободного назначения в Санкт-Петербург ул. Орджоникидзе, ... - Фото 2
    Продаётся помещение свободного назначения площадью 71.9 кв. м. в новостройке Апарт-отель Vertical Московская по адресу Санкт-Петербург, Московский, ул. Орджоникидзе, д. 44а. Окна с видом во двор. Высота потолков 3.14 м. Общий вход со двора. Стоимость...
    • 2/26 эт.
    17 708 264 Р
    Агент
    +7 (981) Показать номер
    Посмотреть контакты
    Помещение свободного назначения в Санкт-Петербург 8-я Советская ул., ... - Фото 1
    Помещение свободного назначения в Санкт-Петербург 8-я Советская ул., ... - Фото 2
    Помещение свободного назначения площадью 103.8 кв. м. расположено в историческом центре Санкт-Петербурга, что гарантирует постоянный поток людей и высокую проходимость. Объект имеет отдельный вход и полностью автономен, что обеспечивает независимость...
    • 1/7 эт.
    19 000 000 Р
    Агент
    +7 (986) Показать номер
    Посмотреть контакты
    Помещение свободного назначения в Санкт-Петербург Каменноостровский ... - Фото 1
    Помещение свободного назначения в Санкт-Петербург Каменноостровский ... - Фото 2
    Помещение находится в 7 этажном доме престиж класса 2008 года постройке ,высокий первый этаж,свой отдельный вход .Два отдельных кабинета и большой коридор.В офисе тепло.Коммунальные платежи в январе 2026 составили 8050-ку,1200-кап.рем ,свет и вода...
    • 1/7 эт.
    19 000 000 Р
    Агент
    +7 (981) Показать номер
    Посмотреть контакты

    Не нашли подходящего объявления?

    Оставьте заявку, и наши риэлторы подберут псн в районе Санкт-Петербурга

    (0)