163 000 000 Р 2 094 100 $ или 1 793 500

Информация об помещении

1
Этаж

Состояние и оснащение

Количество этажей
2
Развернуть
Агент
+7 (981) 899-98-06
Начать чат с агентом

Помещение свободного назначения в Санкт-Петербург просп. Стачек, 81к2 ...

Продаетя готовый бизнес / арендный бизнес с доходом от 1,5 до 2 млн руб/ в мес. Для увеличения дохода можно надстроить третий этаж, проиндексировать арендаторов, взять в аренду соседний участок земли. Доходность может составить 2.5 - . в мес. Здание площадью 865 квадратных метров находится в 2 минутах ходьбы от станции метро Автово . В нем уже работают сетевые арендаторы на долгосрочной основе.Земля площадью 1 820 квадратных метров арендована у города на срок 49лет, с возможностью выкупа.Здание 865 м. в собственности. Здание подключено к электричеству мощностью 100 киловатт, что позволяет увеличить мощность при необходимости. Внутри здания есть газовая котельная и городской водопровод.Канализация и газ подведены официально.Системы пожарной безопасности установлены.Номер объекта: 1/553256/11672

Читать полностью
    Позвонить Написать
    163 000 000 Р2 094 100 $ или 1 793 500
    Агент
    +7 (981) 899-98-06
    Начать чат с агентом
    Похожие предложения
    Помещение свободного назначения в Санкт-Петербург Морская миля жилой ... - Фото 1
    Помещение свободного назначения в Санкт-Петербург Морская миля жилой ... - Фото 2
    РАБОТАЕМ С АГЕНТАМИ. РЕНТАВИК— участник ассоциации КОКОН. Жилой комплекс комфорт- класса Морская миля строится в северной части Красносельского района, в двух шагах от будущей станции метро Казаковская. Представляет собой проект на 10 домов с паркингами,...
    • 1/25 эт.
    154 686 474 Р
    Агент
    +7 (933) Показать номер
    Посмотреть контакты
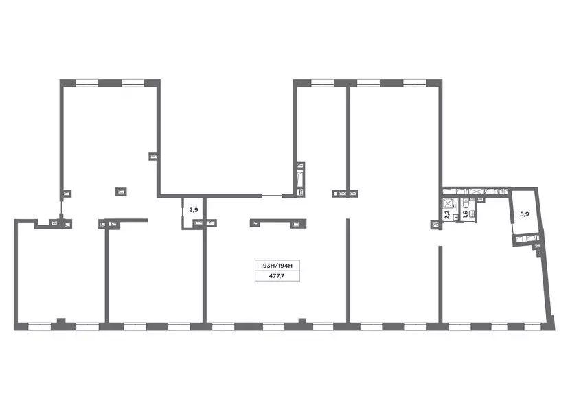
    Помещение свободного назначения (477.7 м) - Фото 1
    Помещение свободного назначения (477.7 м) - Фото 2
    Продажа помещения коммерческого назначения в ЖК «Северная корона Адрес: Санкт-Петербург, наб. реки Карповки, д. 31Этаж: 2Общая площадь: 477,7 кв. мВысота потолков: 3 мСтоимость: (/кв.м)Условия покупки•При 100 оплате предоставляется скидка 5 .•Рассрочка...
    • 2/8 эт.
    167 195 008 Р
    Агент
    +7 (812) Показать номер
    Посмотреть контакты
    Помещение свободного назначения в Санкт-Петербург Полюстровский ... - Фото 1
    Помещение свободного назначения в Санкт-Петербург Полюстровский ... - Фото 2
    Предложение от собственника. Без комиссии для покупателя Продается уникальное производственно-складское помещение площадью 907 кв.м, которое станет отличным вложением для вашего бизнеса Это предложение — реальная возможность получить стабильный доход...
    • 1/1 эт.
    160 000 000 Р
    Агент
    +7 (911) Показать номер
    Посмотреть контакты
    ПИШИТЕ И ЗВОНИТЕ) РАБОТАЕМ С АГЕНТАМИ. РЕНТАВИК— участник ассоциации КОКОН. Готовый арендный бизнес (ГАБ). Доходность 11 , окупаемость до 8.93 лет. Бизнес-центр расположен в районе Большая Охта, в центре деловой активности, в районе с хорошей транспортной...
    • 1/3 эт.
    150 000 000 Р
    Агент
    +7 (933) Показать номер
    Посмотреть контакты
    Помещение свободного назначения в Санкт-Петербург Гранитная ул., 51 ... - Фото 1
    Помещение свободного назначения в Санкт-Петербург Гранитная ул., 51 ... - Фото 2
    ПИШИТЕ И ЗВОНИТЕ) РАБОТАЕМ С АГЕНТАМИ. РЕНТАВИК— участник ассоциации КОКОН. МФК Smart Гранитная находится в шаговой доступности от станции метро Ладожская.Налоговая: 21. Лифты: Есть. Вентиляция: Приточно-вытяжная. Кондиционирование: Центральное. Безопасность:...
    • 3/4 эт.
    150 055 000 Р
    Агент
    +7 (933) Показать номер
    Посмотреть контакты

    Не нашли подходящего объявления?

    Оставьте заявку, и наши риэлторы подберут псн в районе Санкт-Петербурга

    (0)