29 000 000 Р 368 300 $ или 318 600

Информация об помещении

1
Этаж

Состояние и оснащение

Количество этажей
3
Развернуть
Агент
+7 (981) 687-91-02
Начать чат с агентом

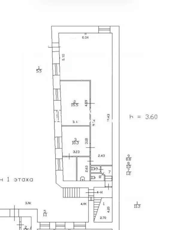
Помещение свободного назначения (89.9 м)

Добрый день Помещение напротив метро «Фрунзенская - первый этаж, два входа, потолки 3,6 м. Сильная локация для бизнеса с постоянным потоком клиентов. ПРОДАЖА БЕЗ КОМИССИИ Описание и фотографии соответствуют действительности.Назначение: • Под клинику, косметологию, стоматологию, офис, представительство, обучение, шоурум и др. • Универсальный формат с понятной планировкой и возможностью адаптации под задачи бизнеса.Документы:Помещение принадлежит одному собственнику более 5 лет. Без обременений и перепланировок. Быстрый выход на сделку. Все документы готовы. Подходит под ипотеку.Помещение: • Первый этаж. • Два входа: отдельный со двора и дополнительный через парадную. • Потолки 3,6 м - комфортный уровень для медицины и сферы услуг. • Электроснабжение: 15 кВт. • Планировка: ресепшн + 3 кабинета. • Кухня и санузел с душевой. • Несущие стены только по периметру - пространство легко адаптируется под любой формат. • Выполнен качественный ремонт, помещение готово к работе.Инфраструктура: • 1 минута до метро «Фрунзенская . • Открытый двор с заездом и парковкой. • Высокий пешеходный и деловой трафик. • Окружение: жилые дома, офисы, сервисы — постоянный поток клиентов.Торг возможен, но после просмотра.Бесплатно проконсультируем по сделке. Звоните Добавляйте в избранное, чтобы не потерять объявление.

Читать полностью
    Позвонить Написать
    29 000 000 Р368 300 $ или 318 600
    Агент
    +7 (981) 687-91-02
    Начать чат с агентом
    Похожие предложения
    Помещение свободного назначения в Санкт-Петербург Московский просп., ... - Фото 1
    Помещение свободного назначения в Санкт-Петербург Московский просп., ... - Фото 2
    Добрый день Помещение напротив метро Фрунзенская - первый этаж, два входа, потолки 3,6 м. Сильная локация для бизнеса с постоянным потоком клиентов.Кстати, если вы сейчас продаёте свою недвижимость - мы можем сразу выкупить её. Позвоните - назовём стоимость...
    • 1/3 эт.
    28 999 999 Р
    Агент
    +7 (981) Показать номер
    Посмотреть контакты
    Помещение свободного назначения в Санкт-Петербург Московский просп., ... - Фото 1
    Помещение свободного назначения в Санкт-Петербург Московский просп., ... - Фото 2
    Бизнес-центр премиум класса Локус от Аквилон — это новое место на карте делового Петербурга. Новая точка, в которой сходятся все линии роста — близость к центру города, развитая инфраструктура, удобное расположение у метро на пересечении двух важных магистралей...
    • 2/8 эт.
    28 882 602 Р
    Агент
    +7 (911) Показать номер
    Посмотреть контакты
    Помещение свободного назначения в Санкт-Петербург просп. Энгельса, 31 ... - Фото 1
    Помещение свободного назначения в Санкт-Петербург просп. Энгельса, 31 ... - Фото 2
    Арт.. Помещение расположено в крупном жилом комплексе - густонаселенные жилые комплексы комфорт и бизнес класса, каждый дом на 3000 квартир.-Первая линия,вход с улицы.-Витринные окна.- Жилой комплекс сдан и идет заселение- Помещение свободного назначения,...
    • -1/10 эт.
    28 000 000 Р
    Агент
    +7 (911) Показать номер
    Посмотреть контакты
    Помещение свободного назначения в Санкт-Петербург Новолитовская ул., 5 ... - Фото 1
    Помещение свободного назначения в Санкт-Петербург Новолитовская ул., 5 ... - Фото 2
    Арт.Коммерческое помещение с большими витринными окнами и входом с улицы, с фасада. 215 метров расположены на 1 этаже и в полуподвале, 2 входа, большая парковка во дворе.Сталинский дом 1957 года красивой архитектуры с металлическими и бетонными перекрытиями,...
    • 1/5 эт.
    29 000 000 Р
    Агент
    +7 (911) Показать номер
    Посмотреть контакты
    Помещение свободного назначения в Санкт-Петербург Московский просп., ... - Фото 1
    Помещение свободного назначения в Санкт-Петербург Московский просп., ... - Фото 2
    Санкт-Петербург, Московский просп., 183-185, ЖК Граф Орлов Лучшее вложение ваших денежных средств Продажа помещения свободного назначения в ЖК Бизнес класса Граф Орлов на первой линии Московского проспекта. Это одно из самых выгодных предложений...
    • -1/7 эт.
    28 000 000 Р
    Агент
    +7 (981) Показать номер
    Посмотреть контакты

    Не нашли подходящего объявления?

    Оставьте заявку, и наши риэлторы подберут псн в районе Санкт-Петербурга

    (0)