30 700 400 Р 389 800 $ или 337 300

Информация об помещении

1
Этаж

Состояние и оснащение

Количество этажей
2
Развернуть
Агент
+7 (911) 277-52-58
Начать чат с агентом

Помещение свободного назначения в Санкт-Петербург Литовская ул., 16 ...

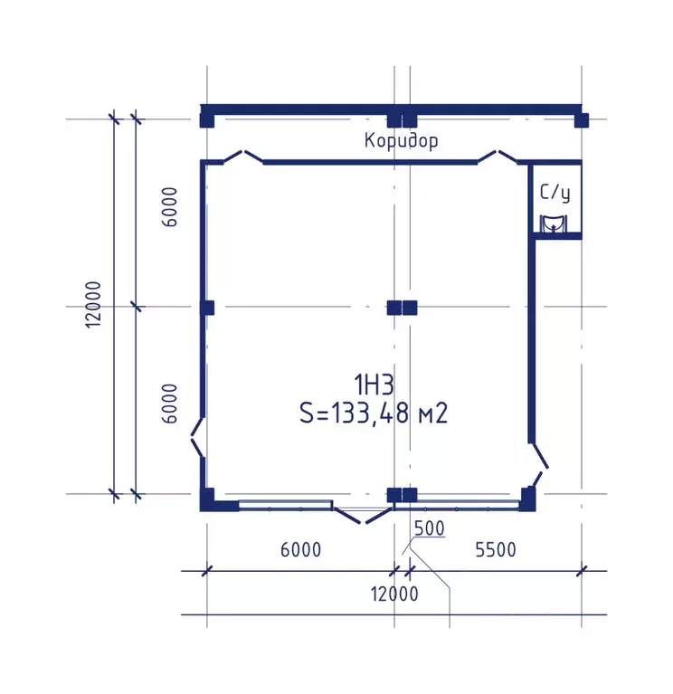
Продажа торгово-коммерческого помещения 133,48 м на первом этаже технопарка L618 (здание 2.1).Помещение расположено в составе современного индустриально-делового кластера и подойдет для торговых, сервисных и производственных форматов бизнеса. ЛокацияСанкт-Петербург, ул. Литовская, д.16. Удобная транспортная доступность и активно развивающаяся деловая среда. 15 минут до метро пешком. О проектеТехнопарк L618 формирует новую точку притяжения для технологических, сервисных и торговых компаний. Здание построено по монолитной технологии, оснащено всеми необходимыми инженерными системами.Центральным архитектурным элементом комплекса станет арт-объект Песочные часы . Параметры помещения- Площадь помещения — 133,48 м, этаж — 1.- Высота потолков — 4,5 м, нагрузка на пол — 3 т/м.- Свободная планировка обеспечивает гибкость при организации пространства. Подходит для различных видов бизнеса- торговая точка;- шоурум;- сервисный центр;- легкое производство;- склад. Инвестиционный потенциалПокупка коммерческой недвижимости позволяет сформировать собственный актив. Для комплекса L618 прогнозируется рост стоимости до 30 к моменту ввода объекта.Срок ввода — 2 квартал 2027 года. Обращайтесь — подберем оптимальный вариант под ваш бизнес или инвестиционные задачи.

Читать полностью
    Позвонить Написать
    30 700 400 Р389 800 $ или 337 300
    Агент
    +7 (911) 277-52-58
    Начать чат с агентом
    Похожие предложения
    Помещение свободного назначения в Санкт-Петербург Литовская ул., 16 ... - Фото 1
    Помещение свободного назначения в Санкт-Петербург Литовская ул., 16 ... - Фото 2
    Продажа торгово-коммерческого помещения 135,54 м на первом этаже технопарка L618 (здание 2.1) — современного индустриально-делового кластера Санкт-Петербурга. ЛокацияСанкт-Петербург, ул. Литовская, д.16. Формирующаяся деловая локация для технологических...
    • 1/2 эт.
    31 174 200 Р
    Агент
    +7 (911) Показать номер
    Посмотреть контакты
    Помещение свободного назначения в Санкт-Петербург наб. Реки Фонтанки, ... - Фото 1
    Помещение свободного назначения в Санкт-Петербург наб. Реки Фонтанки, ... - Фото 2
    Арт.Предлагаем Вашему вниманию ликвидную недвижимость с действующим бизнесом (бутик-отель, в управлении) в самом центре исторического Петербурга Это не просто коммерческое помещение, а уютный мини отель, на 4 номера .Площадью 80м2, с высокой доходностью....
    • 1/3 эт.
    30 600 000 Р
    Агент
    +7 (911) Показать номер
    Посмотреть контакты
    Помещение свободного назначения в Санкт-Петербург ул. Академика ... - Фото 1
    Помещение свободного назначения в Санкт-Петербург ул. Академика ... - Фото 2
    Продаётся нежилое помещение свободного назначения в новом кирпичном жилом квартале Наука от Группы компаний ТРЕСТ в Калининском районе Петербурга рядом со станцией метро Академическая . Расстояние до метро составляет 10 минут пешком. Объект коммерции...
    • 1/11 эт.
    31 936 000 Р
    Агент
    +7 (981) Показать номер
    Посмотреть контакты
    Помещение свободного назначения в Санкт-Петербург Легенда ... - Фото 1
    Помещение свободного назначения в Санкт-Петербург Легенда ... - Фото 2
    Помещение свободного назначения на 1 этаже, общая площадь 70.73 кв.м., высота потолков 4.05 м.Мощность подведенной линии электроснабжения 15 кВт. Стоимость помещения 30,690,, цена за кв.м 433, О проектеЛЕГЕНДА Васильевского масштабный жилой кластер...
    • 1/10 эт.
    30 690 631 Р
    Агент
    +7 (911) Показать номер
    Посмотреть контакты
    Помещение свободного назначения в Санкт-Петербург Легенда ... - Фото 1
    Помещение свободного назначения в Санкт-Петербург Легенда ... - Фото 2
    Помещение свободного назначения на 1 этаже, общая площадь 65.25 кв.м., высота потолков 4.05 м.Мощность подведенной линии электроснабжения 15 кВт. Стоимость помещения 30,590,, цена за кв.м 468, О проектеЛЕГЕНДА Васильевского масштабный жилой кластер...
    • 1/10 эт.
    30 590 831 Р
    Агент
    +7 (911) Показать номер
    Посмотреть контакты

    Не нашли подходящего объявления?

    Оставьте заявку, и наши риэлторы подберут псн в районе Санкт-Петербурга

    (0)