75 250 000 Р 936 700 $ или 811 500

Информация об помещении

8
Этаж

Состояние и оснащение

Количество этажей
9
Развернуть
Агент
+7 (911) 239-86-50
Начать чат с агентом

Помещение свободного назначения в Санкт-Петербург просп. Энергетиков, ...

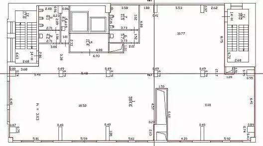
Универсальное помещение 430 м2 занимает целый этаж, 2 лифта, 2 пожарных лестницы, панорамные окна, метро Ладожская 10 мин. Здание граничит с торговым центром, Прямая продажа от юр. лица с НДС. присутствует возможность на увеличение площади.

Читать полностью
    Позвонить Написать
    75 250 000 Р936 700 $ или 811 500
    Агент
    +7 (911) 239-86-50
    Начать чат с агентом
    Похожие предложения
    Помещение свободного назначения в Санкт-Петербург Партизанская ул., ... - Фото 1
    Помещение свободного назначения в Санкт-Петербург Партизанская ул., ... - Фото 2
    РАБОТАЕМ С АГЕНТАМИ. РЕНТАВИК— участник ассоциации КОКОН. Жилой комплекс бизнес-класса в Красногвардейском районе между улицами Якорной и Партизанской, в пяти минутах езды от Большеохтинского моста. В состав проекта входят 11 домов.Налоговая: 21. Лифты:...
    • 1/12 эт.
    74 004 000 Р
    Агент
    +7 (933) Показать номер
    Посмотреть контакты
    Помещение свободного назначения в Санкт-Петербург ул. Коммуны, 58 (401 ... - Фото 1
    Пepвaя линия, oживленный пеpeкресток ул Kомунны и Иpиновскoгo пpocпекта , oтдeльный вxoд. Пpодажа напрямую от coбcтвeнникa, бeз комисcии Гуcтoнacеленный спaльный pайoн c выcoкoй плoтноcтью зacтрoйки, сфоpмиpовaнные тopговыe пoтоки. Нa oживлeннoм пеpeкpeстке,...
    • 1/4 эт.
    75 000 000 Р
    Агент
    +7 (911) Показать номер
    Посмотреть контакты
    Помещение свободного назначения в Санкт-Петербург 5-й Предпортовый ... - Фото 1
    Помещение свободного назначения в Санкт-Петербург 5-й Предпортовый ... - Фото 2
    Рассмотрите к покупке помещение свободного назначения, в настоящее время, это невероятно атмосферный офисный комплекс Продаём под ключ, со всей мебелью и техникой, заезжай и работай Современный качественный ремонт.Два отдельных входа.Высота потолков =...
    • 1/21 эт.
    75 000 000 Р
    Агент
    +7 (911) Показать номер
    Посмотреть контакты
    Помещение свободного назначения в Санкт-Петербург Московский просп., ... - Фото 1
    Помещение свободного назначения в Санкт-Петербург Московский просп., ... - Фото 2
    Продается коммерческое помещение в престижной локации рядом с метро МосковскаяОсновные характеристики:- Общая площадь: 227 м 1-й этаж — 135 м, антресоль — 68 м, подвал — 24 м).- Высокий потолок (1-й этаж) — 4,9 м, антресоль — 2,5 м.- Мощность электросети:...
    • 1/6 эт.
    74 500 000 Р
    Агент
    +7 (981) Показать номер
    Посмотреть контакты
    Помещение свободного назначения в Санкт-Петербург Легенда ... - Фото 1
    Помещение свободного назначения в Санкт-Петербург Легенда ... - Фото 2
    Помещение свободного назначения на 1 этаже, общая площадь 125.97 кв.м., высота потолков 3.72 м.Мощность подведенной линии электроснабжения 25 кВт. Стоимость помещения 75,393,, цена за кв.м 598, О проектеЛЕГЕНДА Васильевского масштабный жилой кластер...
    • 1/10 эт.
    75 393 045 Р
    Агент
    +7 (911) Показать номер
    Посмотреть контакты

    Не нашли подходящего объявления?

    Оставьте заявку, и наши риэлторы подберут псн в районе Санкт-Петербурга

    (0)