59 200 000 Р 729 600 $ или 633 700

Информация об помещении

2
Этаж

Состояние и оснащение

Количество этажей
8
Развернуть
Агент
+7 (812) 383-64-93
Начать чат с агентом

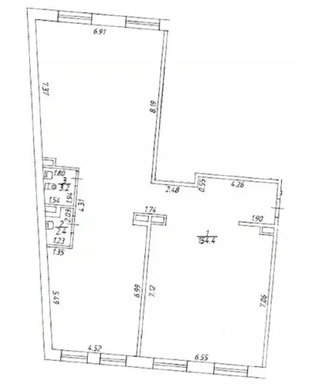
Помещение свободного назначения (160 м)

Продажа помещения коммерческого назначения в ЖК «Северная корона Адрес: Санкт-Петербург, наб. реки Карповки, д. 31Этаж: 2Общая площадь: 160,0 кв. мВысота потолков: 3 мСтоимость: (/кв.м)Условия покупки• При 100 оплате предоставляется скидка 5 .• Рассрочка на 1 год: первоначальный взнос 50 , оставшаяся сумма вносится ежеквартально равными долями. Цена при рассрочке не увеличивается.Характеристики помещения• Формат: свободная планировка.• Состояние: без отделки (возможность реализовать дизайн под индивидуальные задачи).• Проведены инженерные коммуникации: водоснабжение, отопление, канализация.• Большие окна, хорошие возможности для естественного освещения.• Высота потолков 3 м позволяет создать просторное и статусное пространство.Помещение подходит для организации: офисного или выставочного пространства, шоу-рума, бутика, салона красоты, развивающего или образовательного центров.Локация и трафикЖК «Северная коронаасположен в парадной части Петроградской стороны — на пересечении Каменноостровского проспекта и набережной реки Карповки. Это одно из самых престижных мест Санкт-Петербурга.• Плотная жилая застройка. Плотность локации в радиусе 20-минутной пешей доступности — около 20 тыс. жителей.• Население района: Петроградский район — 127,7 тыс. человек. В шаговой доступности расположены университеты, научные центры, престижные клиники, галереи, рестораны и офисы.• Соседние районы обеспечивают сильный трафик:• Василеостровский — 205 тыс. чел.• Приморский — 510 тыс. чел.• Центральный — 214 тыс. чел.• Адмиралтейский — 160 тыс. чел.• Выборгский — 445 тыс. чел.• Калининский — 505 тыс. чел.Совокупная численность ближайших районов превышает человек, что гарантирует высокий потенциал для бизнеса.Транспортная доступность: 5 минут до станции метро «Петроградская и 10 минут до метро «Чкаловская , удобные выезды во все районы города и СЗАД.Это предложение для тех, кто ценит престижное расположение, имиджевую архитектуру и высокий уровень окружения. Помещение в «Северной короне — это статусный актив, подчеркивающий уровень вашего бизнеса.ЗастройщикГК ПСК — один из крупнейших девелоперов Санкт-Петербурга с более чем 18-летней историей.Компания реализует проекты во всех сегментах недвижимости — от премиальных жилых комплексов до масштабных кварталов комфорт-класса и апарт-отелей.По данным портала ЕРЗ.РФ, ПСК входит в ТОП-10 крупнейших застройщиков Санкт-Петербурга по объему текущего строительства. Портфель компании насчитывает более кв. м жилой и коммерческой недвижимости. Все объекты сдаются строго в срок и отличаются высоким уровнем архитектуры и инженерных решений. (AQID

Читать полностью
    Позвонить Написать
    59 200 000 Р729 600 $ или 633 700
    Агент
    +7 (812) 383-64-93
    Начать чат с агентом
    Похожие предложения
    Помещение свободного назначения (160 м) - Фото 1
    Помещение свободного назначения (160 м) - Фото 2
    Продажа помещения коммерческого назначения в ЖК «Северная корона Адрес: Санкт-Петербург, наб. реки Карповки, д. 31Этаж: 2Общая площадь: 160,0 кв. мВысота потолков: 3 мСтоимость: (/кв.м)Условия покупки• При 100 оплате предоставляется скидка 5 .• Рассрочка...
    • 2/8 эт.
    59 200 000 Р
    Агент
    +7 (812) Показать номер
    Посмотреть контакты
    Помещение свободного назначения в Санкт-Петербург наб. Реки Карповки, ... - Фото 1
    Помещение свободного назначения в Санкт-Петербург наб. Реки Карповки, ... - Фото 2
    344148 Готовый бизнес-актив в центре Петроградки. 160 м (2 этаж) с отдельным входом. ЖК Северная корона (Каменноостровский пер.). Не проходимость, а постоянный поток платежеспособной аудитории.Что вы получаете:1. Автономность: Отдельный вход со стороны...
    • 2/8 эт.
    59 200 000 Р
    Агент
    +7 (981) Показать номер
    Посмотреть контакты
    Помещение свободного назначения в Санкт-Петербург Мытнинская ул., 5/2 ... - Фото 1
    Помещение свободного назначения в Санкт-Петербург Мытнинская ул., 5/2 ... - Фото 2
    Добрый день Продаем УНИКАЛЬНОЕ помещение свободного назначения 229.7 м2, в ЦЕНТРАЛЬНОМ районе Санкт-Петербурга, идеально подходящее под РЕСТОРАН, сетевой МАГАЗИН, разделение помещения на части для увеличения арендного потока Потенциал аренды от 500....
    • 1/7 эт.
    58 999 999 Р
    Агент
    +7 (981) Показать номер
    Посмотреть контакты
    Помещение свободного назначения в Санкт-Петербург Полтавская ул., ... - Фото 1
    Помещение свободного назначения в Санкт-Петербург Полтавская ул., ... - Фото 2
    Арт.Коммерческое помещение в самом центре Санкт-Петербурга с современным ремонтом и надёжным арендатором-это предложение для Вас Окупаемость помещения 9,5 лет Помещение расположено в историческом центре Санкт-Петербурга, в двух шагах от Невского проспекта...
    • 1/5 эт.
    59 000 000 Р
    Агент
    +7 (981) Показать номер
    Посмотреть контакты
    Помещение свободного назначения в Санкт-Петербург бул. Головнина, 4 ... - Фото 1
    Помещение свободного назначения в Санкт-Петербург бул. Головнина, 4 ... - Фото 2
    INSIDE - бизнес-центр, расположенный на Васильевском острове в пятистах метрах от Финского залива.Общий метраж: 4 514 мОфисные помещения с 5 по 8 этажиОфисные помещения сдаются в формате Shell Core, что позволяет создать уникальное планировочное решение...
    • 7/8 эт.
    58 134 658 Р
    Агент
    +7 (911) Показать номер
    Посмотреть контакты

    Не нашли подходящего объявления?

    Оставьте заявку, и наши риэлторы подберут псн в районе Санкт-Петербурга

    (0)