53 000 000 Р 660 600 $ или 576 200

Информация об помещении

1
Этаж

Состояние и оснащение

Количество этажей
5
Развернуть
Агент
+7 (981) 985-25-44
Начать чат с агентом

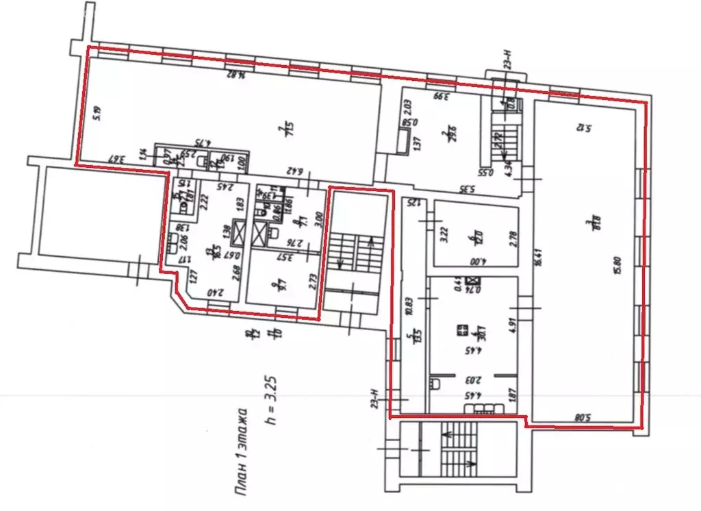
Помещение свободного назначения (274.7 м)

Продается нежилое помещение площадью 274,7 кв.м. В помещение по настоящее время работает арендатор с готовым бизнесом столовая «Ленинград . Столовая работает более 9 лет. Помещение в отличном состоянии, не требует вложений. Два отдельных входа. Все необходимые коммуникации подключены и заключены соответствующие договоры: электроснабжение 34 кВт, газоснабжение, водоснабжение, канализация, теплоснабжение, вытяжка. Место очень проходимое, в пешей доступности метро Нарвская, дворец искусств драматического театра на Васильевском, почта, администрация района, МФЦ, отдел культуры, сад Девятого Января. Статус помещения - собственность. Обременений нет. Звоните, организуем просмотр в удобное вам время.

Читать полностью
    Позвонить Написать
    53 000 000 Р660 600 $ или 576 200
    Агент
    +7 (981) 985-25-44
    Начать чат с агентом
    Похожие предложения
    Помещение свободного назначения в Санкт-Петербург Лермонтовский ... - Фото 1
    Помещение свободного назначения в Санкт-Петербург Лермонтовский ... - Фото 2
    В продажу напрямую от собственника (фЛ) предлагается фасадное коммерческое помещение свободного назначения, расположенное на первой линии Лермонтовского проспекта напротив здания налоговой рядом с остановкой общественного транспорта. Общая площадь 161,4...
    • 1/3 эт.
    52 500 000 Р
    Агент
    +7 (981) Показать номер
    Посмотреть контакты
    Продается ПСН 132.62 м2 - Фото 1
    Продается ПСН 132.62 м2 - Фото 2
    Продается ПСН 132.62 м2 - Фото 3
    Продается ПСН 132.62 м2 - Фото 4
    Продается ПСН 132.62 м2 - Фото 5
    Продается ПСН 132.62 м2 - Фото 6
    Продается ПСН 132.62 м2 - Фото 7
    Продается ПСН 132.62 м2 - Фото 8
    Продается ПСН 132.62 м2 - Фото 9
    Продается ПСН 132.62 м2 - Фото 10
    Продается ПСН 132.62 м2 - Фото 11
    Продается ПСН 132.62 м2 - Фото 12
    Продается ПСН 132.62 м2 - Фото 13
    Продается ПСН 132.62 м2 - Фото 14
    Продается ПСН 132.62 м2 - Фото 15
    полезная площадь 132.6м²

    Продается помещение свободного назначения в комплексе апартаментов Зум на Неве. Прямая продажа от застройщика. Зум на Неве расположен на берегу Невы в непосредственной близости от центра города. Комплекс состоит на 1 700 апартаментов. Локация, масштаб...
    • 132.6 м²
    • 1/14 эт.
    53 759 506 Р
    Агент
    +7 (812) Показать номер
    Посмотреть контакты
    АГЕНТАМ ПЛАТИМ. РАБОТАЕМ ПО СТАНДАРТАМ АССОЦИАЦИИ КОКОН. На территории 3,5 га запланировано строительство технопарка общей площадью 25 313 м2, начало строительства-май 2025 года, ввод в эксплуатацию 2 квартал 2026 года. Комплекс будет включать в себя...
    • 1/3 эт.
    52 780 000 Р
    Агент
    +7 (933) Показать номер
    Посмотреть контакты
    Помещение свободного назначения в Санкт-Петербург Чкаловский просп., ... - Фото 1
    Помещение свободного назначения в Санкт-Петербург Чкаловский просп., ... - Фото 2
    Арт.СУПЕР ПРЕДЛОЖЕНИЕ от представителя СОБСТВЕННИКА -ЮР лицо со стабильным многолетним доходомПродажа торгового помещения по адресу: г. Санкт-Петербург, Чкаловский проспект, д. 32/2, Петроградский район.В шаговой доступности станции метро: Чкаловская...
    • 1/3 эт.
    54 000 000 Р
    Агент
    +7 (981) Показать номер
    Посмотреть контакты
    Помещение свободного назначения в Санкт-Петербург Лермонтовский ... - Фото 1
    Помещение свободного назначения в Санкт-Петербург Лермонтовский ... - Фото 2
    ID: 832111Продается помещение с отдельным входом на проходной улице . Имеется задний выход , Хорошее состояние . Видеонаблюдение Торг
    • 1/6 эт.
    52 000 000 Р
    Агент
    +7 (911) Показать номер
    Посмотреть контакты

    Не нашли подходящего объявления?

    Оставьте заявку, и наши риэлторы подберут псн в районе Санкт-Петербурга

    (0)