Россия, Санкт-Петербург, бул. Измайловский, 1к2
48 395 000 Р 611 400 $ или 527 000

Информация об помещении

1
Этаж

Состояние и оснащение

Количество этажей
10
Развернуть
Агент
+7 (911) 767-99-26
Начать чат с агентом

Помещение свободного назначения в Санкт-Петербург бул. Измайловский, ...

Продается помещение, расположенное в здании в апарт-отеле Well. Помещение с большими витринными окнами и отдельным входом. Отлично подойдет для бизнеса с высоким клиентским потоком: магазин, кофейня, салон красоты, аптека, шоурум, офис продаж, пункт выдачи заказов или сервисный центр.Преимущества: Удобная планировка Витрины на оживленную улицу Возможность зонирования под разные форматы Высокий пешеходный и автомобильный трафик Размещение наружной рекламы

Читать полностью
    Позвонить Написать
    48 395 000 Р611 400 $ или 527 000
    Агент
    +7 (911) 767-99-26
    Начать чат с агентом
    Похожие предложения
    Помещение свободного назначения в Санкт-Петербург Московское ш., 13ЖЗ ... - Фото 1
    Продается помещение свободного назначения 7, по адресу Санкт-Петербург, Московское шоссе, дом 13, литера ЖЗ, корпус АВЕНЮ-АПАРТ ПУЛКОВО - встроенные помещения в АВЕНЮ-АПАРТ ПУЛКОВО на 1 этаже, с площадью 99.48 м2.
    • 1/1 эт.
    48 593 114 Р
    Агент
    +7 (958) Показать номер
    Посмотреть контакты
    Помещение свободного назначения в Санкт-Петербург просп. Энгельса, 27Т ... - Фото 1
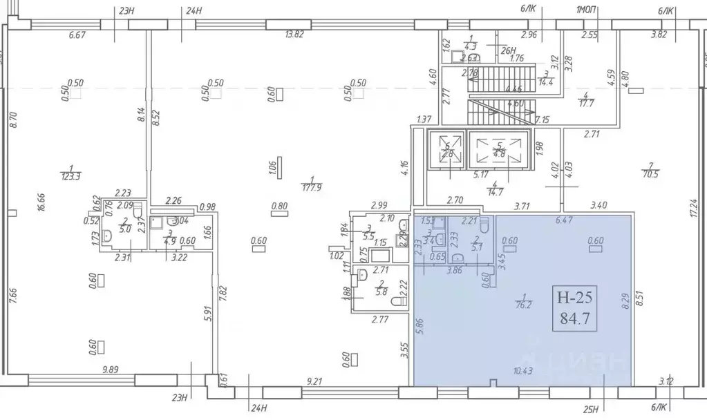
    Помещение свободного назначения класса бизнес 84.7 м в ЖК iD Svetlanovskiy с выдержанными фасадами и превосходным витражным остеклением и современной инженерией. Каждому коммерческому помещению выделена зона для стилизованной вывески. Каждое помещение...
    • 1/12 эт.
    47 467 659 Р
    Агент
    +7 (911) Показать номер
    Посмотреть контакты
    Помещение свободного назначения в Санкт-Петербург Манчестерская ул., 3 ... - Фото 1
    Помещение свободного назначения в Санкт-Петербург Манчестерская ул., 3 ... - Фото 2
    Арт.. В продаже коммерческое помещение свободного назначения в ЖК бизнес-класса Svetlana Park.Дом сдан 2023 году.Рядом с помещением проходит пешеходный трафик к соседнему ЖК от и до метро Удельная.Характеристики помещения:• Площадь — 146,2 м• Высота потолков...
    • 1/10 эт.
    47 000 000 Р
    Агент
    +7 (981) Показать номер
    Посмотреть контакты
    Помещение свободного назначения в Санкт-Петербург Таврическая ул., 45 ... - Фото 1
    Помещение свободного назначения в Санкт-Петербург Таврическая ул., 45 ... - Фото 2
    Собственник юр.лицо. Продажа через ДКП. Это Центральный район Санкт-Петербурга. Транспортная доступность: в 15 минутах ходьбы от метро Чернышевская. Располагается в 7 минутах ходьбы от Taврическoгo caдa, в 5-х минутах ходьбы от Смольного Собора. Коммерческое...
    • -1/6 эт.
    47 450 000 Р
    Агент
    +7 (911) Показать номер
    Посмотреть контакты
    Помещение свободного назначения в Санкт-Петербург ул. Кустодиева, 7к1 ... - Фото 1
    Помещение свободного назначения в Санкт-Петербург ул. Кустодиева, 7к1 ... - Фото 2
    РАБОТАЕМ С АГЕНТАМИ. ПЛАТИМ ВОЗНАГРАЖДЕНИЕ. Жилой комплекс Байрон расположен вдоль зеленой и тихой ул. Кустодиева в Выборгском районе Санкт-Петербурга. Оригинальное архитектурное решение предполагает наличие разновысотных секций от 15 до 25 этажей, малоэтажных...
    • 1/27 эт.
    47 817 264 Р
    Агент
    +7 (933) Показать номер
    Посмотреть контакты

    Не нашли подходящего объявления?

    Оставьте заявку, и наши риэлторы подберут псн в районе Санкт-Петербурга

    (0)