167 195 008 Р 2 138 300 $ или 1 841 500

Информация об помещении

2
Этаж

Состояние и оснащение

Количество этажей
8
Развернуть
Агент
+7 (812) 383-64-93
Начать чат с агентом

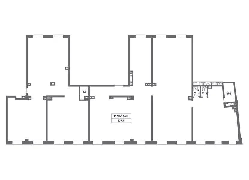
Помещение свободного назначения (477.7 м)

Продажа помещения коммерческого назначения в ЖК «Северная корона Адрес: Санкт-Петербург, наб. реки Карповки, д. 31Этаж: 2Общая площадь: 477,7 кв. мВысота потолков: 3 мСтоимость: (/кв.м)Условия покупки•При 100 оплате предоставляется скидка 5 .•Рассрочка на 1 год: первоначальный взнос 50 , оставшаяся сумма вносится ежеквартально равными долями. Цена при рассрочке не увеличивается.Характеристики помещения•Формат: свободная планировка.•Состояние: без отделки (возможность реализовать дизайн под индивидуальные задачи).•Проведены инженерные коммуникации: водоснабжение, отопление, канализация.•Большие окна, хорошие возможности для естественного освещения.•Высота потолков 3 м позволяет создать просторное и статусное пространство.Помещение подходит для организации: офисного или выставочного пространства, шоу-рума, бутика, салона красоты, развивающего или образовательного центров.Локация и трафикЖК «Северная коронаасположен в парадной части Петроградской стороны — на пересечении Каменноостровского проспекта и набережной реки Карповки. Это одно из самых престижных мест Санкт-Петербурга.•Плотная жилая застройка. Плотность локации в радиусе 20-минутной пешей доступности — около 20 тыс. жителей. •Население района: Петроградский район — 127,7 тыс. человек. В шаговой доступности расположены университеты, научные центры, престижные клиники, галереи, рестораны и офисы.•Соседние районы обеспечивают сильный трафик:•Василеостровский — 205 тыс. чел.•Приморский — 510 тыс. чел.•Центральный — 214 тыс. чел.•Адмиралтейский — 160 тыс. чел.•Выборгский — 445 тыс. чел.•Калининский — 505 тыс. чел.Совокупная численность ближайших районов превышает человек, что гарантирует высокий потенциал для бизнеса.Транспортная доступность: 5 минут до станции метро «Петроградская и 10 минут до метро «Чкаловская , удобные выезды во все районы города и СЗАД.Это предложение для тех, кто ценит престижное расположение, имиджевую архитектуру и высокий уровень окружения. Помещение в «Северной короне — это статусный актив, подчеркивающий уровень вашего бизнеса.ЗастройщикГК ПСК — один из крупнейших девелоперов Санкт-Петербурга с более чем 18-летней историей.Компания реализует проекты во всех сегментах недвижимости — от премиальных жилых комплексов до масштабных кварталов комфорт-класса и апарт-отелей.По данным портала ЕРЗ.РФ, ПСК входит в ТОП-10 крупнейших застройщиков Санкт-Петербурга по объему текущего строительства. Портфель компании насчитывает более кв. м жилой и коммерческой недвижимости. Все объекты сдаются строго в срок и отличаются высоким уровнем архитектуры и инженерных решений. (AQID

Читать полностью
    Позвонить Написать
    167 195 008 Р2 138 300 $ или 1 841 500
    Агент
    +7 (812) 383-64-93
    Начать чат с агентом
    Похожие предложения
    Помещение свободного назначения (477.7 м) - Фото 1
    Помещение свободного назначения (477.7 м) - Фото 2
    Продажа помещения коммерческого назначения в ЖК «Северная корона Адрес: Санкт-Петербург, наб. реки Карповки, д. 31Этаж: 2Общая площадь: 477,7 кв. мВысота потолков: 3 мСтоимость: (/кв.м)Условия покупки•При 100 оплате предоставляется скидка 5 .•Рассрочка...
    • 2/8 эт.
    167 195 008 Р
    Агент
    +7 (812) Показать номер
    Посмотреть контакты
    Помещение свободного назначения в Санкт-Петербург просп. Ветеранов, 53 ... - Фото 1
    Помещение свободного назначения в Санкт-Петербург просп. Ветеранов, 53 ... - Фото 2
    Арт.Предлагаю вашему вниманию уникальный 2-х этажный объект недвижимости, расположенный в проходной зоне рядом с метро — отличная возможность для развития бизнеса или организации офисных и коммерческих пространств а так же ресторанов.Основные характеристики...
    • 2/2 эт.
    165 000 000 Р
    Агент
    +7 (911) Показать номер
    Посмотреть контакты
    Помещение свободного назначения (578 м) - Фото 1
    Помещение свободного назначения (578 м) - Фото 2
    Помещение расположено в престижном спальном районе, в ЖК «Friends ближайшая ст. метро «Проспект Просвещения продажа, 1-й этаж, 578м2, с отделкой, все городские коммуникации, 70 кВт, высота потолков: 4.5м, 4 входа.Назначение: без профиля - любое коммерческое...
    • 1/6 эт.
    173 250 000 Р
    Агент
    +7 (981) Показать номер
    Посмотреть контакты
    Помещение свободного назначения (200 м) - Фото 1
    Помещение расположено в центре города. На оживлённом пешеходном и автомобильном траффике. В 5-и минутах от ст. метро «Лиговский проспект , и в пешей доступности от Московского Вокзала и ст. метро «Площадь Восстания продажа, 1-й этаж, 200м2, с отделкой,...
    • 1/5 эт.
    180 000 000 Р
    Агент
    +7 (981) Показать номер
    Посмотреть контакты
    Помещение свободного назначения (2290 м) - Фото 1
    Помещение свободного назначения (2290 м) - Фото 2
    Помещение расположено в развитом, густонаселенном спальном районе Санкт-Петербурга, в новом ЖК комфорт-класса «ArtLine , в 7-ми минутах ходьбы от ст. метро «Старая Деревня Пристройка к апарт-отелю,2290м2, из которых: 1-й этаж = 800м2, 2-й этаж = 600м2,...
    • 1/2 эт.
    180 000 000 Р
    Агент
    +7 (981) Показать номер
    Посмотреть контакты

    Не нашли подходящего объявления?

    Оставьте заявку, и наши риэлторы подберут псн в районе Санкт-Петербурга

    (0)